- Freehold Building For Sale
- Potential To Convert & Develop Subject to Planning Permission
- Private Rear Garden/Parking
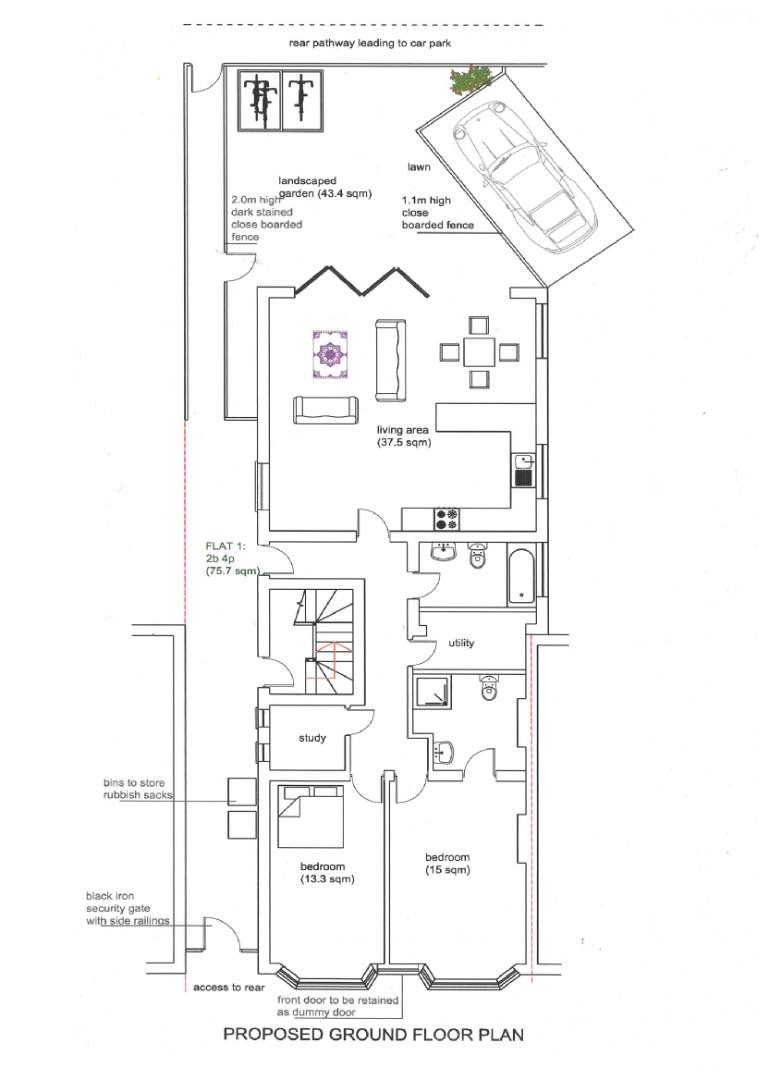
- Plans Approved for a Two Bedroom, Two Bathroom Flat on The Ground Floor
- Building Comprises Ground Floor Commercial Unit, Two Bedroom Flat & A Three Bedroom Flat
- Popular Location & Close Proximity to Schools, Transport Links & Amenities
- EPC Rating: C
- Viewings Highly Recommended
- Existing & Proposed Plans Available
- Approximately 1.0 Mile from Hayes & Harlington Station
Property Description
A freehold, mixed use building being offered for sale on Church Road in Hayes Town, comprising a ground floor commercial unit with planning permission approved for a two bedroom, two bathroom flat conversion, first floor two bedroom flat and a second and third floor three bedroom flat. All floor-plans are available for each unit and a site visit is recommended to understand the property and building in its entirety.
The property provides scope to convert and develop subject to planning permission or could still be used as a long term investment project. Please contact our branch for more information regarding this.
Church Road is a popular and prime residential road in Hayes and is within close proximity to a variety of different schools, amenities, transport links and amenities. You are 1 mile away from Hayes and Harlington Station which now services the Elizabeth Line, the A312/A40/M4 corridors and surrounding areas along with Heathrow Airport and Stockley Park.
The property provides scope to convert and develop subject to planning permission or could still be used as a long term investment project. Please contact our branch for more information regarding this.
Church Road is a popular and prime residential road in Hayes and is within close proximity to a variety of different schools, amenities, transport links and amenities. You are 1 mile away from Hayes and Harlington Station which now services the Elizabeth Line, the A312/A40/M4 corridors and surrounding areas along with Heathrow Airport and Stockley Park.
Additional Information
| Tenure: | Freehold |
|---|
Mortgage calculator
Calculate Your Stamp Duty
Results
Stamp Duty To Pay:
Effective Rate:
| Tax Band | % | Taxable Sum | Tax |
|---|
Church Road, Hayes, UB3 2LW
Want to explore Church Road, Hayes, UB3 2LW further? Explore our local area guide
Struggling to find a property? Get in touch and we'll help you find your ideal property.