- Commercial Premises
- Successful business
- Impressive annual turnover
- Lower ground floor with potential
- Wine cellar
- Located on Filey Road
Property Description
Located on the vibrant Filey Road in Scarborough, this charming restaurant presents a rare opportunity to invest in a thriving culinary venture. With high footfall, excellent visibility, and an impressive annual turnover, it is ideally situated to attract both locals and tourists alike.
The interior is stylish and functional, creating a warm and welcoming atmosphere for diners. With generous seating capacity, the space is suitable for everything from intimate meals to larger celebrations. The thoughtfully designed layout ensures smooth service, enhancing the overall dining experience.
The property includes a fully operational kitchen with ample storage and preparation areas, allowing for efficient food service. An outdoor area offers potential for al fresco dining, particularly appealing during the warmer months.
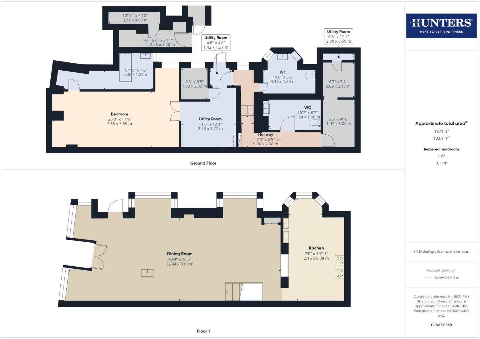
The lower ground floor adds significant value, offering extensive storage space, an office, customer toilets, a dedicated wine store, and potential for future expansion or development, providing flexibility for a growing business.
Scarborough is renowned for its stunning coastline and rich history, drawing visitors throughout the year. This restaurant is perfectly positioned to capitalise on the area’s popularity, making it an exciting opportunity for aspiring restaurateurs or seasoned operators looking to expand their portfolio.
In summary, this Filey Road restaurant is a fantastic chance to own a vibrant piece of Scarborough’s dining scene. With its prime location, impressive annual turnover, inviting ambiance, and fully equipped facilities, it is ready for a new owner to create a successful culinary destination.
The interior is stylish and functional, creating a warm and welcoming atmosphere for diners. With generous seating capacity, the space is suitable for everything from intimate meals to larger celebrations. The thoughtfully designed layout ensures smooth service, enhancing the overall dining experience.
The property includes a fully operational kitchen with ample storage and preparation areas, allowing for efficient food service. An outdoor area offers potential for al fresco dining, particularly appealing during the warmer months.
The lower ground floor adds significant value, offering extensive storage space, an office, customer toilets, a dedicated wine store, and potential for future expansion or development, providing flexibility for a growing business.
Scarborough is renowned for its stunning coastline and rich history, drawing visitors throughout the year. This restaurant is perfectly positioned to capitalise on the area’s popularity, making it an exciting opportunity for aspiring restaurateurs or seasoned operators looking to expand their portfolio.
In summary, this Filey Road restaurant is a fantastic chance to own a vibrant piece of Scarborough’s dining scene. With its prime location, impressive annual turnover, inviting ambiance, and fully equipped facilities, it is ready for a new owner to create a successful culinary destination.
Agent Note
This property is currently a commercial premises.
HMRC Disclaimer - Scarborough
Should you wish to proceed with an offer on this property we are obliged by HMRC to conduct mandatory Anti Money Laundering Checks. We outsource these checks to our compliance partners at Kotini and they charge a fee for this service.
Additional Information
| Tenure: | Freehold |
|---|---|
| Council Tax Band: | E |
Rooms
Agent Note
This property is currently a commercial premises.HMRC Disclaimer - Scarborough
Should you wish to proceed with an offer on this property we are obliged by HMRC to conduct mandatory Anti Money Laundering Checks. We outsource these checks to our compliance partners at Kotini and they charge a fee for this service.Mortgage calculator
Calculate Your Stamp Duty
Results
Stamp Duty To Pay:
Effective Rate:
| Tax Band | % | Taxable Sum | Tax |
|---|
Filey Road, Scarborough
Want to explore Filey Road, Scarborough further? Explore our local area guide
Struggling to find a property? Get in touch and we'll help you find your ideal property.