1 bedroom Commercial Property For Sale

Guide Price £99,950 | Available

1 bedroom Commercial Property For Sale
or call 01924 663222

Property Description
***FREEHOLD INVESTMENT OPPORTUNITY***

FOR SALE BY MODERN METHOD OF AUCTION AT A STARTING BID OF £99,950 PLUS RESERVATION FEE.

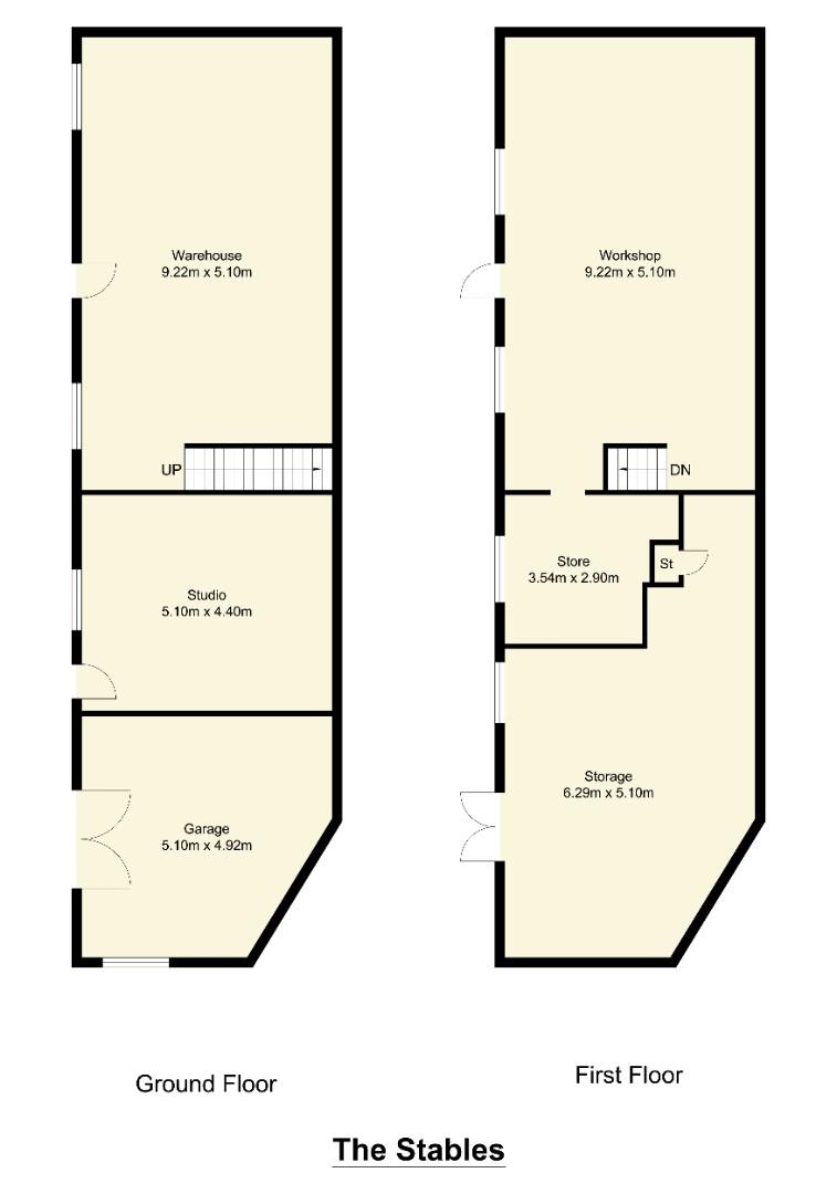
A rare opportunity to acquire a freehold former stables/workshop site approx 184 (Sqm/1980.56sqft)
Located a short walk from Sheply Bridge Marina and Ladywood Lakes Fishery, nearby sought after commercial/Industrial area of Dewsbury. Situated close to the nearby commercial and Industrial units, is this stone built detached property, set well back from the road. To the left hand side of the property has warehouse storage with access to the mezzanine floor which provides access to the entire first floor. A self contained studio apartment with open plan living and further shower and wc and to the right hand side a former garage/workshop. There is currently electricity to the building. In our opinion the building lends itself to a number of different commercial/residential uses, subject to the necessary planning consents being obtained.

ACCOMMODATION

Studio 5.10m x 4.40m
Warehouse 9.22m x 5.10m
Garage 5.10m x 4.92m

Mezzanine First Floor

Workshop 9.22m x 5.10m
Store 3.54m x 2.90m
Storage Room 6.29M X 5.10M

Total Approx 186sqm/2000sqft

TENURE

We understand that the property is Freehold. For further information in respect of tenure and any other legal aspects please refer to the legal pack.

SITE AREA

Approximately 184sqm (1980.56sqft).

OCCUPANCY

The property will be sold with vacant possession on legal completion.

AUCTION NOTES

This property is for sale by Modern Method of Auction allowing the buyer and seller to complete within a 56 Day Reservation Period. Interested parties’ personal data will be shared with the Auctioneer (iamsold Ltd). If considering a mortgage, inspect and consider the property carefully with your lender before bidding. A Buyer Information Pack is provided, which you must view before bidding. The eventual buyer will pay £300 inc VAT for this pack. The buyer signs a Reservation Agreement and makes payment of a Non-Refundable Reservation Fee of 4.5% of the purchase price inc VAT, subject to a minimum of £6,600 inc VAT. This Fee is paid to reserve the property to the buyer during the Reservation Period and is paid in addition to the purchase price. The Fee is considered within calculations for stamp duty. Services may be recommended by the Agent/Auctioneer in which they will receive payment from the service provider if the service is taken. Payment varies but will be no more than £450. These services are optional.


Additional Information
Tenure: Freehold

Rooms
ACCOMMODATION
Studio 5.10m x 4.40m
Warehouse 9.22m x 5.10m
Garage 5.10m x 4.92m

Mezzanine First Floor

Workshop 9.22m x 5.10m
Store 3.54m x 2.90m
Storage Room 6.29M X 5.10M

Total Approx 186sqm/2000sqft
TENURE
We understand that the property is Freehold. For further information in respect of tenure and any other legal aspects please refer to the legal pack.
SITE AREA
Approximately 184sqm (1980.56sqft).
OCCUPANCY
The property will be sold with vacant possession on legal completion.
AUCTION NOTES
This property is for sale by Modern Method of Auction allowing the buyer and seller to complete within a 56 Day Reservation Period. Interested parties’ personal data will be shared with the Auctioneer (iamsold Ltd). If considering a mortgage, inspect and consider the property carefully with your lender before bidding. A Buyer Information Pack is provided, which you must view before bidding. The eventual buyer will pay £300 inc VAT for this pack. The buyer signs a Reservation Agreement and makes payment of a Non-Refundable Reservation Fee of 4.5% of the purchase price inc VAT, subject to a minimum of £6,600 inc VAT. This Fee is paid to reserve the property to the buyer during the Reservation Period and is paid in addition to the purchase price. The Fee is considered within calculations for stamp duty. Services may be recommended by the Agent/Auctioneer in which they will receive payment from the service provider if the service is taken. Payment varies but will be no more than £450. These services are optional.

Utilities
Electricity:
Mains Supply
Sewerage:
Mains Supply
Water:

Mortgage calculator

Calculate Your Stamp Duty
£
Results
Stamp Duty To Pay:
Effective Rate:
Tax Band % Taxable Sum Tax

Low Mill Lane, Dewsbury

Want to explore Low Mill Lane, Dewsbury further? Explore our local area guide

Struggling to find a property? Get in touch and we'll help you find your ideal property.