Let Available Date
Available: Now
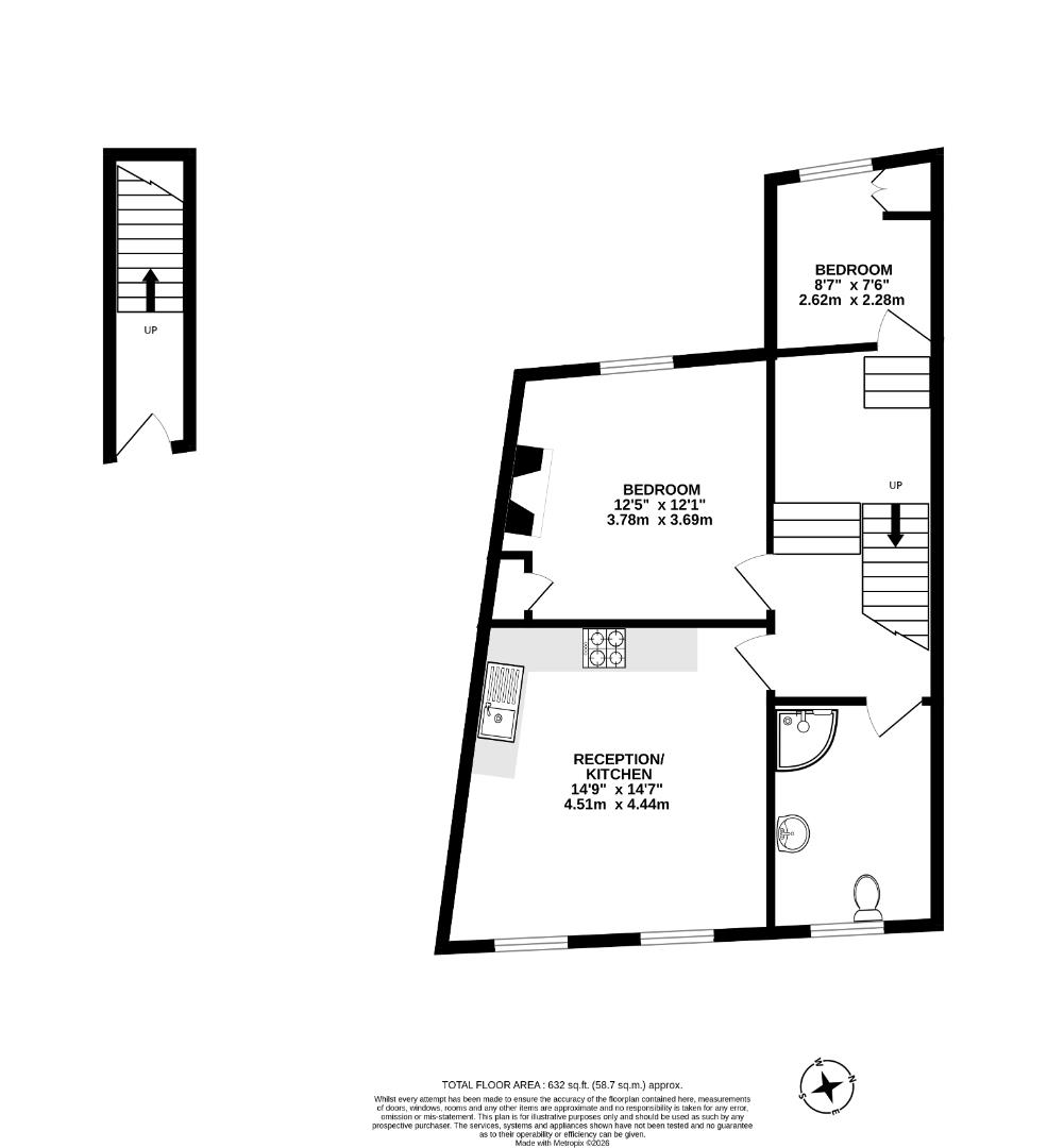
Property Description
This beautifully finished, brand new two-bedroom flat to rent in Forest Gate E7.
This spacious property has been renovated to a high specification throughout and offers two generously sized double bedrooms, an open plan kitchen and living room and a modern fully tiled shower room, ideal for sharers or families looking for extra convenience and space.
The flat features a stylish, contemporary interior with quality finishes, brand new flooring, and a sleek fitted kitchen with ample storage and integrated appliances.
Situated in a well-connected area, the property is within easy reach of Forest Gate (Elizabeth Line) and Stratford stations, offering fast and direct access into Central London, Canary Wharf, and beyond. The location also benefits from excellent local amenities, including shops, supermarkets, cafes, schools
This spacious property has been renovated to a high specification throughout and offers two generously sized double bedrooms, an open plan kitchen and living room and a modern fully tiled shower room, ideal for sharers or families looking for extra convenience and space.
The flat features a stylish, contemporary interior with quality finishes, brand new flooring, and a sleek fitted kitchen with ample storage and integrated appliances.
Situated in a well-connected area, the property is within easy reach of Forest Gate (Elizabeth Line) and Stratford stations, offering fast and direct access into Central London, Canary Wharf, and beyond. The location also benefits from excellent local amenities, including shops, supermarkets, cafes, schools
Palmerston Road, Forest Gate, London, E7
Want to explore Palmerston Road, Forest Gate, London, E7 further? Explore our local area guide
Struggling to find a property? Get in touch and we'll help you find your ideal property.