2 bedroom Bungalow For Sale

£110,000 | Available

2 bedroom Bungalow For Sale
Total Size: 582 SQ FT
or call 0191 586 3836
Standout Features

Property Description
SPECTACULAR BUNGALOW - SOUTH FACING GARDENS - 3 CAR DRIVE ... Hunters are delighted to present to the market this outstanding residence having been subject to an extensive refurbishment which intensifies the exclusive presentation of this eye-catching bungalow. The accommodation briefly comprises of a delightful lounge with an illuminated feature central fireplace, a sumptuous contemporary kitchen and shower room W/c, two double bedrooms, a charming south facing enclosed private garden and an impressive block paved driveway suitable for three vehicles. The residence is situated within easy reach of amenities including the Castle Dene Shopping Centre, local Aldi, railway station, the scenic Heritage Coastline and Castle Eden Dene Nature Reserve. For further information and to arrange a viewing of this enchanting bungalow please contact your local Hunters office situated in the Peterlee Castle Dene Shopping Centre. "NO CHAIN"

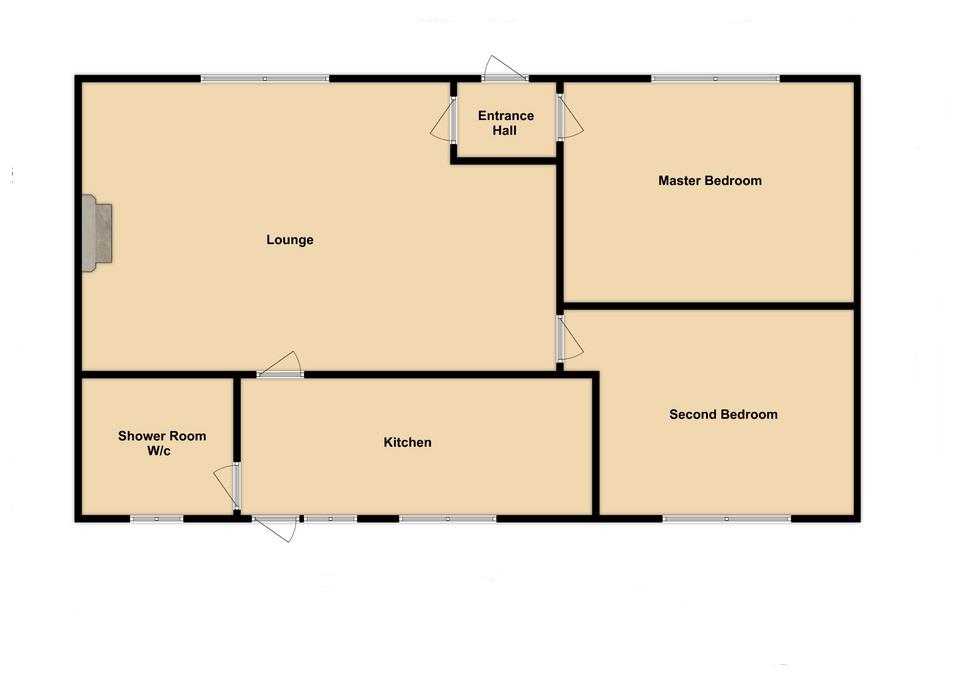
Entrance Hallway

The bungalow is entered via a welcoming hallway which provides access to the principal rooms. Finished in neutral tones, the hallway complements the rest of the property and helps create a light and airy feel throughout the home.

Lounge (4.83m x 4.07m)

A spacious and well-presented reception room, the lounge offers a bright and comfortable living space with a large window allowing for plenty of natural light. The room is finished with fresh neutral décor and a modern grey carpet, creating a warm and inviting feel. A feature chimney breast with inset fireplace provides an attractive focal point to the room, while the generous proportions leave ample space for a range of lounge furnishings, making it ideal for both everyday living and relaxing.

Kitchen (3.63m x 2.40m)

The kitchen has been attractively refitted with a range of modern shaker-style wall and base units in a stylish muted green finish, complemented by wood-effect work surfaces and contemporary tiled splashbacks. Designed in a practical U-shape layout, the room offers a good amount of worktop and storage space, along with an integrated oven and hob and a modern black sink with matching tap. Recessed ceiling spotlights and dual aspect windows help to create a bright and functional space, while the layout comfortably accommodates day-to-day cooking and food preparation.

Shower Room W/C (2.38m x 1.71m)

The shower room has been finished to a very high standard with a modern white suite comprising low-level WC, vanity wash hand basin with storage below, and a large walk-in shower with glass screen and rainfall-style shower fitting. The room is further enhanced by attractive wall panelling, a heated towel rail, mirrored wall cabinet and contemporary flooring, creating a sleek and low-maintenance space.

Master Bedroom (3.14m x 3.10m)

The main bedroom is a well-proportioned double room, tastefully decorated in neutral tones and finished with a modern grey carpet. A large window provides good natural light, while the room offers ample space for a double bed and additional bedroom furniture. The fresh décor gives the room a calm and comfortable atmosphere, making it an ideal main bedroom.

Second Bedroom (3.37m x 2.51m)

The second bedroom is another well-presented room, again finished in neutral tones with grey carpeting. This room would work equally well as a single bedroom, guest room, dressing room or home office, depending on the buyer’s needs. It offers a bright and versatile space with room for a bed and additional furnishings.

Outside Space

The significant refurbishment of the property has created one of the most impressive affordable bungalows on the market presently, with the added advantage of significant off street parking facilities for three family vehicles on the block paved driveway and an opulent landscaped rear south facing private garden which has been finished with new lawn turf adding to the eye-catching appeal.


Additional Information
Tenure: Freehold
Council Tax Band: A

Rooms
Entrance Hallway
The bungalow is entered via a welcoming hallway which provides access to the principal rooms. Finished in neutral tones, the hallway complements the rest of the property and helps create a light and airy feel throughout the home.
Lounge
A spacious and well-presented reception room, the lounge offers a bright and comfortable living space with a large window allowing for plenty of natural light. The room is finished with fresh neutral décor and a modern grey carpet, creating a warm and inviting feel. A feature chimney breast with inset fireplace provides an attractive focal point to the room, while the generous proportions leave ample space for a range of lounge furnishings, making it ideal for both everyday living and relaxing.
4.83m x 4.07m (15'10" x 13'4")
Kitchen
The kitchen has been attractively refitted with a range of modern shaker-style wall and base units in a stylish muted green finish, complemented by wood-effect work surfaces and contemporary tiled splashbacks. Designed in a practical U-shape layout, the room offers a good amount of worktop and storage space, along with an integrated oven and hob and a modern black sink with matching tap. Recessed ceiling spotlights and dual aspect windows help to create a bright and functional space, while the layout comfortably accommodates day-to-day cooking and food preparation.
3.63m x 2.40m (11'10" x 7'10")
Shower Room W/C
The shower room has been finished to a very high standard with a modern white suite comprising low-level WC, vanity wash hand basin with storage below, and a large walk-in shower with glass screen and rainfall-style shower fitting. The room is further enhanced by attractive wall panelling, a heated towel rail, mirrored wall cabinet and contemporary flooring, creating a sleek and low-maintenance space.
2.38m x 1.71m (7'9" x 5'7")
Master Bedroom
The main bedroom is a well-proportioned double room, tastefully decorated in neutral tones and finished with a modern grey carpet. A large window provides good natural light, while the room offers ample space for a double bed and additional bedroom furniture. The fresh décor gives the room a calm and comfortable atmosphere, making it an ideal main bedroom.
3.14m x 3.10m (10'3" x 10'2")
Second Bedroom
The second bedroom is another well-presented room, again finished in neutral tones with grey carpeting. This room would work equally well as a single bedroom, guest room, dressing room or home office, depending on the buyer’s needs. It offers a bright and versatile space with room for a bed and additional furnishings.
3.37m x 2.51m (11'0" x 8'2")
Outside Space
The significant refurbishment of the property has created one of the most impressive affordable bungalows on the market presently, with the added advantage of significant off street parking facilities for three family vehicles on the block paved driveway and an opulent landscaped rear south facing private garden which has been finished with new lawn turf adding to the eye-catching appeal.

Utilities
Broadband:
Fibre to Premises
Electricity:
Mains Supply
Sewerage:
Mains Supply
Water:
Heating:
Gas Central

Mortgage calculator

Calculate Your Stamp Duty
£
Results
Stamp Duty To Pay:
Effective Rate:
Tax Band % Taxable Sum Tax

Burnside Avenue, Horden, County Durham, SR8 4SU

Want to explore Burnside Avenue, Horden, County Durham, SR8 4SU further? Explore our local area guide

Struggling to find a property? Get in touch and we'll help you find your ideal property.