Bampton Road, Forest Hill, SE23

Guide Price £350,000 | SSTC

2 bedroom Flat Sold STC
or call 020 3002 4089
Standout Features

Property Description
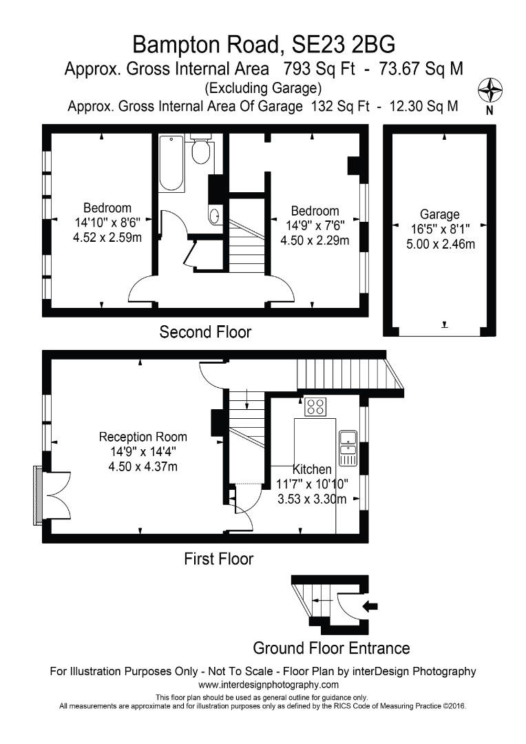
Guide price £350,000 to £375,000. GARAGE and parking, TWO DOUBLE BEDROOMS (both nearly 15 ft in length), SPLIT LEVEL, feels like a house inside due to having your own internal staircases, approximately 800 sq ft of space

EPC rated: C

Council tax band: C (£1,712 p/yr)

Tenure: Leasehold - lease will be extended to approximately 125 years on completion subject to negotiation

FREE conveyancing quotation via Hunters for a "no sale, no solicitor fee" conveyancing service
FREE mortgage consultation via Hunters - just call us to book in

PLEASE VIEW OUR FULL HD VIDEO WALK THROUGH – LIKE AND SUBSCRIBE TO OUR CHANNEL FOR PROPERTY MARKET UPDATES

VIEW OUR INTERACTIVE VIRTUAL REALITY TOUR

THE PROPERTY:

The property being sold is a FIRST and SECOND floor maisonette with the added benefit of a GARAGE, parking and TWO DOUBLE BEDROOMS, it has been recently painted and new carpets have also been installed.

The property has its own front door on the ground floor, as such is split over ground, first and second floors.

Internally the floor space is approaching 800 sq ft which is larger than some two-bedroom houses. In fact, as the property has its own front door and is split over three floors with its own internal staircases, it does feel like a house inside.

Describing the property as a flat / maisonette doesn’t do it justice. We would strongly advise you have a look at the floor plan to better understand the layout and what the property offers.

Often the second bedroom is a smaller bedroom by quite a margin, but in this instance both bedrooms are similar size doubles and measure almost 15ft each. Many buyers are keen to subsidise their costs by renting the second bedroom. A second bedroom of this size would be very well suited to this purpose.

Here is a list of features you won’t see in the images, videos and virtual tour but buyers would be grateful to know:

•Double glazing was installed at the end of 2022 and a FENSA certificate showing building regulations approval is available to buyers when the conveyancing process begins

•The boiler was upgraded in 2019.


•There is both a gas certificate and electrical certificate in place which will be available to buyers when the conveyancing process begins (commonly buyers choose to undertake their own due diligence testing the gas and electrics installations, however in this instance it may not be necessary as certificates are available from the sellers and could save buyer several hundred pounds)

•The floor was upgraded to engineered wood in 2018

•There is access to the loft via a hatch

•We also believe there is a very healthy sink fund in excess of £50,000 with the management company which offers buyers confidence that the development and building is well funded for maintenance in future

This popular part of Forest Hill SE23 is in proximity to green spaces and the town centre where many amenities are located. We’ll provide a brief of the area below, so please read our description to the end.

THE LOCATION:

Located approximately 0.6 miles to Forest Hill station and Sydenham station in the opposite direction, the property is well located for amenities and transport links.

Forest Hill features several small independent high street conveniences including an award-winning butcher, some fantastic cafes, several boutique shops selling clothing and furniture as well as a few great modern, gastro and family friendly pubs.

The Sylvan Post, Canvas and Cream and Stag and Bow all variously host, music events, exhibitions and craft days.

However, if you require the convenience of a large well known supermarket and other known high street names, you will find Sainsbury’s, Boots and WH Smith along the high street too.

SCHOOLS ARE A BIG ATTRACTION IN FOREST HILL:

The property is in proximity of several local schools which have been in Ofsted's top 10%. In our experience, it’s unusual to find a property that is located to this many highly-rated schools. Four of those schools are as follows;

St Dunstan's College - Church of England, mixed, primary and secondary. This is a private school.

Fairlawn - Public, mixed, primary, rated Ofsted "Outstanding".

Kilmorie - Public, mixed, primary, rated Ofsted "Outstanding".

Dalmain - Public, mixed, primary, rated Ofsted "Good".


LOCAL TRANSPORT:

Approximately 0.6 miles away in opposing directions, Forest Hill and Sydenham stations offer services from both London Overground and Southern Rail some of the following travel times are available:

London Bridge in approximately 15 minutes.

Canary Wharf in approximately in 23 minutes.

Shoreditch High Street in approximately 22 minutes.

Victoria station in approximately 30 minutes.

Alongside the train links you will find several bus routes from along Mayow Road and on the South Circular which includes routes 122 and 185 to Crystal Palace and Victoria to name a few.

LOCAL RECREATION:

Mayow Park, located along Mayow Road (itself is a very popular green space) located in proximity to the property. It’s well known for its café as well as a bowling green, outdoor gym, water feature, nature reserve, tennis courts, cricket pitch and meadow area to name a few highlights.

Off the high street in Forest Hill town centre you'll find Forest Hill pools and library both of which have undergone refurbishment. Forest Hill pools is known for its swimming pool facilities but is also a local leisure centre with a gym and fitness classes.

The Horniman Museum and Gardens is a well-known local point of interest and can be found just beyond the town centre. It’s recognized as popular family entertainment venue and has been featured in "Time Out". With regular events, such as a farmer’s market, live music and seasonal festivals to name a few, there is always something to enjoy at the Horniman.

You can read more about the Horniman museum and gardens here:

http://www.horniman.ac.uk/

Blythe Hill Fields is also located in to local area and offers recreational facilities such as the "Trim trails" which is an exercise trail. It also hosts local events where the residents of SE23 get to know each other better and enjoy the community spirit. You may look up details about Blythe Hill Fields on their website:

http://www.blythehillfields.org.uk/index.htm

Please contact Hunters on 0203 0034089 to obtain more information and book a viewing.

Hunters Estate Agents in Forest Hill have sold several houses and flats in close proximity to Bampton Road SE23 over the last 10 years. The stats from the sale include:
•Offers received for 102% of the guide price
•17 Viewings
•10 Offers
•Offers received in 11 days of going to market
•Offer accepted within the first month of going to market
•Hunters also let and manage properties in proximity of Bampton Road

Verified Material Information
Council Tax band: C
Tenure: Leasehold
Lease length: 85 years remaining (125 years from 1985)
Ground rent: £100 pa
Service charge: £1614 pa
Lease restrictions: there are restrictions for the sale of the house - no for sale board are to be put up in the grounds of the property.
Other restrictions include noise, not running a business or subletting part of the property. this is not a conclusive list. (Subletting may be possible if freeholders consent is sought)
Property type: Maisonette
Property construction: Standard construction
Energy Performance rating: C
Number and types of room: 2 bedrooms, 1 bathroom, 1 reception
Electricity supply: Mains electricity
Solar Panels: No
Other electricity sources: No
Water supply: Mains water supply
Sewerage: Mains
Heating: Mains gas-powered central heating is installed.
Heating features: Double glazing
Broadband: FTTP (Fibre to the Premises)
Mobile coverage: O2 - Great, Vodafone - Great, Three - Great, EE - Great
Parking: Garage and On Street
Building safety issues: No
Restrictions - Listed Building: No
Restrictions - Conservation Area: No
Restrictions - Tree Preservation Orders: None
Public right of way: No
Long-term area flood risk: No
Historical flooding: No
Flood defences: No
Coastal erosion risk: No
Planning permission issues: No
Accessibility and adaptations: None
Coal mining area: No
Non-coal mining area: No
All information is provided without warranty. Contains HM Land Registry data © Crown copyright and database right 2021. This data is licensed under the Open Government Licence v3.0.
The information contained is intended to help you decide whether the property is suitable for you. You should verify any answers which are important to you with your property lawyer or surveyor or ask for quotes from the appropriate trade experts: builder, plumber, electrician, damp, and timber expert.


Additional Information
Tenure: Leasehold
Lease Years Remaining: 84
Ground Rent: £100 per year
Service Charge: £1,614 per year
Council Tax Band: C

Utilities
Broadband:
Fibre to Premises
Electricity:
Mains Supply
Sewerage:
Mains Supply
Heating:
Gas Central

Mortgage calculator

Calculate Your Stamp Duty
£
Results
Stamp Duty To Pay:
Effective Rate:
Tax Band % Taxable Sum Tax

Bampton Road, Forest Hill, SE23

Want to explore Bampton Road, Forest Hill, SE23 further? Explore our local area guide

Struggling to find a property? Get in touch and we'll help you find your ideal property.