Military Road, North Shields

£160,000 | SSTC

2 bedroom Flat Sold STC
or call 0191 290 6000
Standout Features

Property Description
Hunters North Shields welcome to the sales market this charming two-bedroom Ground floor flat situated on the ever-popular Military Road.

The flat, which is available with no onward chain, has recently undergone a thorough redecoration, meaning that the property can be moved straight into.

Being placed on a pedestrianised street not far from the town centre and the transport links on offer, the flat will be popular with those working in North Shields; Cobalt; Newcastle or further afield. The property also enjoys good proximity to the bustling North Shields Fish Quay; the beaches of Whitley Bay and the renowned bars and eateries of Tynemouth.

Contact Hunters North Shields today to organise your viewing on Military Road.

External

Town garden onto pedestrianised street. Front door leading to;

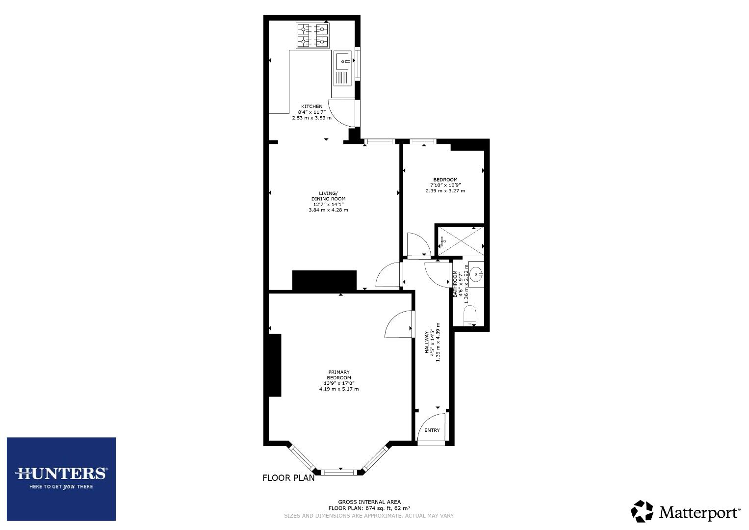
Hallway (1.36 x 4.39)

Tiled hallway with painted walls; picture rails and finial arches.

Bedroom One (4.19 x 5.17)

Tiled primary bedroom in excess of 200Sqft. With bay window and alcoves.

Shower Room (1.36 x 2.92)

Fully tiled shower room with toilet; sink and walk in shower.

Bedroom Two (2.39 x 3.27)

Carpeted second bedroom to the rear of the property. With window out onto private rear yard.

Living Room (3.84 x 4.28)

Light and airy open plan living room with carpet; painted walls and alcove space. Divided from the open-plan kitchen with a breakfasting counter.

Kitchen (2.53 x 3.53)

Tiled kitchen with sleek black cupboard units; integrated oven and induction hob; overhead extractor and washing machine. With door to;

Rear Yard

Private yard to rear of property. With door out onto rear lane.


Additional Information
Tenure: Leasehold
Ground Rent: £10 per year
Council Tax Band: A

Rooms
External
Town garden onto pedestrianised street. Front door leading to;
Hallway
Tiled hallway with painted walls; picture rails and finial arches.
1.36 x 4.39 (4'5" x 14'4")
Bedroom One
Tiled primary bedroom in excess of 200Sqft. With bay window and alcoves.
4.19 x 5.17 (13'8" x 16'11")
Shower Room
Fully tiled shower room with toilet; sink and walk in shower.
1.36 x 2.92 (4'5" x 9'6")
Bedroom Two
Carpeted second bedroom to the rear of the property. With window out onto private rear yard.
2.39 x 3.27 (7'10" x 10'8")
Living Room
Light and airy open plan living room with carpet; painted walls and alcove space. Divided from the open-plan kitchen with a breakfasting counter.
3.84 x 4.28 (12'7" x 14'0")
Kitchen
Tiled kitchen with sleek black cupboard units; integrated oven and induction hob; overhead extractor and washing machine. With door to;
2.53 x 3.53 (8'3" x 11'6")
Rear Yard
Private yard to rear of property. With door out onto rear lane.

Utilities
Electricity:
Mains Supply
Sewerage:
Mains Supply
Heating:
Gas Central

Mortgage calculator

Calculate Your Stamp Duty
£
Results
Stamp Duty To Pay:
Effective Rate:
Tax Band % Taxable Sum Tax

Military Road, North Shields

Want to explore Military Road, North Shields further? Explore our local area guide

Struggling to find a property? Get in touch and we'll help you find your ideal property.