Paulet Road, London, SE5

Guide Price £525,000 | SSTC

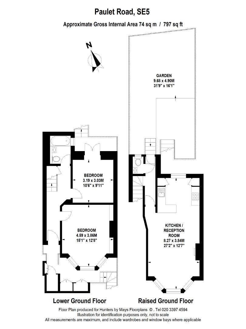
2 bedroom Flat Sold STC
Total Size: 797 SQ FT
or call 020 7708 2002
Standout Features

Property Description
Guide Price £525,000 to £550,000

Two-bedroom maisonette with a large rear garden, occupying two floors of this grand Victorian terrace. Chain free! Being sold as leasehold, subject to the offer amount the vendor will sell with a share of the Freehold!

You enter the property via your own front door and stairs, with a large storage cupboard for bikes and bulky items. Once inside, there is wide hallway leading to the bedrooms and bathroom, the master bedroom has an attractive bay window and alcove shelving. Plenty of space for bedroom furniture and finished carpet and walls. The second bedroom is also a good sized double and has the same neutral décor with French doors leading to the garden. The bathroom sits at the end of the hallway, its well equipped and modern, with travertine style tiling, a three-piece bathroom suite with a shower over the bath and thermostatic controls. A large, recessed vanity unit with mirrored doors and there’s heaps of storage space behind.
Up a flight of stairs; to the spacious open plan reception - wonderfully high ceilings and a south facing bay window, which keeps things bright and light. There is ample space for relaxing and dining. Plenty of storage in white gloss units with long chrome handles and fully integrated appliances, including; a stainless-steel oven, hob and extractor hood, dishwasher and fridge freezer. There is plenty of worktop space and a breakfast bar with smart pendant lights overhead continue the contemporary feel with additional spotlights around the kitchen. The washing machine has its own home under the stairs, which is a good design touch. Finished with engineered oak flooring and neutral décor with am attractive feature fire place.
Just off the hallway, there is a second W.C to serve this floor and access via steps to a large rear garden. With low maintenance shingle and some established plants and shrubs in the borders. A great space to relax or entertain and very little in the way of upkeep.
Loughborough Junction station (Thameslink) is 0.6 mile walk away, Brixton tube station (Victoria line) is a 20 minute walk, or a couple of stops on the bus, and Denmark Hill station is 1.1 miles away, with services fast to Victoria and the South-East coast and the Overground between Clapham Junction and Highbury and Islington via Shoreditch. Coldharbour Lane has a wealth of bus routes taking you all across London.

Tenure: Leasehold, subject to the offer amount the vendor will sell with a share of the Freehold!
Council Tax band: B
Authority: London Borough of Lambeth
Lease length: 110 years remaining (Started in 2010 with a lease of 125 years)
Ground rent: £400 a year (Subject to increase rent review every 40 years)
Service charge: £561.85 a year (buildings insurance and communal costs)
Construction: Standard construction
Property type: Mid-terrace, Maisonette
Number of floors in building: 4
Has lift: No
Over commercial premises: No
Parking: On Street, permit requires
Electricity: Connected to mains electricity
Water and drainage: Connected to mains water supply
Mains surface water drainage: Yes
Sewerage: Connected to mains sewerage
Heating: Central heating, Mains gas
Heating features: Double glazing, Underfloor heating
Building safety issues: No
Rights and easements
Title TGL332269 contains beneficial rights or easements.
Here is a summary but a property lawyer can advise further:- The property benefits from rights under the Leasehold Reform Act 1967 as granted in the transfer dated 24 June 1985. - The property is subject to rights of drainage. - The property includes any legal easements referred to in the lease.
Public right of way through and/or across your house, buildings or land: No
Flood risk: Long-term flood risk
History of flooding: No history of flooding has been reported.
Coastal erosion risk: No
Planning and development: No
Listing and conservation: No
Accessibility: None
Coalfield or mining: No coal mining risk identified

Should you wish to proceed with an offer on this property, we are obligated by HMRC to conduct mandatory Anti-Money Laundering (AML) checks. We outsource these checks to our compliance partners at Coadjute, who charge a fee of £30 + VAT per person for this service. This cost is payable by the buyer and applies to each individual buyer, as well as to any person gifting funds towards the purchase.


Additional Information
Tenure: Leasehold
Lease Years Remaining: 110
Ground Rent: £400 per year
Service Charge: £561 per year
Council Tax Band: B

Utilities
Broadband:
Fibre to Premises
Electricity:
Mains Supply
Sewerage:
Mains Supply
Heating:
Gas Central

Mortgage calculator

Calculate Your Stamp Duty
£
Results
Stamp Duty To Pay:
Effective Rate:
Tax Band % Taxable Sum Tax

Paulet Road, London, SE5

Want to explore Paulet Road, London, SE5 further? Explore our local area guide

Struggling to find a property? Get in touch and we'll help you find your ideal property.