2 bedroom Flat Sold STC

Guide Price £600,000 | SSTC

2 bedroom Flat Sold STC
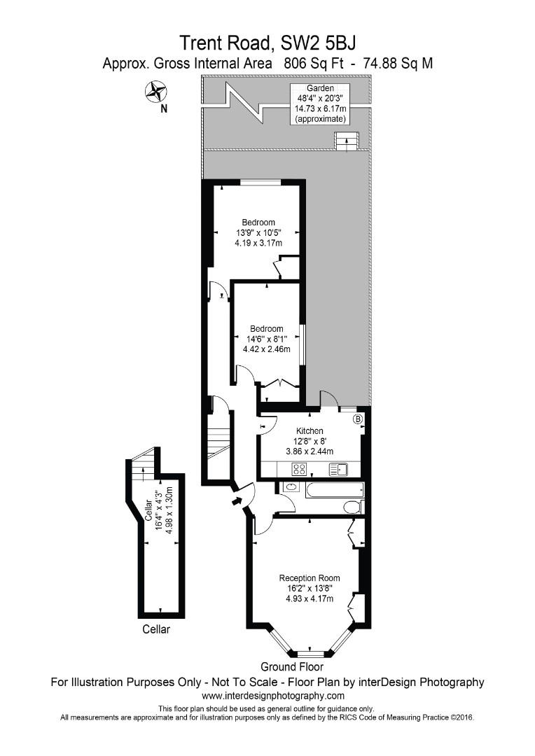
Total Size: 806 SQ FT
or call 020 7708 2002
Standout Features

Property Description
A well-proportioned ground floor period conversion flat offering generous living space and a private south-facing garden!

The reception room is bright and characterful, featuring a large bay window, exposed brick chimney breast, feature fireplace and bespoke shelving built into the alcoves. The proportions allow for both comfortable lounging and dining. The kitchen is well laid out with cream wall and base units, contrasting worktops, dark green tiled splashback, built-in oven and hob, breakfast bar, and space for a dining table. From here, doors open directly onto the private garden — ideal for indoor-outdoor living. The south-facing garden is a standout feature: low-maintenance with established planting and a raised seating area perfect for summer entertaining and BBQs. To the rear are two well-sized double bedrooms, both with built-in storage and space for additional furniture. The property also benefits from direct access to a storage cellar.

Situated just 0.6 miles from Brixton station (Victoria Line and National Rail), offering fast access to Vauxhall, Oxford Circus, King’s Cross and London Victoria. Numerous bus routes serve the area. Brixton’s vibrant scene is within easy reach, including Brixton Village, Pop Brixton, The Blues Kitchen, The Ritzy Picturehouse, and the O2 Academy. Supermarkets, cafés, restaurants and green spaces are all nearby.

Tenure: Share of Freehold
Council Tax band: D
Authority: London Borough of Lambeth
Lease length: 995 years remaining (Started in 2022 with a lease of 999 years.)
Ground rent: Not payable
Service charge: Payable as and when repairs and maintenance are required
Buildings Insurance: £800 per annum approx
Construction: Standard construction
Property type: Flat
Number of floors in building: 3
Entrance on floor: Ground
Has lift: No
Over commercial premises: No
Parking: On street, permit required
Electricity: Mains electricity
Water and drainage: Connected to mains water supply
Mains surface water drainage: Yes
Sewerage: Connected to mains sewerage
Heating: Gas central heating
Building safety issues: No
Lease restrictions: No trade or business whatsoever shall be carried on upon the premises which shall be used as and for residential purposes only.
Public right of way through and/or across your house, buildings or land: No
Flood risk: No
History of flooding: No
Planning and development: None
Listing and conservation: None
Accessibility: None
Mining: No coal mining risk identified

Should you wish to proceed with an offer on this property, we are obligated by HMRC to conduct mandatory Anti-Money Laundering (AML) checks. We outsource these checks to our compliance partners at Coadjute, who charge a fee of £30 + VAT per person for this service. This cost is payable by the buyer and applies to each individual buyer, as well as to any person gifting funds towards the purchase.


Additional Information
Tenure: Leasehold
Lease Years Remaining: 995
Service Charge: £800 per year
Council Tax Band: D

Utilities
Electricity:
Mains Supply
Sewerage:
Mains Supply
Water:
Heating:
Gas Central

Mortgage calculator

Calculate Your Stamp Duty
£
Results
Stamp Duty To Pay:
Effective Rate:
Tax Band % Taxable Sum Tax

Trent Road, London, SW2

Want to explore Trent Road, London, SW2 further? Explore our local area guide

Struggling to find a property? Get in touch and we'll help you find your ideal property.