Fartown, Pudsey

Offers over £150,000 | SSTC

2 bedroom House Sold STC
or call 0113 257 6198
Standout Features

Property Description
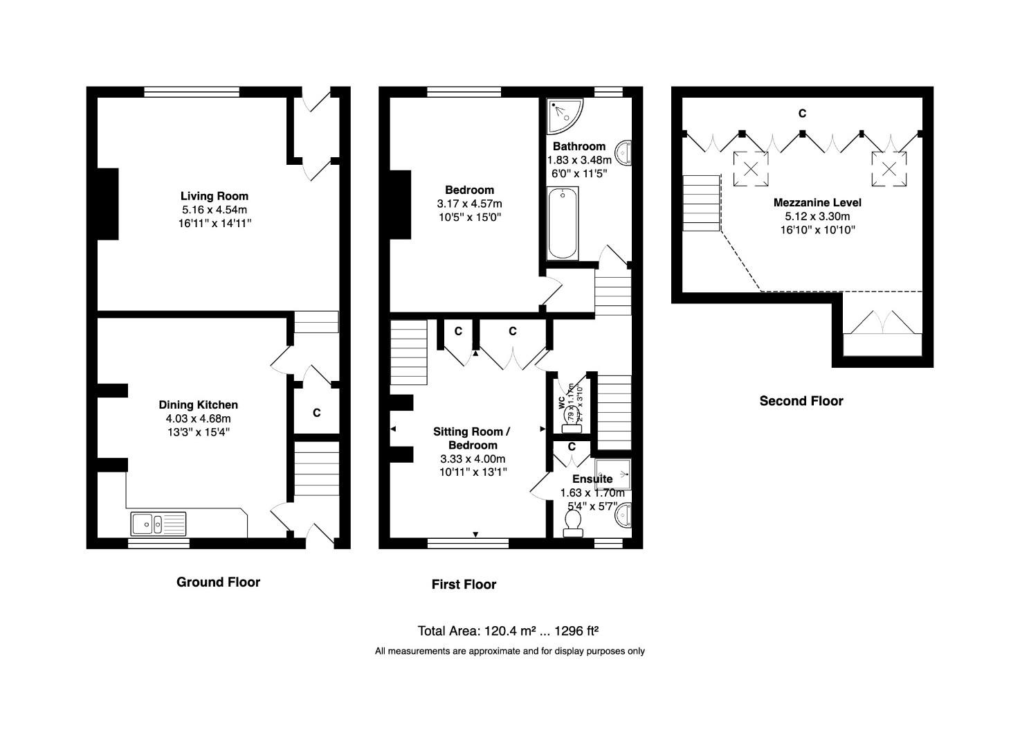
Charming terraced house with character and potential to add value, featuring a cozy reception room with a fireplace, engineered oak flooring, two double bedrooms including one with a mezzanine and en-suite, two bathrooms, a spacious kitchen, and a low-maintenance south-facing garden, all located near green spaces and amenities, perfect for couples, first-time buyers, or investors.

Hello, folks! Are you looking for a new home with character and lots of potential? Let me introduce you to a charming stone terraced house that is just waiting for someone to inject their own style into it. This property is currently on the market, and it's simply bursting with opportunity.

This house features a welcoming reception room, a separate space that is both spacious and cosy, thanks to an inviting fireplace. You'll be walking on beautiful engineered oak flooring, adding a touch of finesse to the room.

The house boasts two delightful double bedrooms. Bedroom one is a generous size, while bedroom two offers built-in storage, ensuite shower-room and a unique mezzanine level accessible via a staircase. This room also comes with an ensuite shower room for that extra bit of privacy and convenience.

There are two bathrooms in this house, one large with a separate shower cubicle and a separate toilet, offering flexibility for a busy household.
The second bathroom is en-suite accessed from the bedroom. The kitchen is a real heart of the home, offering ample dining space and storage units. You can expect a built-in oven/hob, worktop with sink, and space for your appliances. The tiled floor adds a practical touch to the room.

The property doesn't just offer great features indoors, but outdoors too. The south-facing garden is landscaped with astro turf and paving for easy maintenance. Plus, there's also front and rear entrance vestibules and access to a partial cellar.

Whether you're a couple, a first-time buyer, or an investor, this property is an excellent choice. It's in a location that's rich in green spaces, walking and cycling routes, and it's close to local amenities, schools, and public transport links.

Don't miss this opportunity to add value to a property that's already got so much to offer.

DINING KITCHEN (4.68m x 4.03m)

LIVING ROOM (5.16m x 4.54m)

BEDROOM (4.00m x 3.33m)

EN-SUITE (1.70m x 1.63m)

BEDROOM (4.57m x 3.17m)

BATHROOM (3.48m x 1.83m)

BEDROOM (5.12m x 3.30m)


Additional Information
Tenure: Freehold
Council Tax Band: B

Rooms
DINING KITCHEN

4.68m x 4.03m (15'4" x 13'2")
LIVING ROOM

5.16m x 4.54m (16'11" x 14'10")
BEDROOM

4.00m x 3.33m (13'1" x 10'11")
EN-SUITE

1.70m x 1.63m (5'6" x 5'4")
BEDROOM

4.57m x 3.17m (14'11" x 10'4")
BATHROOM

3.48m x 1.83m (11'5" x 6'0")
BEDROOM

5.12m x 3.30m (16'9" x 10'9")

Mortgage calculator

Calculate Your Stamp Duty
£
Results
Stamp Duty To Pay:
Effective Rate:
Tax Band % Taxable Sum Tax

Fartown, Pudsey

Want to explore Fartown, Pudsey further? Explore our local area guide

Struggling to find a property? Get in touch and we'll help you find your ideal property.