2 bedroom House Sold STC

£250,000 | SSTC

2 bedroom House Sold STC
or call 0113 202 9923
Standout Features

Property Description
Tucked away in a quiet cul-de-sac within a highly sought-after area of Yeadon, this beautifully presented two-bedroom semi-detached home offers stylish, well-maintained accommodation with a warm and welcoming feel. The property benefits from bright, well-proportioned rooms, attractive front and rear gardens, and a private driveway providing off-street parking.

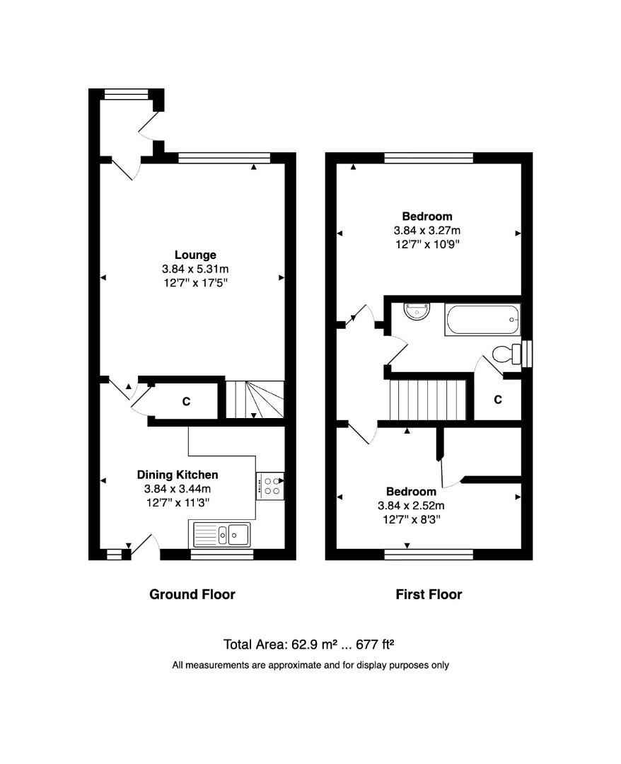
The entrance hall leads into a spacious, tastefully decorated lounge, filled with natural light from a large front-facing window—an ideal space for relaxing or entertaining. To the rear, a modern dining kitchen offers ample storage and worktop space, room for a dining table, and views over the garden, with direct access outside, making it perfect for everyday living and summer dining.

Upstairs are two generous double bedrooms, both offering comfortable accommodation. The second bedroom features a partitioned sound recording cupboard, which could easily be removed or adapted to suit individual needs. A contemporary house bathroom fitted with a white suite completes the first floor.

Externally, the property continues to impress. The front garden provides excellent kerb appeal, while the enclosed rear garden is a large, level and pleasant space—ideal for children, pets or outdoor enjoyment, and offering potential for a substantial kitchen extension, subject to consent. The side driveway ensures convenient off-street parking.

The location is ideal, with scenic walks and green spaces nearby, as well as easy access to Yeadon’s range of shops, cafés, restaurants and regular public transport links to Leeds, Bradford and surrounding areas—making this an excellent choice for commuters.

Additional Info

Offer Acceptance & AML Regulations

Under the Money Laundering, Terrorist Financing & Transfer of Funds Regulations 2017, we are required to obtain proof of the source of funds for the purchase, as well as identification documents for all prospective buyers. We kindly ask buyers to assist with this process to avoid any delays in agreeing a sale.

A fee of £42 (inclusive of VAT) per named buyer is payable by the successful purchaser(s). This fee covers the money laundering checks carried out by SmartSearch, the firm that administers our ID verification. Please note that the property will not be marked as sold subject to contract until all required identification has been provided and AML checks have been satisfactorily completed.

________________________________________

Mortgage Advice

We are pleased to offer mortgage advice through our partnership with CS Mortgage Solutions. To arrange an appointment, please contact the branch and we will organise for an advisor to help you find the most suitable mortgage for your circumstances.
The initial consultation is free of charge and without obligation. A fee may be payable should you choose to proceed with their services.

________________________________________

Please Note

The extent of the property and its boundaries are subject to confirmation by inspection of the title deeds. All measurements provided in these particulars are approximate and intended for guidance only. Fixtures, fittings and appliances have not been tested, and no warranty can be given regarding their condition or functionality. Internal photographs are supplied for general information and should not be taken to imply that any specific item is included in the sale.


Additional Information
Tenure: Freehold
Council Tax Band: C

Rooms
Additional Info
Offer Acceptance & AML Regulations

Under the Money Laundering, Terrorist Financing & Transfer of Funds Regulations 2017, we are required to obtain proof of the source of funds for the purchase, as well as identification documents for all prospective buyers. We kindly ask buyers to assist with this process to avoid any delays in agreeing a sale.

A fee of £42 (inclusive of VAT) per named buyer is payable by the successful purchaser(s). This fee covers the money laundering checks carried out by SmartSearch, the firm that administers our ID verification. Please note that the property will not be marked as sold subject to contract until all required identification has been provided and AML checks have been satisfactorily completed.

________________________________________

Mortgage Advice

We are pleased to offer mortgage advice through our partnership with CS Mortgage Solutions. To arrange an appointment, please contact the branch and we will organise for an advisor to help you find the most suitable mortgage for your circumstances.
The initial consultation is free of charge and without obligation. A fee may be payable should you choose to proceed with their services.

________________________________________

Please Note

The extent of the property and its boundaries are subject to confirmation by inspection of the title deeds. All measurements provided in these particulars are approximate and intended for guidance only. Fixtures, fittings and appliances have not been tested, and no warranty can be given regarding their condition or functionality. Internal photographs are supplied for general information and should not be taken to imply that any specific item is included in the sale.

Mortgage calculator

Calculate Your Stamp Duty
£
Results
Stamp Duty To Pay:
Effective Rate:
Tax Band % Taxable Sum Tax

Parkland View, Yeadon, Leeds

Want to explore Parkland View, Yeadon, Leeds further? Explore our local area guide

Struggling to find a property? Get in touch and we'll help you find your ideal property.