Standout Features
                         - CHAIN FREE SALE!
- Rare to market - first time in 45 years!
- Three bedroom dormer bungalow
- Three generous reception rooms
- Scope to personalise to your families needs
- Corner plot with detached garage & block-paved drive
- Two bathrooms - one on each floor
- Private low-maintenance sun trap garden
- Sought-after residential location
- Early viewing is highly advised
Property Description
                    
                
                        A spacious and versatile THREE bedroom dormer BUNGALOW, offered to the market CHAIN FREE in a highly SOUGHT-AFTER residential spot. This SPACIOUS home offers THREE VERSATILE RECEPTION ROOMS, kitchen with SCOPE to modernise, THREE BEDROOMS and TWO bathrooms. Outside features include a private low-maintenance rear garden, DETACHED GARAGE with workshop space, and a large block-paved DRIVE WAY for multiple cars. Early viewing advised.
   
                    
                    
                                            Additional Information
 
                        
                        | Tenure: | Freehold | 
|---|---|
| Council Tax Band: | D | 
Rooms
 
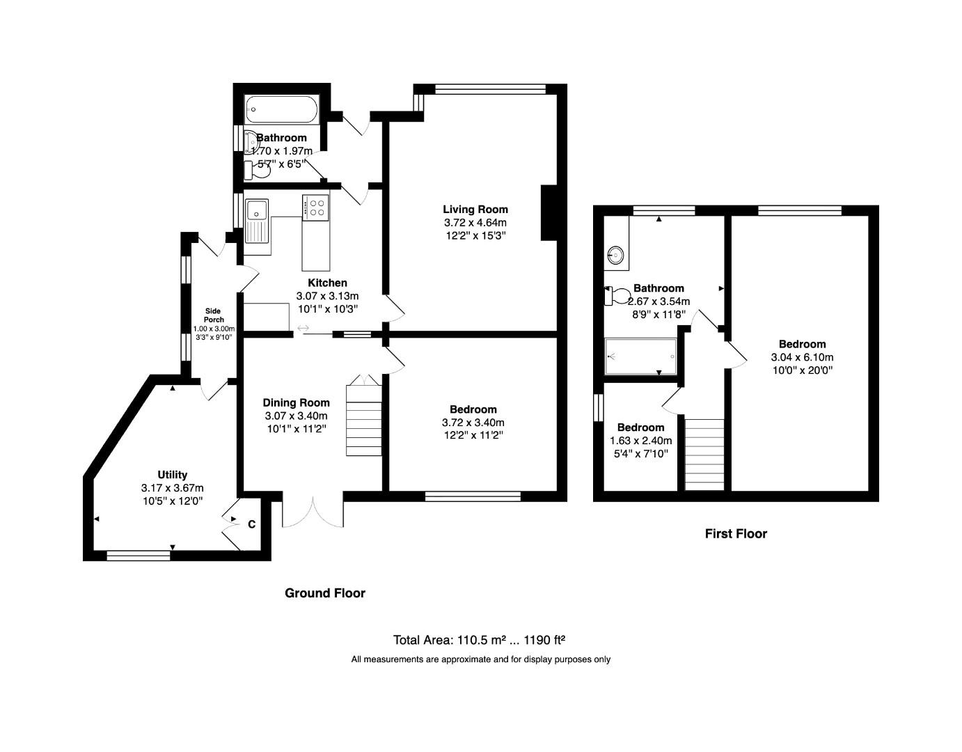
                        ENTRANCE HALL
                                        (GROUND FLOOR) BATHROOM
                                        1.70 x 1.97m (5'6" x 6'5")
KITCHEN
                                        3.07 x 3.13m (10'0" x 10'3")
SIDE PORCH
                                        1.00 x 3.00m (3'3" x 9'10")
UTILITY
                                        3.17 x 3.67m (10'4" x 12'0")
LIVING ROOM
                                        3.72 x 4.64m (12'2" x 15'2")
DINING ROOM
                                        3.07 x 3.40m (10'0" x 11'1")
(GROUND FLOOR) BEDROOM 2
                                        3.72 x 3.40m (12'2" x 11'1")
LANDING
                                        (FIRST FLOOR) BEDROOM ONE
                                        3.04 x 6.10m (9'11" x 20'0")
(FIRST FLOOR) BEDROOM TWO
                                        1.63 x 2.40m (5'4" x 7'10")
(FIRST FLOOR) BATHROOM
                                        2.67 x 3.54m (8'9" x 11'7")
GARAGE
                                        GARDENS & DRIVE
                                        Mortgage calculator
                        
                Calculate Your Stamp Duty            
            
                    
            Results
            
                
            
                
                    
        
                
                    Stamp Duty To Pay:
                    
                
                
                    Effective Rate:
                    
                
            | Tax Band | % | Taxable Sum | Tax | 
|---|
Cooper Hill, Pudsey
                    Want to explore Cooper Hill, Pudsey further? Explore our local area guide
Struggling to find a property? Get in touch and we'll help you find your ideal property.
 
                                         
                            