3 bedroom House For Sale

£335,000 | Available

3 bedroom House For Sale
or call 0117 956 1234
Standout Features

Property Description
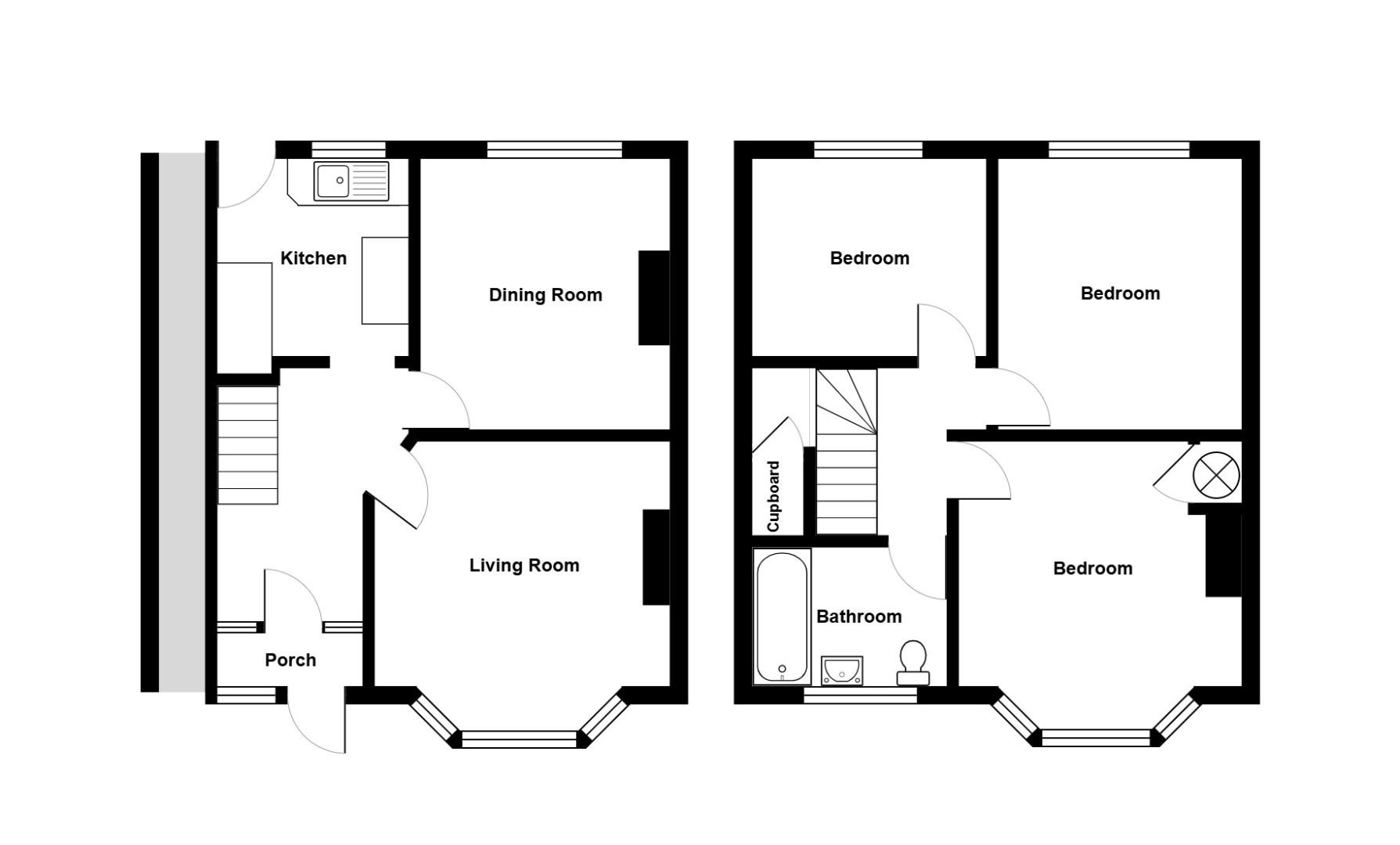
A double bay fronted middle terrace house offered for sale with no onward chain and conveniently positioned for major commuting routes, Page Park & amenities. The accommodation comprises; hall, lounge, separate dining room, kitchen, bathroom with an over bath shower & 3 bedrooms. Other benefits include; gas c/h, off street parking for 2 cars, a garage and a low maintenance rear garden.

DESCRIPTION

Hunters Estate Agents, Downend are pleased to offer for sale with no onward chain this double bay fronted middle terrace property which has been loved and cared for, for over forty years by its current owner.
The property is conveniently located for major commuting routes, for the amenities of both Downend and Staple Hill, for many schools and for the popular Page Park which provides excellent outdoor recreational space for people of all ages to enjoy.
The amenities include a wide variety of independent shops and supermarkets, restaurants, coffee shops, libraries, doctors surgeries and dental practices.
The accommodation comprises to the ground floor; an entrance hall, lounge, separate dining room and a kitchen with an integral electric oven and four ring electric hob. To the first floor there are three bedrooms and a bathroom with a MIra over bath shower system.
Externally to the front of the property is an area laid to block paving, providing off street parking spaces for two cars. To the rear of the property is a generous sized low maintenance garden which is laid mainly to paving and loose chippings. To the rear of the garage is a single sized garage.
We would encourage an early internal viewing.

ENTRANCE

Via a half opaque uPVC double glazed door, leading into a porch.

ENTRANCE PORCH

Wooden door leading into entrance hall.

ENTRANCE HALL

Under stairs storage cupboard, laminate floor, stairs leading to first floor accommodation and doors leading into all ground floor rooms.

LOUNGE (3.81m x 3.58m into bay)

Bay window to front, gas fire with a back boiler supplying gas central, TV aerial point, radiator.

DINING ROOM (3.53m x 3.23m)

Window to rear, picture rail, tiled fireplace, TV aerial point, radiator.

KITCHEN (2.49m x 2.26m)

Window to rear, stainless steel single drainer sink unit with chrome mixer tap, range of fitted wall and base units incorporating an integral electric oven and four ring electric hob, plumbing for washing machine, space for a tall fridge freezer, roll edged worksurface, half tiled walls, radiator, half opaque glazed door leading into rear garden.

FIRST FLOOR ACCOMMODATION

LANDING

Loft access, doors leading into all first floor rooms.

BEDROOM ONE (3.78m into bay x 3.76m)

Bay window to front, airing cupboard, radiator.

BEDROOM TWO (3.53m x 3.12m)

Window to rear, storage cupboard, radiator.

BEDROOM THREE (3.07m x 2.57m)

Window to rear, radiator.

BATHROOM (2.44m x 1.75m)

Opaque glazed window to front, white suite comprising; W.C. wash hand basin and a panelled bath with a Mira over bath shower system, tiled splash backs, radiator.

OUTSIDE

FRONT

An area laid to block paving providing two off street parking spaces.

REAR GARDEN

Low maintenance rear garden which is laid mostly to paved areas and loose chippings, two brick built storage cupboards, garden surrounded by a boundary wall and wooden fencing, wooden gates providing side and rear pedestrian access.

GARAGE

Single sized garage situated to the rear of the garden.


Additional Information
Tenure: Freehold
Council Tax Band: B

Rooms
DESCRIPTION
Hunters Estate Agents, Downend are pleased to offer for sale with no onward chain this double bay fronted middle terrace property which has been loved and cared for, for over forty years by its current owner.
The property is conveniently located for major commuting routes, for the amenities of both Downend and Staple Hill, for many schools and for the popular Page Park which provides excellent outdoor recreational space for people of all ages to enjoy.
The amenities include a wide variety of independent shops and supermarkets, restaurants, coffee shops, libraries, doctors surgeries and dental practices.
The accommodation comprises to the ground floor; an entrance hall, lounge, separate dining room and a kitchen with an integral electric oven and four ring electric hob. To the first floor there are three bedrooms and a bathroom with a MIra over bath shower system.
Externally to the front of the property is an area laid to block paving, providing off street parking spaces for two cars. To the rear of the property is a generous sized low maintenance garden which is laid mainly to paving and loose chippings. To the rear of the garage is a single sized garage.
We would encourage an early internal viewing.
ENTRANCE
Via a half opaque uPVC double glazed door, leading into a porch.
ENTRANCE PORCH
Wooden door leading into entrance hall.
ENTRANCE HALL
Under stairs storage cupboard, laminate floor, stairs leading to first floor accommodation and doors leading into all ground floor rooms.
LOUNGE
Bay window to front, gas fire with a back boiler supplying gas central, TV aerial point, radiator.
3.81m x 3.58m into bay (12'6" x 11'9" into bay)
DINING ROOM
Window to rear, picture rail, tiled fireplace, TV aerial point, radiator.
3.53m x 3.23m (11'7" x 10'7")
KITCHEN
Window to rear, stainless steel single drainer sink unit with chrome mixer tap, range of fitted wall and base units incorporating an integral electric oven and four ring electric hob, plumbing for washing machine, space for a tall fridge freezer, roll edged worksurface, half tiled walls, radiator, half opaque glazed door leading into rear garden.
2.49m x 2.26m (8'2" x 7'5")
FIRST FLOOR ACCOMMODATION

LANDING
Loft access, doors leading into all first floor rooms.
BEDROOM ONE
Bay window to front, airing cupboard, radiator.
3.78m into bay x 3.76m (12'5" into bay x 12'4")
BEDROOM TWO
Window to rear, storage cupboard, radiator.
3.53m x 3.12m (11'7" x 10'3")
BEDROOM THREE
Window to rear, radiator.
3.07m x 2.57m (10'1" x 8'5")
BATHROOM
Opaque glazed window to front, white suite comprising; W.C. wash hand basin and a panelled bath with a Mira over bath shower system, tiled splash backs, radiator.
2.44m x 1.75m (8'0" x 5'9")
OUTSIDE

FRONT
An area laid to block paving providing two off street parking spaces.
REAR GARDEN
Low maintenance rear garden which is laid mostly to paved areas and loose chippings, two brick built storage cupboards, garden surrounded by a boundary wall and wooden fencing, wooden gates providing side and rear pedestrian access.
GARAGE
Single sized garage situated to the rear of the garden.

Mortgage calculator

Calculate Your Stamp Duty
£
Results
Stamp Duty To Pay:
Effective Rate:
Tax Band % Taxable Sum Tax

Burley Grove, Downend, Bristol, BS16 5QE

Want to explore Burley Grove, Downend, Bristol, BS16 5QE further? Explore our local area guide

Struggling to find a property? Get in touch and we'll help you find your ideal property.