3 bedroom House For Sale

OIRO £220,000 | Available

3 bedroom House For Sale
or call 0113 257 6198
Standout Features

Property Description
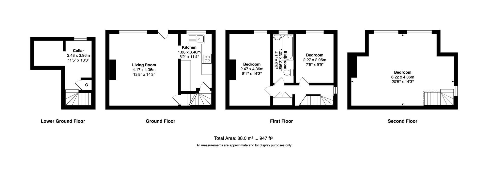
This immaculate three-bedroom end of terrace house is for sale in the heart of Rodley, just off Rodley Town Street, and enjoys easy access to attractive canal side walks and local amenities. Set over three floors, the property offers stylish, flexible living space, including a useful cellar with power and heating, and is ideally suited to first-time buyers, couples, or those seeking a well-presented home with character and versatility.

This immaculately presented three-bedroom end of terrace house offers well-planned accommodation arranged over three floors, with the added benefit of a useful cellar space.

The ground floor features a bright and welcoming reception room with neutral décor, providing a blank canvas and a comfortable space for relaxing or entertaining. To the rear is a contemporary kitchen fitted with high-gloss white units, tiled splashbacks, and integrated oven and fridge, with access down to the cellar.

The cellar benefits from both central heating and power, with a section currently used as a small studio, making it a versatile area suitable for home working, hobbies, or additional storage.

On the first floor, there is a good-size double bedroom with a period fireplace and neutral décor, alongside a further single bedroom currently used as a study, offering flexible accommodation. The modern bathroom is finished with white tiling and includes a bath with shower over and a heated towel rail.

The top floor is occupied by an impressive main double bedroom, featuring gable and dormer windows, excellent natural light, and far-reaching views.

Rodley is well regarded for its range of local amenities along Town Street, including cafés, pubs, and everyday shops, as well as scenic walks along the Leeds and Liverpool Canal and nearby green spaces. Regular bus services provide convenient public transport links to surrounding areas. The property falls within Council Tax Band A, which may appeal to buyers seeking an efficient and affordable home in a popular village setting.

KITCHEN (3.46m x 1.88m)

LIVING ROOM (4.36m x 4.17m)

BEDROOM (4.36m x 2.47m)

BEDROOM (2.96m x 2.27m)

BATHROOM (2.96m x 1.25m)

BEDROOM (6.22m x 4.36m)

CELLAR (3.96m x 3.48m)


Additional Information
Tenure: Freehold
Council Tax Band: A

Rooms
KITCHEN

3.46m x 1.88m (11'4" x 6'2")
LIVING ROOM

4.36m x 4.17m (14'3" x 13'8")
BEDROOM

4.36m x 2.47m (14'3" x 8'1")
BEDROOM

2.96m x 2.27m (9'8" x 7'5")
BATHROOM

2.96m x 1.25m (9'8" x 4'1")
BEDROOM

6.22m x 4.36m (20'4" x 14'3")
CELLAR

3.96m x 3.48m (12'11" x 11'5")

Mortgage calculator

Calculate Your Stamp Duty
£
Results
Stamp Duty To Pay:
Effective Rate:
Tax Band % Taxable Sum Tax

Eggleston Street, Leeds

Want to explore Eggleston Street, Leeds further? Explore our local area guide

Struggling to find a property? Get in touch and we'll help you find your ideal property.