3 bedroom House For Sale

£239,950 | Available

3 bedroom House For Sale
or call 0113 257 6198
Standout Features

Property Description
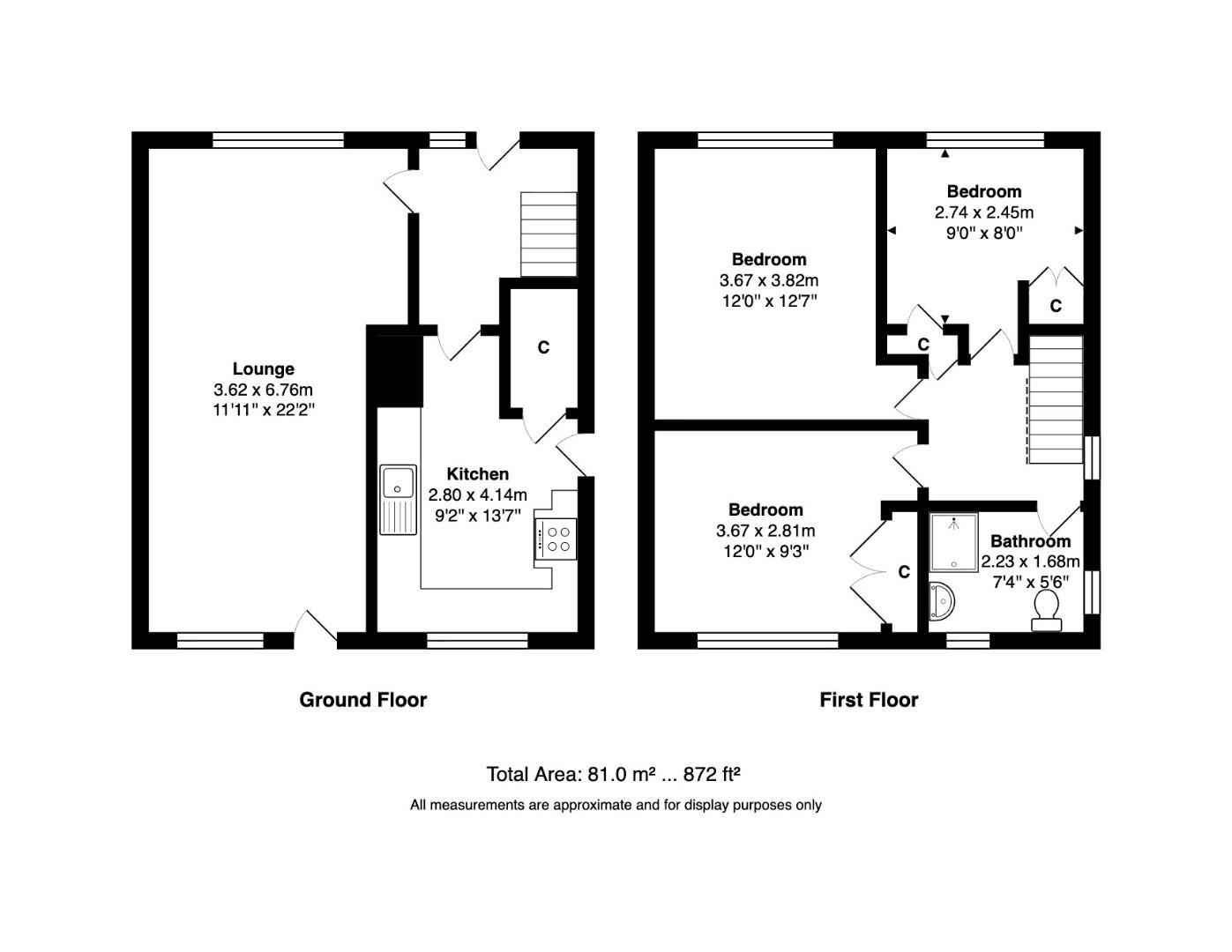
A well-presented THREE-bedroom semi-detached house in popular Bramley, Leeds, offering two double bedrooms plus single bedroom / office, front and rear gardens with parking, and convenient access to local amenities, schools, green spaces, and excellent bus and rail links for commuters.

This well-presented THREE-bedroom semi-detached home is ideally situated in the ever-popular Bramley area of Leeds, offering comfortable living space suited to a range of buyers.

The property opens into a welcoming HALLWAY leading to a bright and inviting LIVING room, where a pleasant outlook over the garden creates a relaxing atmosphere. A separate KITCHEN is fitted with a range of wall and base units, provides space for appliances, and benefits from direct access to the side garden, ideal for everyday convenience.

Upstairs, the home offers THREE bedrooms, including two well-proportioned doubles and a versatile third room, perfect as a home office, nursery, or single bedroom. BEDROOM ONE to the front features a fitted wardrobe rail, while the rear DOUBLE BEDROOM enjoys built-in storage and views over the garden. The BATHROOM is fitted with a modern walk-in shower, WC, and vanity storage with additional space beneath the sink.

Externally, the property boasts both FRONT and REAR GARDENS, thoughtfully arranged to provide distinct areas for relaxing, entertaining, or gardening. A garden shed and useful side access add further practicality, while off-street PARKING is available to the front.

The location is particularly appealing, with Bramley’s wide range of local amenities close at hand, including shops, cafés, and everyday services along the nearby high street. The area also benefits from access to green spaces, scenic walking and cycling routes, and nearby parks along the Leeds & Liverpool Canal.

For commuters, the property is well connected, with regular bus services along Leeds & Bradford Road offering easy access to Leeds city centre and Pudsey. Bramley railway station is also within easy reach.

HALLWAY

LIVING (3.62 x 6.76)

KITCHEN (2.80 x 4.14)

LANDING

BEDROOM (3.67 x 3.82)

BEDROOM (3.67 x 2.81)

BEDROOM (2.74 x 2.45)

BATHROOM (2.23 x 1.68)


Additional Information
Tenure: Freehold
Council Tax Band: A

Rooms
HALLWAY

LIVING

3.62 x 6.76 (11'10" x 22'2")
KITCHEN

2.80 x 4.14 (9'2" x 13'6")
LANDING

BEDROOM

3.67 x 3.82 (12'0" x 12'6")
BEDROOM

3.67 x 2.81 (12'0" x 9'2")
BEDROOM

2.74 x 2.45 (8'11" x 8'0")
BATHROOM

2.23 x 1.68 (7'3" x 5'6")

Mortgage calculator

Calculate Your Stamp Duty
£
Results
Stamp Duty To Pay:
Effective Rate:
Tax Band % Taxable Sum Tax

Leeds & Bradford Road, Leeds

Want to explore Leeds & Bradford Road, Leeds further? Explore our local area guide

Struggling to find a property? Get in touch and we'll help you find your ideal property.