Standout Features
- Extended terrace home
- Three bedrooms
- Lounge & dining room
- 21ft Modern fitted kitchen/breakfast room
- Family bathroom
- Ground floor wet room
- Well tended rear garden
- Driveway to front
- Garage to rear
- Popular location
Property Description
A much improved extended terrace within this popular road. The spacious living accommodation comprises: lounge. dining room, kitchen/b'fast room. 3 bedrooms, family bathroom & wet room. Good size garden, garage & driveway.
Additional Information
| Tenure: | Freehold |
|---|---|
| Council Tax Band: | B |
Rooms
DESCRIPTION
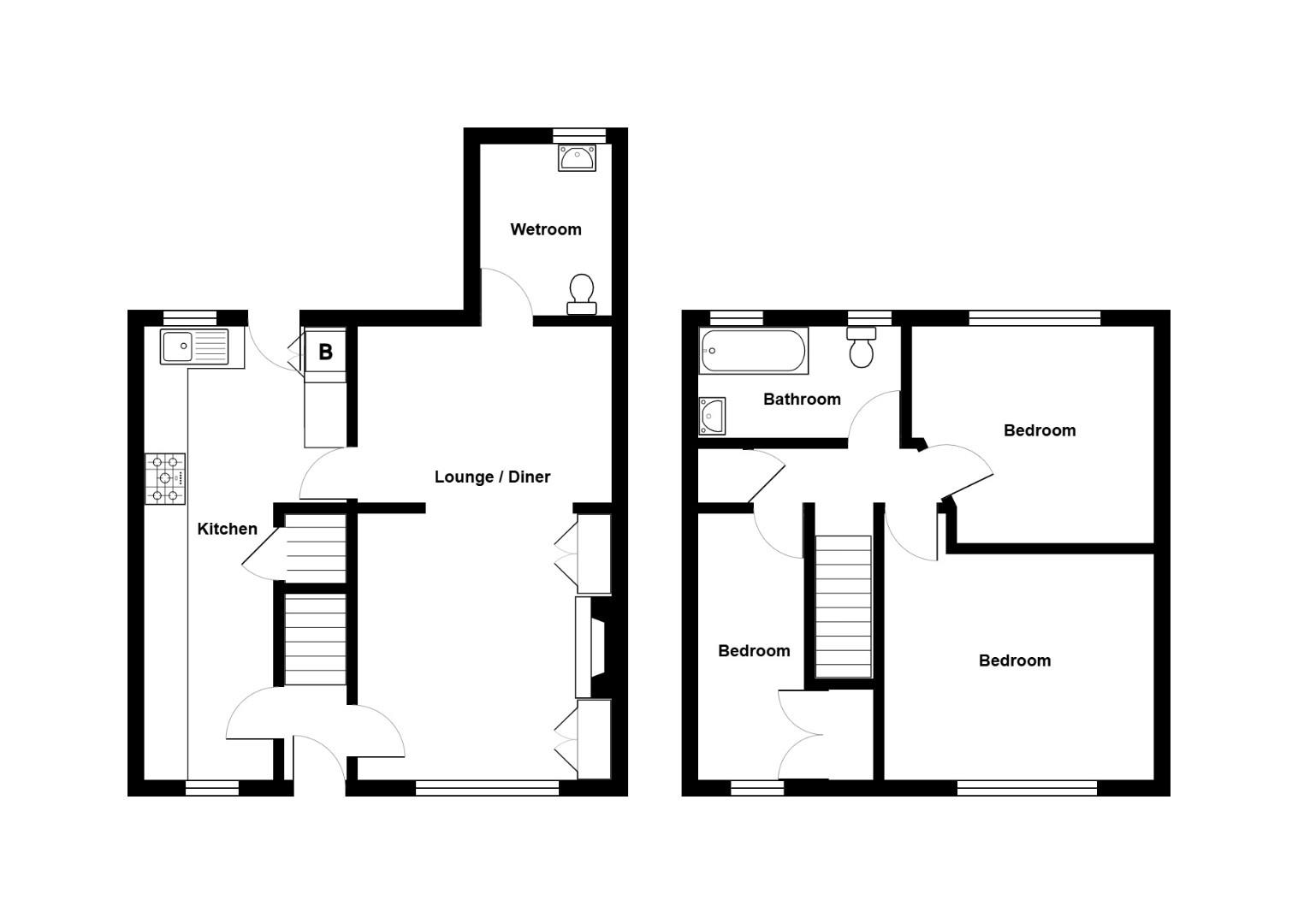
Hunters are pleased to offer for sale this impressive extended middle terrace home positioned within this popular road in Kingswood. The property is conveniently located for access onto the Avon ring road, for major commuting routes and for the Bristol cycle path, as well as being situated within easy reach of many popular schools and for amenities.The property offers spacious living accommodation which is well presented throughout. The ground floor accommodation comprises: entrance hall, lounge with feature fireplace, dining room, 21ft modern kitchen/breakfast room with built in oven & hob and wet room (extension). To the first floor can be found 3 generous size bedrooms and a family bathroom. Further benefits include double glazing and gas central heating and oak doors throughout.
Externally the property benefits from having a well tended rear garden which is laid to lawn & patio, garage and hardstanding to rear and driveway to front providing off street parking.
ENTRANCE HALLWAY
Access via a composite door, tiled floor, vertical radiator, stairs rising to first floor, oak doors leading to kitchen and lounge,LOUNGE
UPVC double glazed window to front, oak floor, double radiator, oak fitted dresser style units with shelving to alcoves, marble effect feature fireplace with electric flame effect fire inset, archway leading through to dining room.3.63m 3.53m (11'11" 11'7")
KITCHEN/BREAKFAST ROOM
Opaque UPVC double glazed windows to front and rear, L shaped room with modern range of grey high gloss wall and base units, laminate work top, stainless steel sink bowl unit with mixer tap, tiled splash backs, built in electric oven and ceramic hob, stainless steel extractor fan hood, space for washing machine and dishwasher, space for under counter fridge and freezer. built in cupboard housing electric meter. cupboard housing Worcester combination boiler, oak doors leading to dining room and hallway, opaque UPVC double glazed door leading out to rear garden.6.60m x 3.43m (21'8" x 11'3")
DINING ROOM
Oak floor, radiator, oak door leading to wet room.2.84m x 2.72m (9'4" x 8'11")
WET ROOM
Opaque UPVC double glazed window to rear, close coupled W.C, wall hung wash hand basin, walk in shower with Mira electric shower system, part tiled walls, tiled floor, water proof flooring.2.44m x 1.80m (8'0" x 5'11")
FIRST FLOOR ACCOMMODATION:
LANDING
Built in linen cupboard with shelving, oak doors leading to bedrooms and bathroom.BEDROOM ONE
UPVC double glazed window to front, coved ceiling, radiator, oak effect laminate flooring.3.91m (max) x 3.58m (12'10" (max) x 11'9")
BEDROOM TWO
UPVC double glazed window to rear, radiator.3.68m (max) x 3.10m (12'1" (max) x 10'2")
BEDROOM THREE
Loft hatch with pull down ladder (loft boarded with light), oak effect laminate flooring, built in cupboard with hanging rail and shelving.3.96m x 1.91m (max) (13'0" x 6'3" (max))
BATHROOM
Two opaque UPVC double glazed windows to rear close coupled W.C, pedestal wash hand basin, panelled bath, chrome heated towel radiator, tiled walls, LED downlighters,OUTSIDE:
REAR GARDEN
Well tended lawn, Indian Sandstone patios to front and back of garden with matching pathway, water tap, gated rear access to vehicle lane, courtesy door to garage, enclosed by boundary wall and fence.GARAGE
Good size single garage to rear of property, up and over door, power and light, hardstanding to front of garage providing parking space.4.57m,2.74m x 3.07m (15,9" x 10'1")
DRIVEWAY
To front of property providing off street parking for 1/2 cars.Mortgage calculator
Calculate Your Stamp Duty
Results
Stamp Duty To Pay:
Effective Rate:
| Tax Band | % | Taxable Sum | Tax |
|---|
New Cheltenham Road, Kingswood, Bristol. BS15 4RJ
Want to explore New Cheltenham Road, Kingswood, Bristol. BS15 4RJ further? Explore our local area guide
Struggling to find a property? Get in touch and we'll help you find your ideal property.