Roker Lane, Pudsey

Offers over £210,000 | SSTC

3 bedroom House Sold STC
or call 0113 257 6198
Standout Features

Property Description
CHAIN FREE SALE! This BEAUTIFUL terrace home, refurbished in 2025 and located in a desirable area, features a spacious reception room with CONSERVATORY, a modern kitchen diner, THREE well-appointed bedrooms, and a serene rear VIEWS from the SOUTH-FACING garden, making it ideal for first-time buyers, families, or couples seeking comfort and convenience.

Welcome to this beautifully REFURBISHED property, a place that instantly feels like home, nestled in a much sought-after location. This property is brimming with unique features and has recently undergone a brand-new refurbishment in 2025. Awaiting you is a BLANK CANVAS, ready for you to create your perfect home.

Step into the spacious LIVING ROOM, adorned with traditional coving, plush carpets, and a cast-iron fireplace. This room is a haven of comfort, exuding warmth and a welcoming ambience. It also provides access to the CONSERVATORY, a serene spot that provides additional accommodation and boasts gorgeous views to the rear.

The KITCHEN, also new as of 2025, is a food lover's dream with its tiled flooring, period mantle, and double oven. Here, you'll find great space for dining and plenty of storage, turning meal preparation into a joyous event.

The house offers THREE inviting bedrooms. The first, a large double, can be the main bedroom situated on the first floor. It's an oasis of tranquillity, with fitted wardrobes and benefits from the amazing VIEWS of greenery to the rear. The second bedroom, also on the first floor, is a well-sized single room, making it a fantastic HOME OFFICE. The third bedroom is a fantastic size room on the top floor and can serve as the main if preferred, with additional eaves storage and two Velux windows.

Relax and unwind in the contemporary tiled BATHROOM suite. It's a spa-like retreat, complete with a heated towel rail and a white three-piece suite.

This property is PERFECTLY suited for first-time buyers, couples and families. With close proximity to public transport links, local amenities, and green spaces, it's a place where convenience meets comfort. Don't miss this FANTASTIC opportunity to make this house your home and book a viewing today!

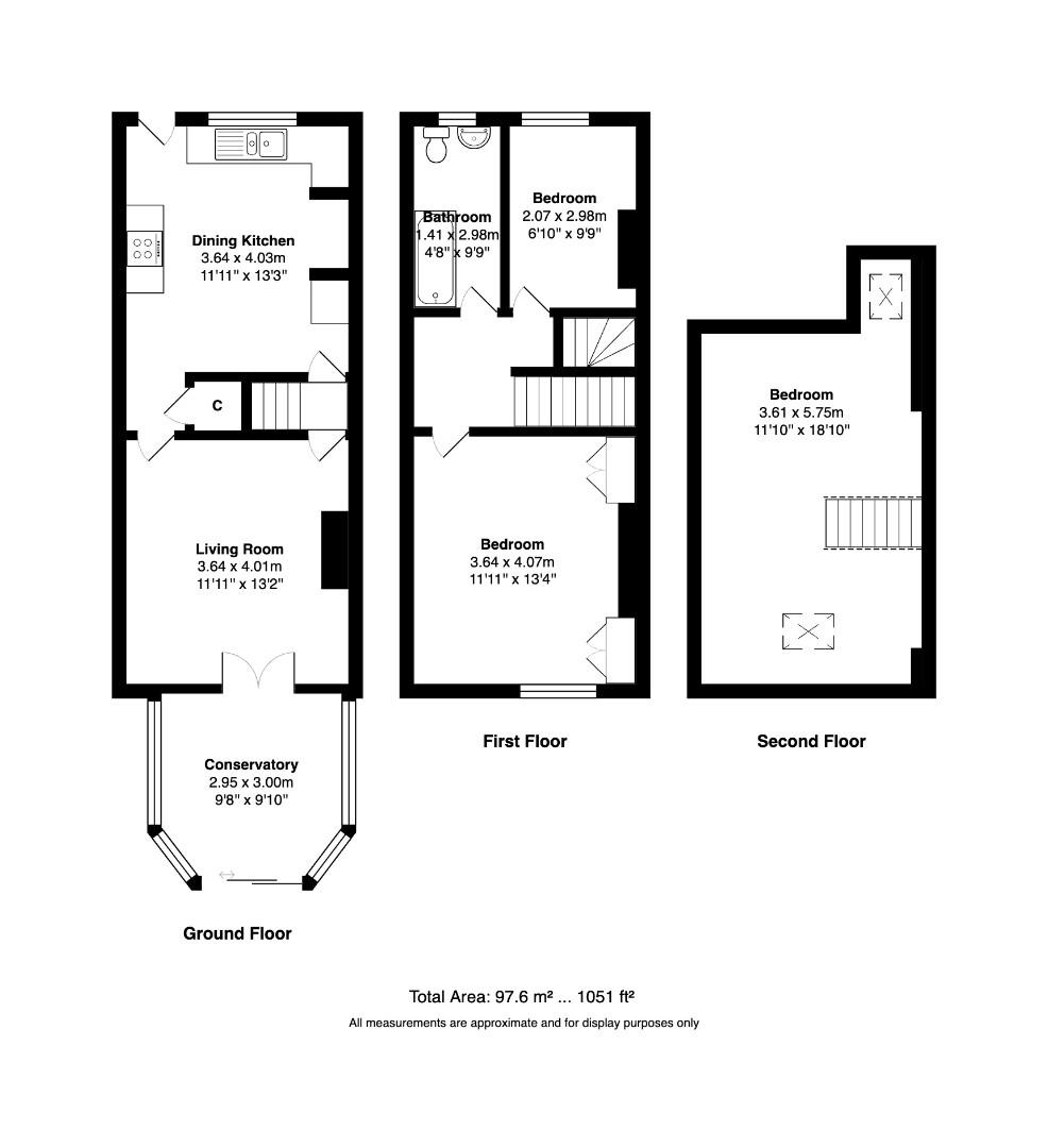
KITCHEN DINER (3.64 x 4.03m)

LIVING ROOM (3.64 x 4.01m)

CONSERVATORY (2.95 x 3.00m)

LANDING

BEDROOM ONE (3.64 x 4.07m)

BEDROOM TWO (2.07 x 2.98m)

BATHROOM (1.41 x 2.98m)

BEDROOM THREE (3.61 x 5.75m)


Additional Information
Tenure: Freehold
Council Tax Band: A

Rooms
KITCHEN DINER

3.64 x 4.03m (11'11" x 13'2")
LIVING ROOM

3.64 x 4.01m (11'11" x 13'1")
CONSERVATORY

2.95 x 3.00m (9'8" x 9'10")
LANDING

BEDROOM ONE

3.64 x 4.07m (11'11" x 13'4")
BEDROOM TWO

2.07 x 2.98m (6'9" x 9'9")
BATHROOM

1.41 x 2.98m (4'7" x 9'9")
BEDROOM THREE

3.61 x 5.75m (11'10" x 18'10")

Mortgage calculator

Calculate Your Stamp Duty
£
Results
Stamp Duty To Pay:
Effective Rate:
Tax Band % Taxable Sum Tax

Roker Lane, Pudsey

Want to explore Roker Lane, Pudsey further? Explore our local area guide

Struggling to find a property? Get in touch and we'll help you find your ideal property.