3 bedroom House Sold STC

£265,000 | SSTC

3 bedroom House Sold STC
Total Size: 968 SQ FT
or call 01454 313575
Standout Features

Property Description
This fine sized three-bedroom house presents an excellent opportunity for families and individuals alike. Upon entering, you are welcomed by an entrance hall. The attractive lounge/diner is perfect for both relaxation and entertaining, providing ample space for family gatherings or quiet evenings in.
The property boasts a large main bedroom, offering a comfortable retreat at the end of the day. There is a kitchen leading to the rear garden and a modern bathroom adding a touch of luxury to your daily routine. With gas central heating and double glazing throughout, you can enjoy a warm and energy-efficient living environment all year round. Additionally, the home is conveniently located within walking distance to Kings Gate Park and the Yate Shopping Centre, ensuring that all your local amenities are easily accessible. With no onward chain, this property is ready for you to move in and make it your own.

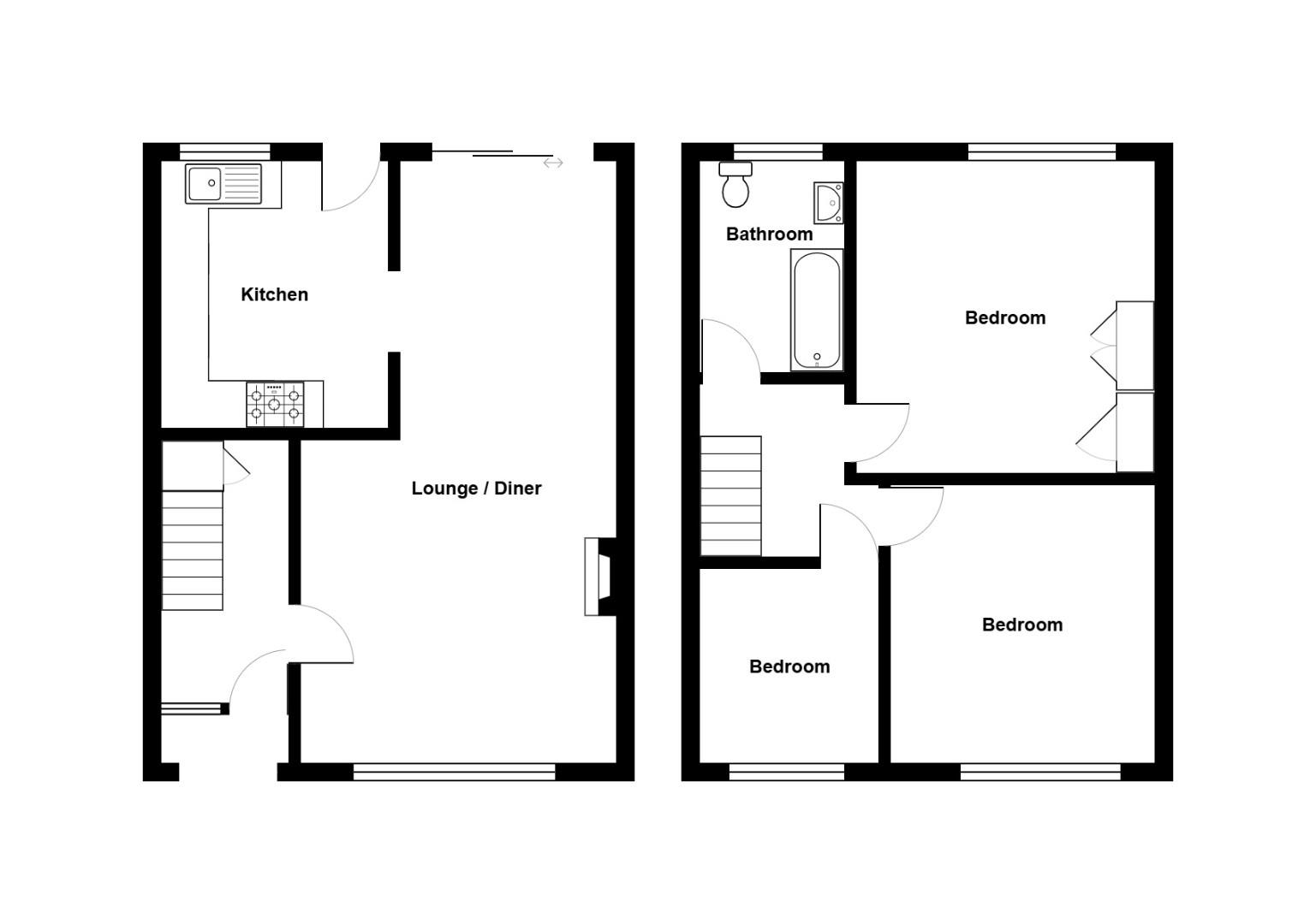
ENTRANCE HALL

Entrance door with double glazed inset, double glazed screen, stairs to first floor, radiator.

LOUNGE/DINER (7.72m x 3.96m max - 3.61m - 2.82m)

Double glazed window to front, laminate flooring, electric fire.

KITCHEN (3.10m x 2.87m)

Double glazed window to rear, range of wall and base units, built in oven and hob, single drainer sink unit work surfaces, space for washing machine and space for fridge freezer, vinyl flooring, double glazed door to rear garden.

LANDING

Access to loft space.

BEDROOM ONE (4.06m x 4.06m)

Double glazed window to rear, built in double wardrobe, cupboard housing gas boiler.

BEDROOM TWO (3.58m x 3.43m)

Double glazed window to front, laminate flooring, radiator.

BEDROOM THREE (2.41m x 2.31m)

Double glazed window to front, laminate flooring, radiator.

BATHROOM

Double glazed window to rear, bath with overhead shower, vanity wash hand basin, W/C, part tiled.

FRONT GARDEN

Laid to lawn

REAR GARDEN

Lawn, patio, garden shed and garden gate.

AGENTS NOTE

“Estate agents operating in the UK are required to conduct Anti-Money Laundering (AML) checks in compliance with the regulations set forth by HM Revenue and Customs (HMRC) for all property transactions. It is mandatory for both buyers and sellers to successfully complete these checks before any property transaction can proceed. Our estate agency uses Coadjute’s Assured Compliance service to facilitate the AML checks. A fee will be charged for each individual AML check conducted’’


Additional Information
Tenure: Freehold
Ground Rent: £10 per year
Council Tax Band: B

Rooms
ENTRANCE HALL
Entrance door with double glazed inset, double glazed screen, stairs to first floor, radiator.
LOUNGE/DINER
Double glazed window to front, laminate flooring, electric fire.
7.72m x 3.96m max - 3.61m - 2.82m (25'4" x 13' max
KITCHEN
Double glazed window to rear, range of wall and base units, built in oven and hob, single drainer sink unit work surfaces, space for washing machine and space for fridge freezer, vinyl flooring, double glazed door to rear garden.
3.10m x 2.87m (10'2" x 9'5")
LANDING
Access to loft space.
BEDROOM ONE
Double glazed window to rear, built in double wardrobe, cupboard housing gas boiler.
4.06m x 4.06m (13'4" x 13'4")
BEDROOM TWO
Double glazed window to front, laminate flooring, radiator.
3.58m x 3.43m (11'9" x 11'3")
BEDROOM THREE
Double glazed window to front, laminate flooring, radiator.
2.41m x 2.31m (7'11" x 7'7")
BATHROOM
Double glazed window to rear, bath with overhead shower, vanity wash hand basin, W/C, part tiled.
FRONT GARDEN
Laid to lawn
REAR GARDEN
Lawn, patio, garden shed and garden gate.
AGENTS NOTE
“Estate agents operating in the UK are required to conduct Anti-Money Laundering (AML) checks in compliance with the regulations set forth by HM Revenue and Customs (HMRC) for all property transactions. It is mandatory for both buyers and sellers to successfully complete these checks before any property transaction can proceed. Our estate agency uses Coadjute’s Assured Compliance service to facilitate the AML checks. A fee will be charged for each individual AML check conducted’’

Mortgage calculator

Calculate Your Stamp Duty
£
Results
Stamp Duty To Pay:
Effective Rate:
Tax Band % Taxable Sum Tax

Sunningdale, Yate, Bristol

Want to explore Sunningdale, Yate, Bristol further? Explore our local area guide

Struggling to find a property? Get in touch and we'll help you find your ideal property.