3 bedroom House Sold STC

Guide Price £290,000 | SSTC

3 bedroom House Sold STC
Total Size: 900 SQ FT
or call 01347 823535
Standout Features

Property Description
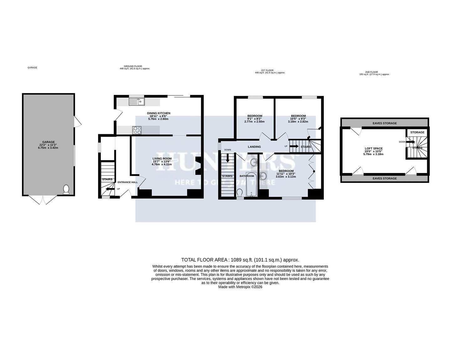
Situated in the sought-after village of Sheriff Hutton, this charming three-bedroom end terrace home offers flexible and well-proportioned accommodation, ideal for family living. The ground floor comprises a welcoming living room and a dining kitchen, while the first floor features three bedrooms and a family bathroom. A loft room is located on the second floor. Externally, the property benefits from a low-maintenance front garden, a driveway offering off-street parking, and access to a generously sized detached single garage. To the rear, there is a well-established garden. EPC Rating: G, Council Tax Band: B

Sheriff Hutton

To the east of the village stands the 900-year-old Parish Church of St Helen and the Holy Cross. In the village center, you'll find the bustling Post Office and two welcoming pubs. To the west are the Primary School and Methodist Chapel, while to the south lies the Village Hall. Dominating the landscape are the impressive ruins of Neville Castle, built in the 14th century.

Property Description

Upon entering the property, you are welcomed into an entrance hallway that provides access to the living room, an under-stairs area currently used for storage (with potential to be converted into a downstairs cloakroom), and the staircase to the first-floor accommodation.
The living room is located at the front of the property and features a window overlooking the front elevation. This room benefits from wooden flooring and a wood-burning stove, creating a cosy and inviting atmosphere. From the living room, you can access the dining area, which forms part of the open-plan dining kitchen.
The dining kitchen is situated at the rear of the property and enjoys views over the garden through a glazed sliding door and an additional rear-facing window. There is also a side external door from the kitchen for convenient outdoor access. The kitchen is fitted with a range of wall and base units, ample worktop space, a sink with mixer tap, and space with plumbing for appliances.

On the first floor, there are three bedrooms. The main bedroom, positioned at the front of the house, benefits from built-in wardrobes. The remaining two bedrooms are located at the rear. Completing the first-floor accommodation is the family bathroom, which includes a bath with an overhead shower and glass screen, a hand wash basin set into a vanity unit, a WC, and a front-facing window.

A staircase from the first-floor landing leads to the second floor, where you’ll find a spacious loft space with access to eaves storage and two skylight windows, offering plenty of natural light.

Externally, the front of the property features a gravelled garden with low-maintenance shrubs and a driveway that provides off-street parking for multiple vehicles and leads to a detached garage. The detached garage is fitted with timber double doors at the front and a side personnel door providing access to the garden. It also includes power and lighting, a toilet, and a window to the side elevation.

The rear garden is mature and well-maintained, featuring a lawn, various flower beds, borders, and an array of trees and shrubs. A dedicated seating area offers the perfect spot to relax and enjoy the surroundings.

Disclaimer.

These particulars are intended to give a fair and reliable description of the property but no responsibility for any inaccuracy or error can be accepted and do not constitute an offer or contract. We have not tested any services or appliances (including central heating if fitted) referred to in these particulars and the purchasers are advised to satisfy themselves as to the working order and condition. If a property is unoccupied at any time there may be reconnection charges for any switched off/disconnected or drained services or appliances - All measurements are approximate. If you are thinking of selling your home or just curious to discover the value of your property, Hunters would be pleased to provide free, no obligation sales and marketing advice. Even if your home is outside the area covered by our local offices we can arrange a Market Appraisal through our national network of Hunters estate agents.

Anti Money Laundering Regulations

By law, we are required to conduct anti-money laundering checks on all potential buyers and sellers, and we take this responsibility very seriously. In line with HMRC guidelines, our trusted partner, Coadjute, will securely manage these checks on our behalf. Once an offer is accepted (subject to contract), Coadjute will send a secure link for you to complete the biometric checks electronically. A non-refundable fee of £45 + VAT per person will apply for these checks, and Coadjute will handle the payment for this service. These anti-money laundering checks must be completed before we can send the memorandum of sale to the solicitors to confirm the sale. Please contact the office if you have any questions in relation to this.


Additional Information
Tenure: Freehold
Council Tax Band: B

Rooms
Sheriff Hutton
To the east of the village stands the 900-year-old Parish Church of St Helen and the Holy Cross. In the village center, you'll find the bustling Post Office and two welcoming pubs. To the west are the Primary School and Methodist Chapel, while to the south lies the Village Hall. Dominating the landscape are the impressive ruins of Neville Castle, built in the 14th century.
Property Description
Upon entering the property, you are welcomed into an entrance hallway that provides access to the living room, an under-stairs area currently used for storage (with potential to be converted into a downstairs cloakroom), and the staircase to the first-floor accommodation.
The living room is located at the front of the property and features a window overlooking the front elevation. This room benefits from wooden flooring and a wood-burning stove, creating a cosy and inviting atmosphere. From the living room, you can access the dining area, which forms part of the open-plan dining kitchen.
The dining kitchen is situated at the rear of the property and enjoys views over the garden through a glazed sliding door and an additional rear-facing window. There is also a side external door from the kitchen for convenient outdoor access. The kitchen is fitted with a range of wall and base units, ample worktop space, a sink with mixer tap, and space with plumbing for appliances.

On the first floor, there are three bedrooms. The main bedroom, positioned at the front of the house, benefits from built-in wardrobes. The remaining two bedrooms are located at the rear. Completing the first-floor accommodation is the family bathroom, which includes a bath with an overhead shower and glass screen, a hand wash basin set into a vanity unit, a WC, and a front-facing window.

A staircase from the first-floor landing leads to the second floor, where you’ll find a spacious loft space with access to eaves storage and two skylight windows, offering plenty of natural light.

Externally, the front of the property features a gravelled garden with low-maintenance shrubs and a driveway that provides off-street parking for multiple vehicles and leads to a detached garage. The detached garage is fitted with timber double doors at the front and a side personnel door providing access to the garden. It also includes power and lighting, a toilet, and a window to the side elevation.

The rear garden is mature and well-maintained, featuring a lawn, various flower beds, borders, and an array of trees and shrubs. A dedicated seating area offers the perfect spot to relax and enjoy the surroundings.
Disclaimer.
These particulars are intended to give a fair and reliable description of the property but no responsibility for any inaccuracy or error can be accepted and do not constitute an offer or contract. We have not tested any services or appliances (including central heating if fitted) referred to in these particulars and the purchasers are advised to satisfy themselves as to the working order and condition. If a property is unoccupied at any time there may be reconnection charges for any switched off/disconnected or drained services or appliances - All measurements are approximate. If you are thinking of selling your home or just curious to discover the value of your property, Hunters would be pleased to provide free, no obligation sales and marketing advice. Even if your home is outside the area covered by our local offices we can arrange a Market Appraisal through our national network of Hunters estate agents.
Anti Money Laundering Regulations
By law, we are required to conduct anti-money laundering checks on all potential buyers and sellers, and we take this responsibility very seriously. In line with HMRC guidelines, our trusted partner, Coadjute, will securely manage these checks on our behalf. Once an offer is accepted (subject to contract), Coadjute will send a secure link for you to complete the biometric checks electronically. A non-refundable fee of £45 + VAT per person will apply for these checks, and Coadjute will handle the payment for this service. These anti-money laundering checks must be completed before we can send the memorandum of sale to the solicitors to confirm the sale. Please contact the office if you have any questions in relation to this.

Utilities
Electricity:
Mains Supply
Sewerage:
Mains Supply

Mortgage calculator

Calculate Your Stamp Duty
£
Results
Stamp Duty To Pay:
Effective Rate:
Tax Band % Taxable Sum Tax

The Croft, Sheriff Hutton, York, YO60 6SQ

Want to explore The Croft, Sheriff Hutton, York, YO60 6SQ further? Explore our local area guide

Struggling to find a property? Get in touch and we'll help you find your ideal property.