Standout Features

Property Description
A beautifully curated three-bedroom home blending contemporary comfort with timeless character, offering ready-to-move-into accommodation and a chain free sale. Thoughtfully styled interiors, a log burner, modern classic kitchen and generous bedroom proportions combine to create a warm, elegant home full of individual charm, set adjacent to a quiet green in a popular Pudsey location.

For sale is this beautifully curated three-bedroom home, blending contemporary comfort with timeless character to create a warm and elegant living environment full of individuality. Offered to the market chain free and ready to move into, the property enjoys a pleasant position set back from the road and adjacent to a quiet green, giving a lovely sense of openness while remaining close to local amenities, schools and transport links.

Inside, a dual-aspect reception room forms an inviting through-space with a garden outlook and ample room for both seating and dining. A log burner provides a cosy focal point, enhancing the home’s characterful yet refined atmosphere. Full of personality and warmth, the interiors balance modern living with classic influences, creating a space that feels distinctive yet effortlessly tasteful.

The beautifully designed kitchen match's that modern classic feel, featuring shaker-style units, wooden worktops and a breakfast bar peninsula. A range-style oven, integrated dishwasher, washing machine and fridge freezer are all included, along with a practical utility space, making the layout both stylish and functional for everyday living.

Upstairs are three well-proportioned bedrooms. The rear double bedroom is of impressive size, offering fitted wardrobes and a pleasant garden outlook. The second double bedroom is even larger and could easily serve as the principal room if preferred, also benefitting from fitted wardrobes and excellent versatility. The third bedroom is a flexible single room, ideal as a home office, dressing space or child’s room. The bathroom is very modern and tastefully finished, featuring a striking tiled suite, separate bath, walk-in rain shower, floating vanity sink and heated towel rail. The loft is boarded with power and lighting, currently providing useful additional storage but poses potential for conversion subject to planning permission (STPP).

Outside, the rear garden is private and enclosed, featuring a lawned area with wooden pergola, rockery and composite decking seating area.

Pudsey continues to be a popular location thanks to its selection of shops, cafés and everyday amenities, along with nearby parks and green spaces. The ever-popular Owlcotes Shopping Centre, featuring M&S, Asda and B&M, is approximately only a 0.6 mile walk away, adding further convenience for day-to-day living. Local schools are within easy reach, making the area appealing to families, while regular public transport links provide convenient connections to surrounding areas and the city centre.

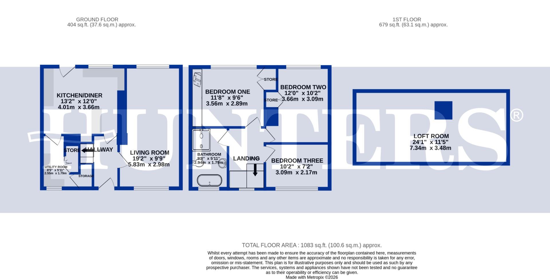
KITCHEN DINER (4.01 x 3.66m)

UTILITY ROOM (2.55 x 1.79m)

LIVING ROOM (5.83 x 2.98m)

BEDROOM ONE (3.56 x 2.89m)

BEDROOM TWO (3.66 x 3.09m)

BEDROOM THREE (3.09 x 2.17m)

BATHROOM (2.94 x 1.79m)


Additional Information
Tenure: Freehold
Council Tax Band: A

Rooms
KITCHEN DINER

4.01 x 3.66m (13'1" x 12'0")
UTILITY ROOM

2.55 x 1.79m (8'4" x 5'10")
LIVING ROOM

5.83 x 2.98m (19'1" x 9'9")
BEDROOM ONE

3.56 x 2.89m (11'8" x 9'5")
BEDROOM TWO

3.66 x 3.09m (12'0" x 10'1")
BEDROOM THREE

3.09 x 2.17m (10'1" x 7'1")
BATHROOM

2.94 x 1.79m (9'7" x 5'10")

Mortgage calculator

Calculate Your Stamp Duty
£
Results
Stamp Duty To Pay:
Effective Rate:
Tax Band % Taxable Sum Tax

Westdale Drive, Pudsey

Want to explore Westdale Drive, Pudsey further? Explore our local area guide

Struggling to find a property? Get in touch and we'll help you find your ideal property.