4 bedroom House For Sale

£489,995 | Available

4 bedroom House For Sale
or call 0117 956 1234
Standout Features

Property Description
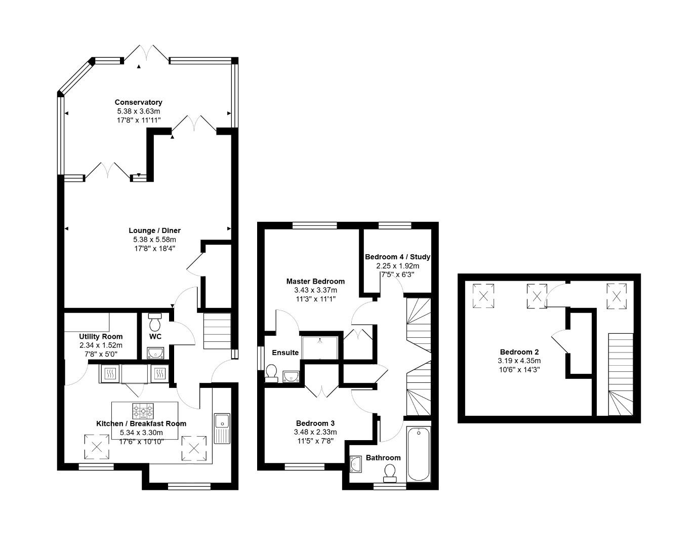
A beautifully presented detached family home located within a small cul-de-sac development on the edge of Bromley Heath. Spacious accommodation displayed over 3 floors, comprising: open plan living room, kitchen/diner with Island, cloakroom, utility and conservatory, 4 bedrooms, master en-suite and family bathroom. Benefiting from having a double driveway & low maintenance rear garden.

DESCRIPTION

An impressive four bed detached family home situated in a lovely cul-de-sac at the end of the ever popular Bromley Heath Road. The property offers spacious living accommodation displayed over three floors. The ground floor accommodation comprises: entrance hallway, cloakroom, modern fitted kitchen/diner with integrated appliances and an Island unit which incorporates a breakfast bar, utility room, open plan living room with two sets of French doors which lead out to a bright and airy conservatory which spans the entire width of the house.. To the first floor can be found 2 double bedrooms, a single bedroom/study and a modern family bathroom with over bath shower system.
A turning staircase rises to the second floor which has another good size double bedroom with fitted wardrobe and drawers.
Externally the property benefits from having a low maintenance garden rear garden laid to artificial lawn and seating area to patio and decking, and a brick paved driveway to front providing off street parking for 2 cars.
There is off road parking for two vehicles at the front.
The property offers an enviable position just on the edge of the city limits but adjacent to beautiful countryside. The M4, M5 and M32 are but a short distance away with Parkway Railway Station less than 3 miles distant with direct line to London Paddington.

ENTRANCE HALLWAY

Access from side of property via an opaque UPVC double glazed door, coved ceiling, LVT oak effect flooring, dado rail, radiator, alarm control panel, stairs rising to first floor, doors leading to: cloakroom, kitchen/diner and living room.

CLOAKROOM

Radiator, wash hand basin, close coupled W.C, tiled splash backs, oak effect LVT flooring, extractor fan.

KITCHEN/DINER (5.33m x 3.30m)

Two Velux windows to front, double radiator, range of modern white high gloss wall and base units, granite effect laminate work top, matching Island unit incorporating a breakfast bar, 1 1/2 composite sink bowl unit with mixer tap, built in stainless steel AEG twin ovens and 5 ring gas hob, stainless steel ceiling hung extractor fan, integrated fridge freezer and additional integrated fridge and freezer, built in microwave, integrated dishwasher, tiled floor, LED downlighters, under unit lighting, door leading through to utility.

UTILITY (2.34m x 1.52m)

LED downlighters, space and plumbing for washing machine, extractor fan.

LIVING ROOM (5.38m (max) x 5.59m (max))

LED downlighters, 2 double radiators, under stairs storage cupboard, 2 x UPVC double glazed French doors leading through to conservatory.

CONSERVATORY (5.38m x 3.63m (max))

Large L shaped conservatory with double glazed glass roof, tiled floor, 2 x ceiling fan lights, under floor heating, UPVC double glazed French doors leading out to garden.

FIRST FLOOR ACCOMMODATION:

LANDING

Opaque UPVC double glazed windnow to side, spindled balustrade, radiator, built in airing cupboard, doors leading to bedrooms and bathroom.

BEDROOM ONE (3.43m x 3.38m)

UPVC double glazed window to rear, radiator, oak effect laminate flooring, TV point, built in double wardrobe, door to en-suite.

EN-SUITE

Opaque UPVC double glazed window to side, close coupled W.C, pedestal wash hand basin, shower enclosure with folding glass door, hosing a mains controlled shower system, chrome heated towel radiator, tiled floor and walls, extractor fan, shaver point.

BEDROOM THREE (3.48m x 2.34m)

UPVC double glazed window to rear, radiator.

BATHROOM

Opaque UPVC double glazed window to front, with wood shutters, panelled bath with glass shower screen, mains controlled shower over, close coupled W.C, pedestal wash hand basin, tiled walls and floor, chrome heated towel radiator, shaver point, extractor fan.

SECOND FLOOR LANDING

Velux window ro rear, large built in/walk in wardrobe with matching 3 drawer unit, door leading through to bedroom 2.

BEDROOM FOUR/STUDY (2.26m x 1.91m)

UPVC double glazed window to rear, radiator.

SECOND FLOOR LANDING

Velux window to rear, door leading to bedroom 2.

BEDROOM TWO (3.20m x 4.34m)

Two Velux windows to rear, large built in/walk in wardrobe with matching 3 drawer unit, radiator.

OUTSIDE:

REAR GARDEN

A good size low maintenance garden, full width patio with matching pathway leading to an artificial lawn, area to back of garden laid to decking, 2 outside lights to back of conservatory, side gated access, enclosed by boundary fencing.

FRONT OF PROPERTY

Brick paved driveway providing off street parking for 2 vehicles, water tap, paved pathway to entrance.

ANTI-MONEY LAUNDERING

Estate Agents operating in the UK are required to conduct Anti-Money Laundering (AML) checks in compliance with the regulations set forth by HM Revenue and Customs (HMRC) for all property transactions. It is mandatory for both buyers and sellers to successfully complete these checks before any property transaction can proceed. Our estate agency uses Coadjute’s Assured Compliance service to facilitate the AML checks. A fee will be charged for each individual AML check conducted.


Additional Information
Tenure: Freehold
Council Tax Band: E

Rooms
DESCRIPTION
An impressive four bed detached family home situated in a lovely cul-de-sac at the end of the ever popular Bromley Heath Road. The property offers spacious living accommodation displayed over three floors. The ground floor accommodation comprises: entrance hallway, cloakroom, modern fitted kitchen/diner with integrated appliances and an Island unit which incorporates a breakfast bar, utility room, open plan living room with two sets of French doors which lead out to a bright and airy conservatory which spans the entire width of the house.. To the first floor can be found 2 double bedrooms, a single bedroom/study and a modern family bathroom with over bath shower system.
A turning staircase rises to the second floor which has another good size double bedroom with fitted wardrobe and drawers.
Externally the property benefits from having a low maintenance garden rear garden laid to artificial lawn and seating area to patio and decking, and a brick paved driveway to front providing off street parking for 2 cars.
There is off road parking for two vehicles at the front.
The property offers an enviable position just on the edge of the city limits but adjacent to beautiful countryside. The M4, M5 and M32 are but a short distance away with Parkway Railway Station less than 3 miles distant with direct line to London Paddington.
ENTRANCE HALLWAY
Access from side of property via an opaque UPVC double glazed door, coved ceiling, LVT oak effect flooring, dado rail, radiator, alarm control panel, stairs rising to first floor, doors leading to: cloakroom, kitchen/diner and living room.
CLOAKROOM
Radiator, wash hand basin, close coupled W.C, tiled splash backs, oak effect LVT flooring, extractor fan.
KITCHEN/DINER
Two Velux windows to front, double radiator, range of modern white high gloss wall and base units, granite effect laminate work top, matching Island unit incorporating a breakfast bar, 1 1/2 composite sink bowl unit with mixer tap, built in stainless steel AEG twin ovens and 5 ring gas hob, stainless steel ceiling hung extractor fan, integrated fridge freezer and additional integrated fridge and freezer, built in microwave, integrated dishwasher, tiled floor, LED downlighters, under unit lighting, door leading through to utility.
5.33m x 3.30m (17'6" x 10'10")
UTILITY
LED downlighters, space and plumbing for washing machine, extractor fan.
2.34m x 1.52m (7'8" x 5'0")
LIVING ROOM
LED downlighters, 2 double radiators, under stairs storage cupboard, 2 x UPVC double glazed French doors leading through to conservatory.
5.38m (max) x 5.59m (max) (17'8" (max) x 18'4" (ma
CONSERVATORY
Large L shaped conservatory with double glazed glass roof, tiled floor, 2 x ceiling fan lights, under floor heating, UPVC double glazed French doors leading out to garden.
5.38m x 3.63m (max) (17'8" x 11'11" (max))
FIRST FLOOR ACCOMMODATION:

LANDING
Opaque UPVC double glazed windnow to side, spindled balustrade, radiator, built in airing cupboard, doors leading to bedrooms and bathroom.
BEDROOM ONE
UPVC double glazed window to rear, radiator, oak effect laminate flooring, TV point, built in double wardrobe, door to en-suite.
3.43m x 3.38m (11'3" x 11'1")
EN-SUITE
Opaque UPVC double glazed window to side, close coupled W.C, pedestal wash hand basin, shower enclosure with folding glass door, hosing a mains controlled shower system, chrome heated towel radiator, tiled floor and walls, extractor fan, shaver point.
BEDROOM THREE
UPVC double glazed window to rear, radiator.
3.48m x 2.34m (11'5" x 7'8")
BATHROOM
Opaque UPVC double glazed window to front, with wood shutters, panelled bath with glass shower screen, mains controlled shower over, close coupled W.C, pedestal wash hand basin, tiled walls and floor, chrome heated towel radiator, shaver point, extractor fan.
SECOND FLOOR LANDING
Velux window ro rear, large built in/walk in wardrobe with matching 3 drawer unit, door leading through to bedroom 2.
BEDROOM FOUR/STUDY
UPVC double glazed window to rear, radiator.
2.26m x 1.91m (7'5" x 6'3")
SECOND FLOOR LANDING
Velux window to rear, door leading to bedroom 2.
BEDROOM TWO
Two Velux windows to rear, large built in/walk in wardrobe with matching 3 drawer unit, radiator.
3.20m x 4.34m (10'6" x 14'3")
OUTSIDE:

REAR GARDEN
A good size low maintenance garden, full width patio with matching pathway leading to an artificial lawn, area to back of garden laid to decking, 2 outside lights to back of conservatory, side gated access, enclosed by boundary fencing.
FRONT OF PROPERTY
Brick paved driveway providing off street parking for 2 vehicles, water tap, paved pathway to entrance.
ANTI-MONEY LAUNDERING
Estate Agents operating in the UK are required to conduct Anti-Money Laundering (AML) checks in compliance with the regulations set forth by HM Revenue and Customs (HMRC) for all property transactions. It is mandatory for both buyers and sellers to successfully complete these checks before any property transaction can proceed. Our estate agency uses Coadjute’s Assured Compliance service to facilitate the AML checks. A fee will be charged for each individual AML check conducted.

Mortgage calculator

Calculate Your Stamp Duty
£
Results
Stamp Duty To Pay:
Effective Rate:
Tax Band % Taxable Sum Tax

Bromley Heath Road, Downend, Bristol, BS16 6JB

Want to explore Bromley Heath Road, Downend, Bristol, BS16 6JB further? Explore our local area guide

Struggling to find a property? Get in touch and we'll help you find your ideal property.