4 bedroom House For Sale

Guide Price £116,000 | Sold

4 bedroom House For Sale
or call 01924 663222
Standout Features

Property Description
FOR SALE BY MODERN METHOD OF AUCTION ( T & Cs APPLY) - STARTING BID OF £116,000 PLUS RESERVATION FEE

Offered for sale is this individual four bedroom semi detached family home with a range of exposed beams and roof trusses. The property is highly deceptive and must be viewed internally to appreciate fully the size and layout. The main benefits of this property are the four good sized bedrooms, all big enough for a double beds. The property is in need of complete refurbishment and would make an ideal project for a property developer or first time buyer looking to for their first property renovation project to suit their own timescales and individual budgets.

This property is for sale by Modern Method of Auction allowing the buyer and seller to complete within a 56 Day Reservation Period. Interested parties’ personal data will be shared with the Auctioneer (iamsold Ltd). If considering a mortgage, inspect and consider the property carefully with your lender before bidding. A Buyer Information Pack is provided, which you must view before bidding. The buyer will pay £300 inc VAT for this pack. The buyer signs a Reservation Agreement and makes payment of a Non-Refundable Reservation Fee of 4.5% of the purchase price inc VAT, subject to a minimum of £6,600 inc VAT. This Fee is paid to reserve the property to the buyer during the Reservation Period and is paid in addition to the purchase price. The Fee is considered within calculations for stamp duty. Services may be recommended by the Agent/Auctioneer in which they will receive payment from the service provider if the
service is taken. Payment varies but will be no more than £450. These services are optional.

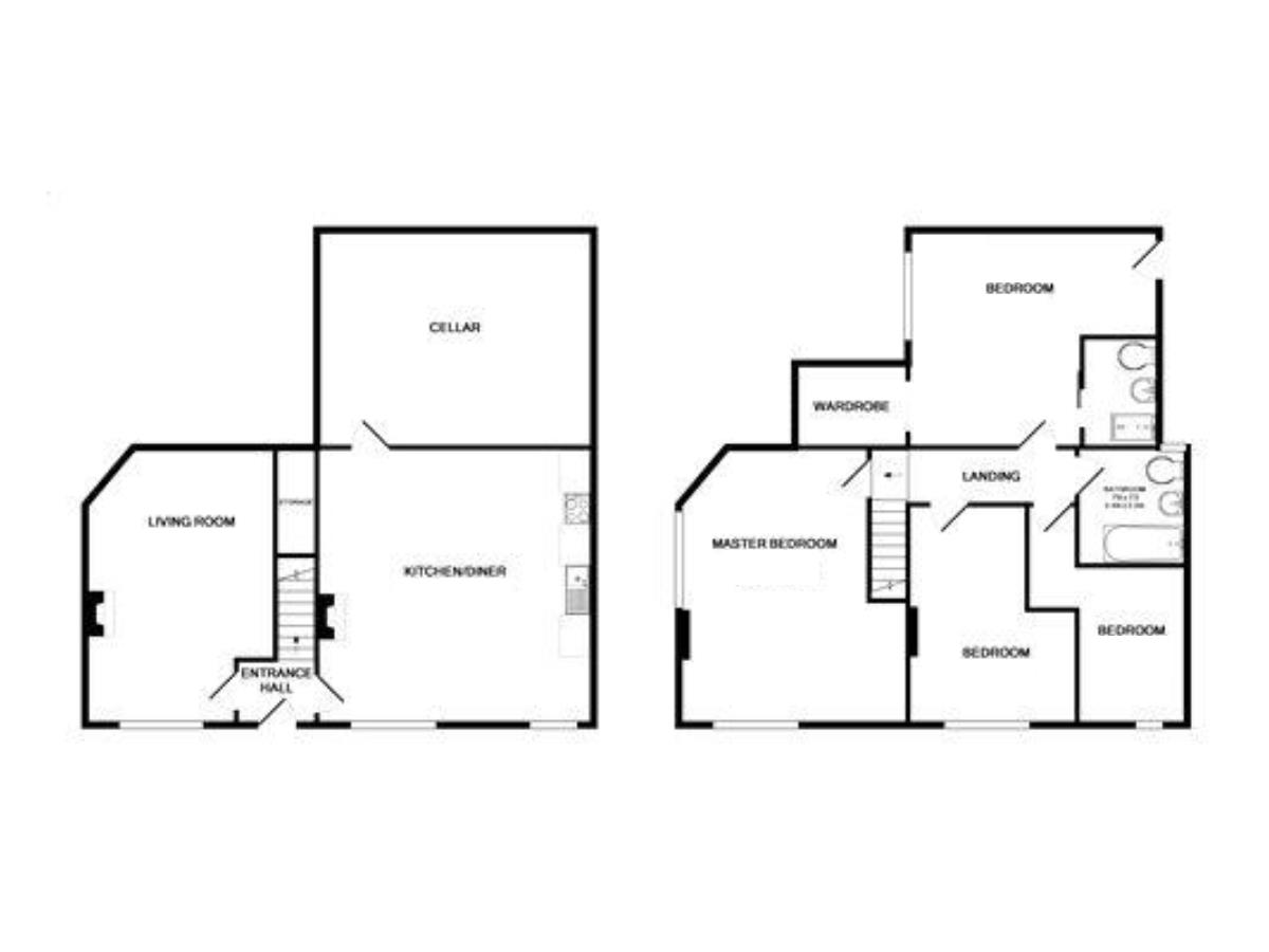
ENTRANCE

Access to first floor and doors to lounge and dining kitchen.

LOUNGE (5.29m x 3.37m)

Double glazed window to front, cast gas range, radiator with feature beams and under stairs storage.

DINING KITCHEN (5.69m x 5.48m)

Fitted with a range of base and eye level units with round edged worktops, 1½ bowl sink with single drainer and mixer tap with tiled splashbacks, plumbing for automatic washing machine, space for fridge, gas point for cooker, double glazed windows to front, radiator with exposed beams, open plan to:

STORE/CELLAR

Ample space for storage.

HALLWAY

Access to four bedrooms and family bathroom

BEDROOM 1 (5.50m x 3.51m)

Double glazed window to side, double glazed window, radiators with exposed beams.

BEDROOM 2 (4.48m x 3.37m)

Double glazed window to front, radiator

BEDROOM 3 (3.26m x 2.08m)

Double glazed window and radiator

BEDROOM 4 (4.94m x 4.94m)

Double glazed window and radiator, PVCu door to rear entrance, access to walk in storage and

EN SUITE

A walk in double shower enclosure with low flush WC and pedestal wash hand basin.

BATHROOM

Fitted with three piece suite comprising panelled bath, pedestal wash hand basin and low-level WC, ceramic tiled walls, tiled flooring.

OUTSIDE

Enclosed paved area to the front, with on street parking to the front.

AUCTION INFORMATION

This property is for sale by Modern Method of Auction allowing the buyer and seller to complete within a 56 Day Reservation Period. Interested parties’ personal data will be shared with the Auctioneer (iamsold Ltd). If considering a mortgage, inspect and consider the property carefully with your lender before bidding. A Buyer Information Pack is provided, which you must view before bidding. The buyer will pay £300 inc VAT for this pack. The buyer signs a Reservation Agreement and makes payment of a Non-Refundable Reservation Fee of 4.5% of the purchase price inc VAT, subject to a minimum of £6,600 inc VAT. This Fee is paid to reserve the property to the buyer during the Reservation Period and is paid in addition to the purchase price. The Fee is considered within calculations for stamp duty. Services may be recommended by the Agent/Auctioneer in which they will receive payment from the service provider if the
service is taken. Payment varies but will be no more than £450. These services are optional.


Additional Information
Tenure: Freehold
Council Tax Band: A

Rooms
ENTRANCE
Access to first floor and doors to lounge and dining kitchen.
LOUNGE
Double glazed window to front, cast gas range, radiator with feature beams and under stairs storage.
5.29m x 3.37m (17'4" x 11'0")
DINING KITCHEN
Fitted with a range of base and eye level units with round edged worktops, 1½ bowl sink with single drainer and mixer tap with tiled splashbacks, plumbing for automatic washing machine, space for fridge, gas point for cooker, double glazed windows to front, radiator with exposed beams, open plan to:
5.69m x 5.48m (18'8" x 17'11")
STORE/CELLAR
Ample space for storage.
HALLWAY
Access to four bedrooms and family bathroom
BEDROOM 1
Double glazed window to side, double glazed window, radiators with exposed beams.
5.50m x 3.51m (18'0" x 11'6" )
BEDROOM 2
Double glazed window to front, radiator
4.48m x 3.37m (14'8" x 11'0")
BEDROOM 3
Double glazed window and radiator
3.26m x 2.08m (10'8" x 6'9")
BEDROOM 4
Double glazed window and radiator, PVCu door to rear entrance, access to walk in storage and
4.94m x 4.94m (16'2" x 16'2")
EN SUITE
A walk in double shower enclosure with low flush WC and pedestal wash hand basin.
BATHROOM
Fitted with three piece suite comprising panelled bath, pedestal wash hand basin and low-level WC, ceramic tiled walls, tiled flooring.
OUTSIDE
Enclosed paved area to the front, with on street parking to the front.
AUCTION INFORMATION
This property is for sale by Modern Method of Auction allowing the buyer and seller to complete within a 56 Day Reservation Period. Interested parties’ personal data will be shared with the Auctioneer (iamsold Ltd). If considering a mortgage, inspect and consider the property carefully with your lender before bidding. A Buyer Information Pack is provided, which you must view before bidding. The buyer will pay £300 inc VAT for this pack. The buyer signs a Reservation Agreement and makes payment of a Non-Refundable Reservation Fee of 4.5% of the purchase price inc VAT, subject to a minimum of £6,600 inc VAT. This Fee is paid to reserve the property to the buyer during the Reservation Period and is paid in addition to the purchase price. The Fee is considered within calculations for stamp duty. Services may be recommended by the Agent/Auctioneer in which they will receive payment from the service provider if the
service is taken. Payment varies but will be no more than £450. These services are optional.

Mortgage calculator

Calculate Your Stamp Duty
£
Results
Stamp Duty To Pay:
Effective Rate:
Tax Band % Taxable Sum Tax

Cemetery Road, Dewsbury

Want to explore Cemetery Road, Dewsbury further? Explore our local area guide

Struggling to find a property? Get in touch and we'll help you find your ideal property.