Standout Features

Property Description
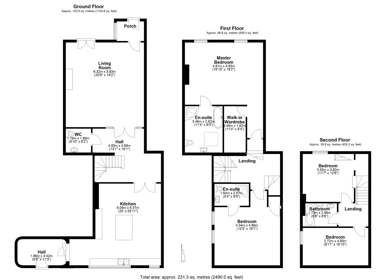
Set within an exclusive gated development in one of York’s most sought-after locations, this beautifully presented four-bedroom period townhouse offers over 2,400 sq ft of elegant, versatile living across three spacious floors.

Once a prominent 19th-century residence and later used as RAF quarters during WWII, Ashfield House retains its rich heritage through award-winning restoration. Ideally located just moments from the Knavesmire and York Racecourse, with excellent amenities, top-rated schools, and superb transport links including the A64 and York railway station, it offers the perfect blend of character and convenience.

A charming entrance porch leads into a light-filled living room with a striking feature fireplace and glazed patio doors. The inner hallway provides access to a guest W.C. and an impressive staircase rising to the upper floors. At the rear, a stylish kitchen-diner features shaker-style units, a central island with wine storage, a Belfast sink, and space for freestanding appliances including a range-style cooker and American-style fridge freezer. A boot room with access to Tadcaster Road completes the ground floor.

Upstairs, the first floor hosts two generous double bedrooms, including a principal suite with walk-in wardrobe and luxurious four-piece en suite, plus a second en suite bedroom ideal for guests or older children. The top floor offers two further double bedrooms and a beautifully appointed family bathroom.

Outside, the property enjoys a lawned rear garden with private patio, a double garage, and allocated parking—all within a secure, well-maintained gated setting.

Compliance

Agents are required by law to conduct anti-money laundering checks on all those buying a property. We outsource the initial checks to a partner supplier, Coadjute, who will contact you once you have had an offer accepted on a property you wish to buy. The cost of these checks is £40 + VAT per person. This is a non-refundable fee. These charges cover the cost of obtaining relevant data, any manual checks and monitoring which might be required. This fee will need to be paid, and the checks completed in advance of the office issuing a memorandum of sale on the property you would like to buy.


Additional Information
Tenure: Freehold
Council Tax Band: G

Rooms
Compliance
Agents are required by law to conduct anti-money laundering checks on all those buying a property. We outsource the initial checks to a partner supplier, Coadjute, who will contact you once you have had an offer accepted on a property you wish to buy. The cost of these checks is £40 + VAT per person. This is a non-refundable fee. These charges cover the cost of obtaining relevant data, any manual checks and monitoring which might be required. This fee will need to be paid, and the checks completed in advance of the office issuing a memorandum of sale on the property you would like to buy.

Mortgage calculator

Calculate Your Stamp Duty
£
Results
Stamp Duty To Pay:
Effective Rate:
Tax Band % Taxable Sum Tax

College Court, Dringhouses, York

Want to explore College Court, Dringhouses, York further? Explore our local area guide

Struggling to find a property? Get in touch and we'll help you find your ideal property.