Standout Features

Property Description
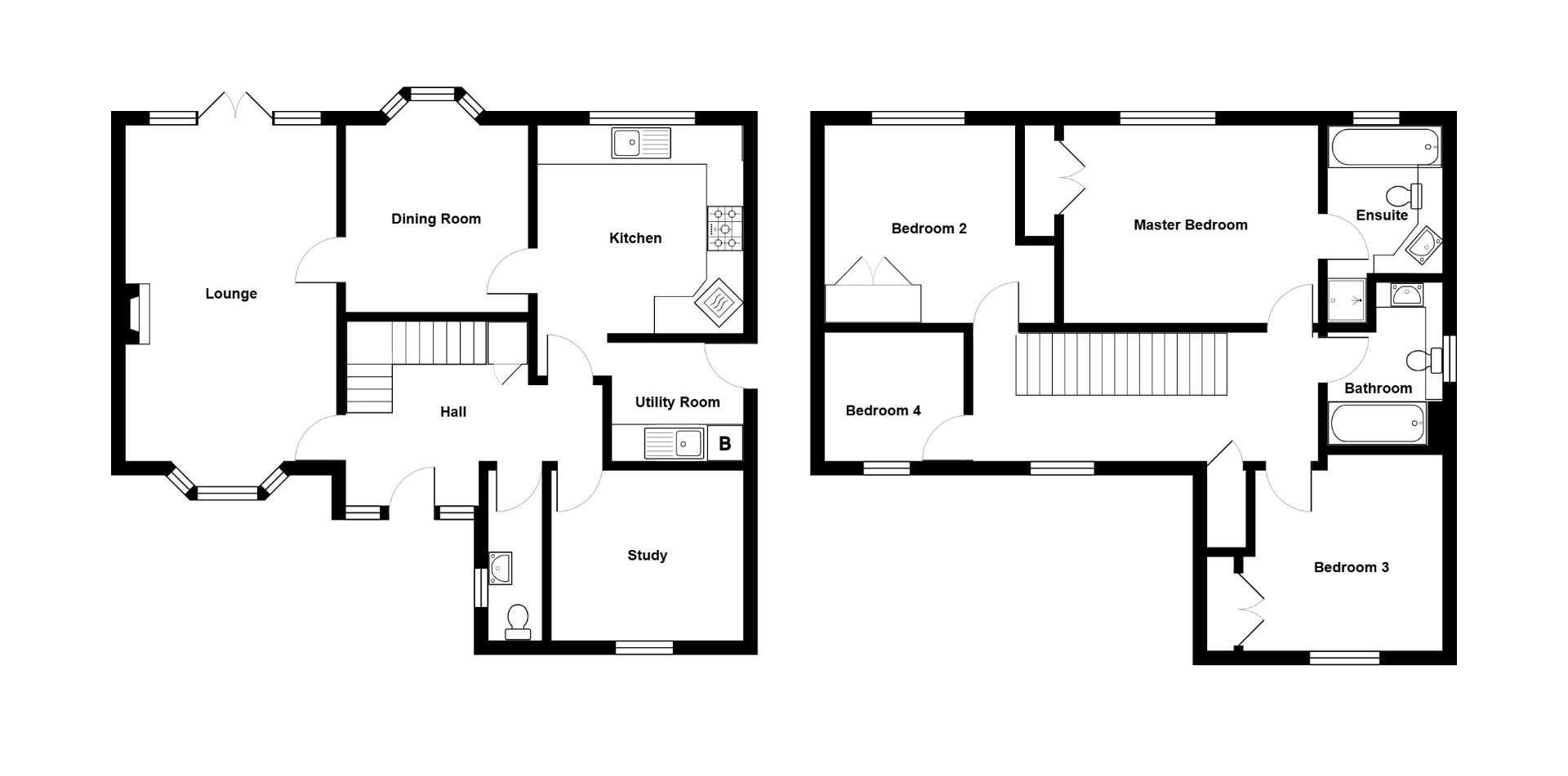
A detached family home occupying a secluded cul-de-sac position on this popular development, conveniently located for access onto major commuting routes. The accommodation comprises; hall, cloakroom, study, lounge, dining room, kitchen, utility, bathroom & 4 bedrooms, master bedroom with en suite bathroom. Other benefits include; double garage, ample off street parking, gas c/h & uPVC d/glazing.

DESCRIPTION

Hunters Estate Agents, Downend are pleased to offer for sale this bay fronted Bryant Homes built detached family home which is located on one of Downend's most popular developments.
This property offers spacious accommodation throughout and occupies a secluded cul-de-sac position, convenient for many local schools and for access onto the Avon ring road, for major commuting and transport links and for the Bristol cycle path.
The amenities of both Downend and Emersons Green are within easy reach and include a wide variety of independent shops and supermarkets, restaurants, coffee shops, doctors surgeries and dental practices.
The accommodation comprises to the ground floor; entrance hall, cloakroom, study, lounge with French doors leading into the rear garden, a separate dining room with a bay window overlooking the rear garden, kitchen with an integral oven and hob and utility room. To the first floor there is a family bathroom and four bedrooms, the master bedroom has the benefit of built in wardrobes and an en suite bathroom.
Externally to the front of the property is a detached double sized garage with power and light and a large area laid to Tarmacadam providing ample off street parking spaces. To the rear of the property is an established garden which is mainly laid to paved patio and lawn.
Additional benefits include gas central heating which is provided by a Worcester boiler and uPVC double glazed windows.

ENTRANCE

Via a half opaque, leaded and stained glazed door, leading into an entrance hall.

ENTRANCE HALL

Coved ceiling, under stairs storage cupboard, radiator, laminate floor, spindled staircase leading to first floor accommodation and doors leading into cloakroom, study, kitchen and lounge.

CLOAKROOM

Opaque uPVC double glazed window to side, white suite comprising; W.C. and wash hand basin with tiled splash backs, laminate floor.

STUDY (2.77m x 2.18m)

uPVC double glazed window to front, coved ceiling, telephone point, radiator.

LOUNGE (6.10m into bay x 3.56m)

uPVC double glazed bay window to front, coved ceiling, feature fireplace, TV aerial point, two radiators, door leading into dining room and uPVC double glazed French doors leading into rear garden.

DINING ROOM (3.08 into bay x 3.04)

uPVC double glazed bay window to rear, ceiling rose, coved ceiling, radiator, door leading into kitchen.

KITCHEN (3.40m x 2.18m)

uPVC double glazed window to rear, ceiling with recessed LED spot lights, one and a half bowl sink drainer with mixer tap and tiled splash backs, range of fitted wall and base units incorporating an integral double electric oven with four ring gas hob with extractor fan over, toll edged worksurface, space for a tall fridge freezer, plumbing for dishwasher, laminate floor, door into utility room.

UTILITY ROOM (1.83m x 1.83m)

Stainless steel single drainer sink unit with tiled splash backs, roll edged work surface, plumbing for washing machine, space for a tumble dryer, Worcester boiler supplying gas central heating and domestic hot water, radiator, laminate floor, half glazed door leading to side.

FIRST FLOOR ACCOMMODATION

LANDING

uPVC double glazed window to front, loft access, storage cupboard, radiator, spindled balustrade, doors leading into all bedrooms and bathroom.

BEDROOM ONE (4.09m x 3.25m)

uPVC double glazed window to rear, built in double fronted wardrobe, picture rail, radiator, door leading into en suite.

EN SUITE

Opaque uPVC double glazed window to rear, white suite comprising; W.C with concealed cistern, wash hand basin with double cupboard below, panelled twin gripped bath and shower cubicle (not currently operational), tiled splash backs, heated towel rail, shaver point.

BEDROOM TWO (3.25m x 3.12m)

uPVC double glazed window to rear, built in double fronted wardrobe, radiator.

BEDROOM THREE (3.10m x 2.54m)

uPVC double glazed window to front, picture rail, dado rail, built in double fronted wardrobe, radiator.

BEDROOM FOUR (2.67m x 1.96m)

uPVC double glazed window to front, picture rail, radiator.

OUTSIDE

FRONT

A large area laid to Tarmacadam providing several off street parking spaces.

GARAGE

Double garage with two metal up and over door, power and light, door leading into rear garden.

REAR GARDEN

Paved area to side and rear leading to an area which is mainly laid to lawn with herbaceous borders displaying a variety of established trees and shrubs, garden surrounded by wooden =fencing, side gate providing pedestrian access.

ANTI-MONEY LAUNDERING

Estate Agents operating in the UK are required to conduct Anti-Money Laundering (AML) checks in compliance with the regulations set forth by HM Revenue and Customs (HMRC) for all property transactions. It is mandatory for both buyers and sellers to successfully complete these checks before any property transaction can proceed. Our estate agency uses Coadjute’s Assured Compliance service to facilitate the AML checks. A fee will be charged for each individual AML check conducted.


Additional Information
Tenure: Freehold

Rooms
DESCRIPTION
Hunters Estate Agents, Downend are pleased to offer for sale this bay fronted Bryant Homes built detached family home which is located on one of Downend's most popular developments.
This property offers spacious accommodation throughout and occupies a secluded cul-de-sac position, convenient for many local schools and for access onto the Avon ring road, for major commuting and transport links and for the Bristol cycle path.
The amenities of both Downend and Emersons Green are within easy reach and include a wide variety of independent shops and supermarkets, restaurants, coffee shops, doctors surgeries and dental practices.
The accommodation comprises to the ground floor; entrance hall, cloakroom, study, lounge with French doors leading into the rear garden, a separate dining room with a bay window overlooking the rear garden, kitchen with an integral oven and hob and utility room. To the first floor there is a family bathroom and four bedrooms, the master bedroom has the benefit of built in wardrobes and an en suite bathroom.
Externally to the front of the property is a detached double sized garage with power and light and a large area laid to Tarmacadam providing ample off street parking spaces. To the rear of the property is an established garden which is mainly laid to paved patio and lawn.
Additional benefits include gas central heating which is provided by a Worcester boiler and uPVC double glazed windows.
ENTRANCE
Via a half opaque, leaded and stained glazed door, leading into an entrance hall.
ENTRANCE HALL
Coved ceiling, under stairs storage cupboard, radiator, laminate floor, spindled staircase leading to first floor accommodation and doors leading into cloakroom, study, kitchen and lounge.
CLOAKROOM
Opaque uPVC double glazed window to side, white suite comprising; W.C. and wash hand basin with tiled splash backs, laminate floor.
STUDY
uPVC double glazed window to front, coved ceiling, telephone point, radiator.
2.77m x 2.18m (9'1" x 7'2")
LOUNGE
uPVC double glazed bay window to front, coved ceiling, feature fireplace, TV aerial point, two radiators, door leading into dining room and uPVC double glazed French doors leading into rear garden.
6.10m into bay x 3.56m (20'0" into bay x 11'8")
DINING ROOM
uPVC double glazed bay window to rear, ceiling rose, coved ceiling, radiator, door leading into kitchen.
3.08 into bay x 3.04 (10'1" into bay x 9'11")
KITCHEN
uPVC double glazed window to rear, ceiling with recessed LED spot lights, one and a half bowl sink drainer with mixer tap and tiled splash backs, range of fitted wall and base units incorporating an integral double electric oven with four ring gas hob with extractor fan over, toll edged worksurface, space for a tall fridge freezer, plumbing for dishwasher, laminate floor, door into utility room.
3.40m x 2.18m (11'2" x 7'2")
UTILITY ROOM
Stainless steel single drainer sink unit with tiled splash backs, roll edged work surface, plumbing for washing machine, space for a tumble dryer, Worcester boiler supplying gas central heating and domestic hot water, radiator, laminate floor, half glazed door leading to side.
1.83m x 1.83m (6'0" x 6'0")
FIRST FLOOR ACCOMMODATION

LANDING
uPVC double glazed window to front, loft access, storage cupboard, radiator, spindled balustrade, doors leading into all bedrooms and bathroom.
BEDROOM ONE
uPVC double glazed window to rear, built in double fronted wardrobe, picture rail, radiator, door leading into en suite.
4.09m x 3.25m (13'5" x 10'8")
EN SUITE
Opaque uPVC double glazed window to rear, white suite comprising; W.C with concealed cistern, wash hand basin with double cupboard below, panelled twin gripped bath and shower cubicle (not currently operational), tiled splash backs, heated towel rail, shaver point.
BEDROOM TWO
uPVC double glazed window to rear, built in double fronted wardrobe, radiator.
3.25m x 3.12m (10'8" x 10'3")
BEDROOM THREE
uPVC double glazed window to front, picture rail, dado rail, built in double fronted wardrobe, radiator.
3.10m x 2.54m (10'2" x 8'4")
BEDROOM FOUR
uPVC double glazed window to front, picture rail, radiator.
2.67m x 1.96m (8'9" x 6'5")
OUTSIDE

FRONT
A large area laid to Tarmacadam providing several off street parking spaces.
GARAGE
Double garage with two metal up and over door, power and light, door leading into rear garden.
REAR GARDEN
Paved area to side and rear leading to an area which is mainly laid to lawn with herbaceous borders displaying a variety of established trees and shrubs, garden surrounded by wooden =fencing, side gate providing pedestrian access.
ANTI-MONEY LAUNDERING
Estate Agents operating in the UK are required to conduct Anti-Money Laundering (AML) checks in compliance with the regulations set forth by HM Revenue and Customs (HMRC) for all property transactions. It is mandatory for both buyers and sellers to successfully complete these checks before any property transaction can proceed. Our estate agency uses Coadjute’s Assured Compliance service to facilitate the AML checks. A fee will be charged for each individual AML check conducted.

Mortgage calculator

Calculate Your Stamp Duty
£
Results
Stamp Duty To Pay:
Effective Rate:
Tax Band % Taxable Sum Tax

Heathfields, Downend, Bristol, BS16 6HT

Want to explore Heathfields, Downend, Bristol, BS16 6HT further? Explore our local area guide

Struggling to find a property? Get in touch and we'll help you find your ideal property.