4 bedroom House For Sale

OIRO £285,000 | Available

4 bedroom House For Sale
or call 0191 586 3836
Standout Features

Property Description
DISTINCTIVE INDIVIDUAL RESIDENCE - LARGER CORNER GARDENS - STRIKING CONTEMPORARY FINISH .... Hunters are delighted to present to the market this spectacular detached residence which has been lavishly presented to a high specification including an eye catching reception kitchen with double doors opening into the larger west facing corner gardens, two en-suite bathrooms and a wonderful family bathroom. The residence is situated within this exclusive cul-de-sac of new build properties in reach of the new railway station which interconnects with Newcastle, Sunderland, Hartlepool and beyond, the A19 which links with the historic city of Durham and the scenic Castle Eden Dene nature reserve which meanders from the highly acclaimed Castle Eden Golf Club to the scenic heritage coastline. The accommodation briefly comprises of an inspiring entrance hallway with ground floor W/c, a stunning reception kitchen with an adjoining utility room, a splendid principle reception with a media wall, four double bedrooms, two en-suite bathrooms, a sumptuous family bathroom, garage and suitable off street parking for numerous family vehicles together with a convenient secure standage at the side of the residence for a motorhome or works vehicle. "NO CHAIN"

DISTINCTIVE INDIVIDUAL RESIDENCE - LARGER CORNER GARDENS - STRIKING CONTEMPORARY FINISH ....

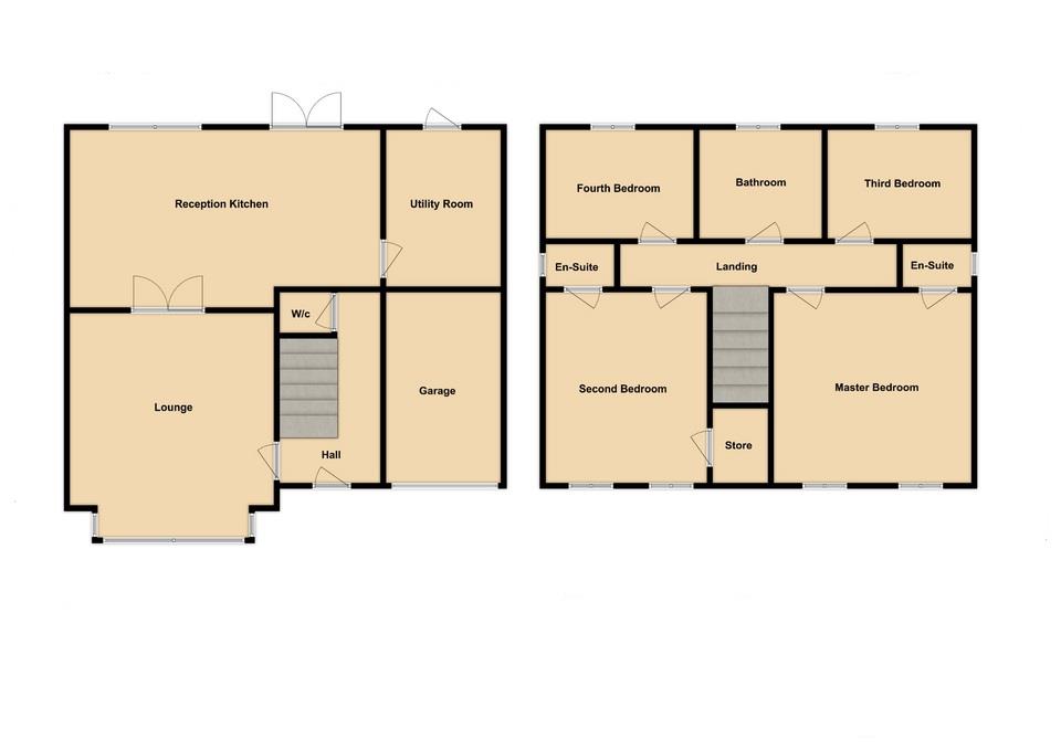
ENTRANCE HALLWAY

Situated at the front of this imposing residence the welcoming entrance features an eye catching contemporary glazed staircase leading to the first floor complimented with attractive tiled flooring, a radiator and an individualistic double glazed composite external door. Internal doors offer accessibility into the principle reception room, the stunning reception kitchen and the convenient grou...

GROUND FLOOR W/C

Positioned into the understairs recess this useful facility features a notable corner sink, a low level W/c and a radiator.

LOUNGE (3.87 x 6.49)

Offering larger than average proportions expected of a property of this nature, the opulent principle reception incorporates a pair of partially glazed french doors opening into the magnificent reception kitchen complimenting the double glazed windows providing unrestricted views across the front grounds and recessed spotlighting to the ceiling area. Accompaniments include a further partially...

RECEPTION KITCHEN (4.42 x 7.42)

Nestled on a westerly facing aspect at the rear of this distinctive family home, the luxurious reception kitchen exudes a contemporary individualism rarely seen in modern residences, with an extensive array of cabinets and an eye catching central preparation island finished in a gloss white colour with contrasting black granite work surfaces integrating a recessed brushed steel sink unit comple...

UTILITY ROOM (1.98 x 3.48)

Adjoining the reception kitchen towards the rear of the residence, the well appointed utility room continues with the same kitchen cabinets and black granite work surfaces as the kitchen area accompanied with a continuation of the ceramic tiled flooring culminating at a double glazed exterior door providing accessibility into the rear gardens. Further notable attributes include plumbing for bo...

FIRST FLOOR LANDING

The deceptively spacious landing area offers accessibility into the four double bedrooms and the exquisite family bathroom, convenient loft access, a radiator and a contemporary glazed staircase leading to the entrance hallway on the ground floor.

MASTER BEDROOM (3.96 x 4.68)

Incorporating spectacular proportions expected of an individual residence of this nature, the master bedroom features two double glazed windows offering elevated views across the front grounds and scenic rooftop views towards the distant heritage coastline, a walk into wardrobe, radiator and a further door opening into the en-suite facility servicing the bedroom.

EN-SUITE (1.65 x 1.97)

This desirable facility positioned off the master bedroom at the side of the residence incorporates lavish natural stone effect wall and floor tiling complete with a chrome finished corner glazed shower enclosure complimented with a polished ladder style towel radiator, a low level W/c, frosted double glazed window and rectangular hand wash basin inset into a useful vanity cabinet.

SECOND BEDROOM (3.76 x 4.48)

Situated at the front of this imposing family residence, the second bedroom suite comprises of two double glazed windows providing roof top views across the heritage coastline, a radiator and a further door opening into the en-suite facility.

EN-SUITE (1.67 x 2.31)

The appealing en-suite which exclusively services the second double bedroom, offers a continuation of attractive natural stone effect tiling mirroring that of the master suite, complimenting a chrome finished shower enclosure, an elevated polished ladder style radiator and an integral concealed flush W/c and hand wash basin inset into a display vanity cabinet.

THIRD BEDROOM (3.34 x 3.92)

Nestled at the rear of the residence, the third double bedroom provides wonderful elevated views across the larger west facing corner gardens through double glazed windows and a radiator.

FOURTH BEDROOM (3.22 x 3.35)

Set adjacent to the lavish family bathroom at the rear of the home, this larger than average fourth double bedroom incorporates a radiator and double glazed windows overlooking the rear gardens.

FAMILY BATHROOM (2.21 x 3.38)

Encompassing a striking contemporary design and a particular attention to an exemplary finish, this fabulous family bathroom features a breathtaking bespoke rectangular bath complete with an independent shower and mixer tap fitment complimented with lavish natural stone effect tiling and a useful vanity cabinet integrating the rectangular sink, concealed flush W/c and a black granite top. Furt...

EXTERNAL

This individual bespoke residence occupies a superior corner position within the exclusive "Kings Court" new build development of similar stature properties. The residence provides an extensive turfed west facing rear garden accessed via double glazed doors from the reception kitchen and the adjoining utility room ideal for executive clients and families alike. The lawns are intersected with ...

INTEGRAL GARAGE

Situated at the front of the residence, the integral garage offers a roller garage door opening onto the spectacular resin finished exclusive triple driveway.


Additional Information
Tenure: Freehold
Council Tax Band: B

Rooms
ENTRANCE HALLWAY
Situated at the front of this imposing residence the welcoming entrance features an eye catching contemporary glazed staircase leading to the first floor complimented with attractive tiled flooring, a radiator and an individualistic double glazed composite external door. Internal doors offer accessibility into the principle reception room, the stunning reception kitchen and the convenient grou...
GROUND FLOOR W/C
Positioned into the understairs recess this useful facility features a notable corner sink, a low level W/c and a radiator.
LOUNGE
Offering larger than average proportions expected of a property of this nature, the opulent principle reception incorporates a pair of partially glazed french doors opening into the magnificent reception kitchen complimenting the double glazed windows providing unrestricted views across the front grounds and recessed spotlighting to the ceiling area. Accompaniments include a further partially...
3.87 x 6.49
RECEPTION KITCHEN
Nestled on a westerly facing aspect at the rear of this distinctive family home, the luxurious reception kitchen exudes a contemporary individualism rarely seen in modern residences, with an extensive array of cabinets and an eye catching central preparation island finished in a gloss white colour with contrasting black granite work surfaces integrating a recessed brushed steel sink unit comple...
4.42 x 7.42
UTILITY ROOM
Adjoining the reception kitchen towards the rear of the residence, the well appointed utility room continues with the same kitchen cabinets and black granite work surfaces as the kitchen area accompanied with a continuation of the ceramic tiled flooring culminating at a double glazed exterior door providing accessibility into the rear gardens. Further notable attributes include plumbing for bo...
1.98 x 3.48
FIRST FLOOR LANDING
The deceptively spacious landing area offers accessibility into the four double bedrooms and the exquisite family bathroom, convenient loft access, a radiator and a contemporary glazed staircase leading to the entrance hallway on the ground floor.
MASTER BEDROOM
Incorporating spectacular proportions expected of an individual residence of this nature, the master bedroom features two double glazed windows offering elevated views across the front grounds and scenic rooftop views towards the distant heritage coastline, a walk into wardrobe, radiator and a further door opening into the en-suite facility servicing the bedroom.
3.96 x 4.68
EN-SUITE
This desirable facility positioned off the master bedroom at the side of the residence incorporates lavish natural stone effect wall and floor tiling complete with a chrome finished corner glazed shower enclosure complimented with a polished ladder style towel radiator, a low level W/c, frosted double glazed window and rectangular hand wash basin inset into a useful vanity cabinet.
1.65 x 1.97
SECOND BEDROOM
Situated at the front of this imposing family residence, the second bedroom suite comprises of two double glazed windows providing roof top views across the heritage coastline, a radiator and a further door opening into the en-suite facility.
3.76 x 4.48
EN-SUITE
The appealing en-suite which exclusively services the second double bedroom, offers a continuation of attractive natural stone effect tiling mirroring that of the master suite, complimenting a chrome finished shower enclosure, an elevated polished ladder style radiator and an integral concealed flush W/c and hand wash basin inset into a display vanity cabinet.
1.67 x 2.31
THIRD BEDROOM
Nestled at the rear of the residence, the third double bedroom provides wonderful elevated views across the larger west facing corner gardens through double glazed windows and a radiator.
3.34 x 3.92
FOURTH BEDROOM
Set adjacent to the lavish family bathroom at the rear of the home, this larger than average fourth double bedroom incorporates a radiator and double glazed windows overlooking the rear gardens.
3.22 x 3.35
FAMILY BATHROOM
Encompassing a striking contemporary design and a particular attention to an exemplary finish, this fabulous family bathroom features a breathtaking bespoke rectangular bath complete with an independent shower and mixer tap fitment complimented with lavish natural stone effect tiling and a useful vanity cabinet integrating the rectangular sink, concealed flush W/c and a black granite top. Furt...
2.21 x 3.38
EXTERNAL
This individual bespoke residence occupies a superior corner position within the exclusive "Kings Court" new build development of similar stature properties. The residence provides an extensive turfed west facing rear garden accessed via double glazed doors from the reception kitchen and the adjoining utility room ideal for executive clients and families alike. The lawns are intersected with ...
INTEGRAL GARAGE
Situated at the front of the residence, the integral garage offers a roller garage door opening onto the spectacular resin finished exclusive triple driveway.

Utilities
Broadband:
Fibre to Premises
Electricity:
Mains Supply
Sewerage:
Mains Supply
Water:
Heating:
Gas Central

Mortgage calculator

Calculate Your Stamp Duty
£
Results
Stamp Duty To Pay:
Effective Rate:
Tax Band % Taxable Sum Tax

Kings Court, Horden, County Durham, SR8 4TB

Want to explore Kings Court, Horden, County Durham, SR8 4TB further? Explore our local area guide

Struggling to find a property? Get in touch and we'll help you find your ideal property.