Slade Baker Way, Scholars Chase, Bristol, BS16 1YN

£475,000 | Available

4 bedroom House For Sale
or call 0117 956 1234
Standout Features

Property Description
Located on the popular Scholars chase development this immaculately presented modern built family home. Spacious accommodation over 3 floors, comprising: lounge, kitchen/diner, cloakroom, 4 bedrooms, master en-suite & family bathroom. Benefiting from having a good size rear garden, garage & driveway.

DECRIPTION

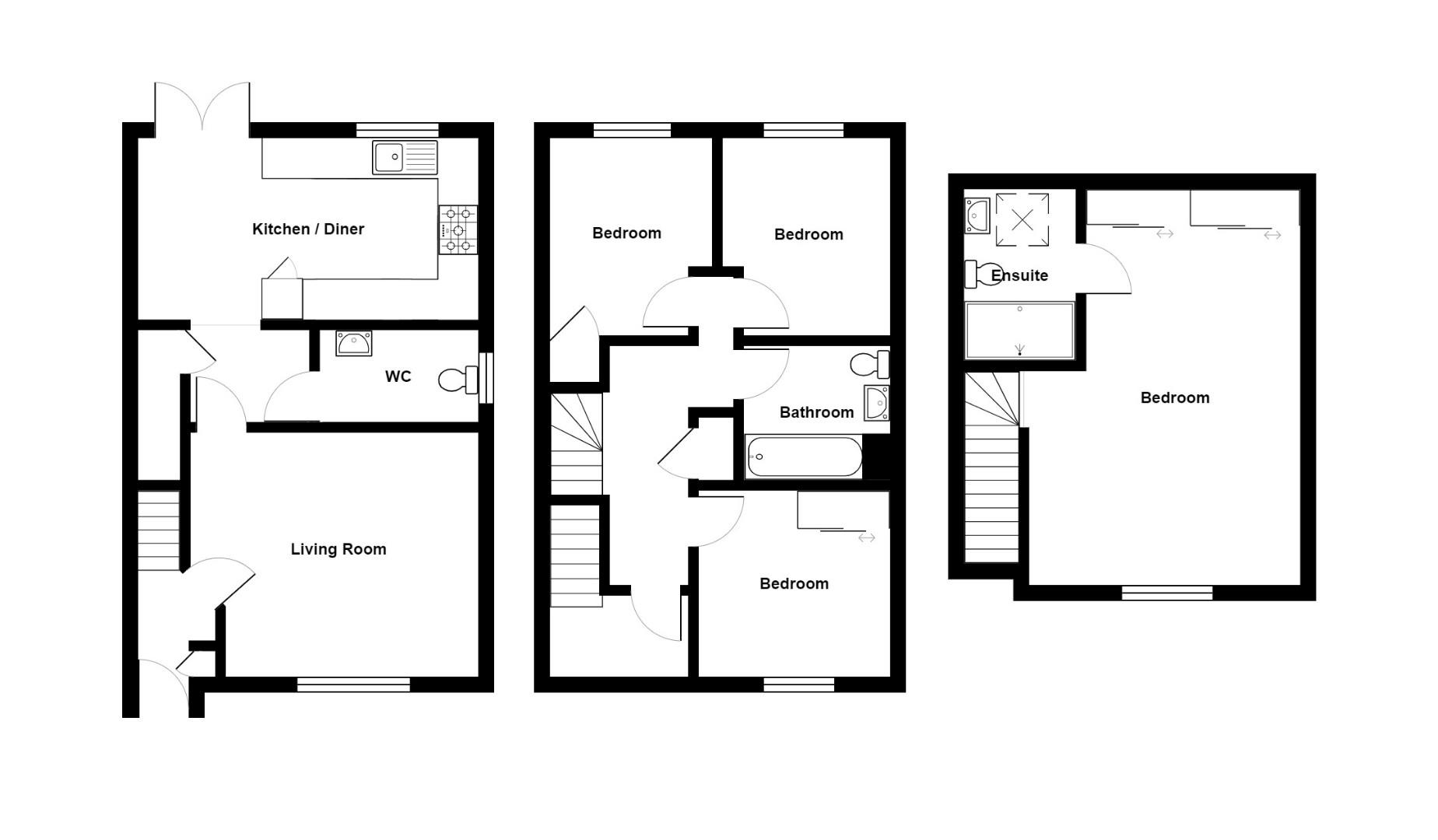
Hunters Estate Agents, Downend are pleased to offer for sale this superb modern built family home located within the sought after Scholars Chase development. The property offers spacious living accommodation which is immaculately displayed over 3 floors. The ground floor comprises: entrance hallway, cloakroom, lounge, a modern fitted kitchen with integrated appliances and French doors out to garden. To the first floor can be found 3 generous size bedrooms and a modern family bathroom with over bath shower. A staircase rises to the second floor where you can find a stunning master bedroom with fitted wardrobes and ensuite. Externally the property has a well tended lawn rear garden with patio and decking providing ample seating space, garage and a 2 car driveway.
The development is perfectly placed and is a short walk to University of West of England, MOD and Bristol Business Park and offers excellent transport links onto The ring Road, Motorway networks and Parkway Station. The neighbouring development of Stoke Park gives access to large open Green spaces including Purdown and Snuff Mills.

ENTRANCE HALLWAY

Double glazed door to front, stairs rising to first floor, door leading to Lounge.

LOUNGE (3.78m (max) x 4.27m (max))

Double glazed window to front, radiator, TV point, door to kitchen/diner.

KITCHEN/DINER (4.57m 1.22m (max) x 4.27m 1.22m (max))

Double glazed French doors leading out to rear garden, double glazed window to rear, fitted kitchen comprising wall and base units, work surfaces, integrated appliances, sink/drainer, built in electric oven and gas hob, radiator, under stair storage cupboard, door to cloakroom.

CLOAKROOM

Opaque double glazed window to side, close coupled WC, wash hand basin, radiator.

FIRST FLOOR ACCOMMODATION

DOuble glazed window to front, radiator, stairs rising to second floor accommodation, doors leading to bedrooms and bathroom.

BEDROOM TWO (2.67m (max) x 3.12m (max))

Double glazed window to front, radiator.

BEDROOM THREE (2.44m (max) x 3.25m (max))

Double glazed window to rear, radiator.

BEDROOM FOUR (2.13m 2.13m (max) x 3.05m 2.44m (max))

Double glazed window to rear, built in storage cupboard, radiator.

BATHROOM

Opaque double glazed window to side, close coupled WC, wash hand basin, pannelled bath with mains controlled shower over, glass shower screen, radiator, part tiled walls, tiled floor.

SECOND FLOOR ACCOMMODATION:

MASTER BEDROOM (4.78m (max) x 5.56m (max))

Double glazed dormer window to front and Velux window to rear, radiator, fitted wardrobes, door to en-suite.

EN-SUITE

Velux window to rear, low level WC, vanity unit with wash hand basin inset, shower, enclosure housing elctric controlled shower system, radiator.

OUTSIDE:

REAR GARDEN

Enclosed rear garden, mainly laid to lawn with patio area and decking area, pathway, gated side access.

GARAGE

Single garage with up and over door, power and light,

DRIVEWAY

Tarmac driveway to side, providing off street parking for 2 cars.


Additional Information
Tenure: Freehold
Council Tax Band: E

Rooms
DECRIPTION
Hunters Estate Agents, Downend are pleased to offer for sale this superb modern built family home located within the sought after Scholars Chase development. The property offers spacious living accommodation which is immaculately displayed over 3 floors. The ground floor comprises: entrance hallway, cloakroom, lounge, a modern fitted kitchen with integrated appliances and French doors out to garden. To the first floor can be found 3 generous size bedrooms and a modern family bathroom with over bath shower. A staircase rises to the second floor where you can find a stunning master bedroom with fitted wardrobes and ensuite. Externally the property has a well tended lawn rear garden with patio and decking providing ample seating space, garage and a 2 car driveway.
The development is perfectly placed and is a short walk to University of West of England, MOD and Bristol Business Park and offers excellent transport links onto The ring Road, Motorway networks and Parkway Station. The neighbouring development of Stoke Park gives access to large open Green spaces including Purdown and Snuff Mills.
ENTRANCE HALLWAY
Double glazed door to front, stairs rising to first floor, door leading to Lounge.
LOUNGE
Double glazed window to front, radiator, TV point, door to kitchen/diner.
3.78m (max) x 4.27m (max) (12'5" (max) x 14'0" (ma
KITCHEN/DINER
Double glazed French doors leading out to rear garden, double glazed window to rear, fitted kitchen comprising wall and base units, work surfaces, integrated appliances, sink/drainer, built in electric oven and gas hob, radiator, under stair storage cupboard, door to cloakroom.
4.57m 1.22m (max) x 4.27m 1.22m (max) (15' 4" (max
CLOAKROOM
Opaque double glazed window to side, close coupled WC, wash hand basin, radiator.
FIRST FLOOR ACCOMMODATION
DOuble glazed window to front, radiator, stairs rising to second floor accommodation, doors leading to bedrooms and bathroom.
BEDROOM TWO
Double glazed window to front, radiator.
2.67m (max) x 3.12m (max) (8'9" (max) x 10'3" (max
BEDROOM THREE
Double glazed window to rear, radiator.
2.44m (max) x 3.25m (max) (8'0" (max) x 10'8" (max
BEDROOM FOUR
Double glazed window to rear, built in storage cupboard, radiator.
2.13m 2.13m (max) x 3.05m 2.44m (max) (7' 7" (max)
BATHROOM
Opaque double glazed window to side, close coupled WC, wash hand basin, pannelled bath with mains controlled shower over, glass shower screen, radiator, part tiled walls, tiled floor.
SECOND FLOOR ACCOMMODATION:

MASTER BEDROOM
Double glazed dormer window to front and Velux window to rear, radiator, fitted wardrobes, door to en-suite.
4.78m (max) x 5.56m (max) (15'8" (max) x 18'3" (ma
EN-SUITE
Velux window to rear, low level WC, vanity unit with wash hand basin inset, shower, enclosure housing elctric controlled shower system, radiator.
OUTSIDE:

REAR GARDEN
Enclosed rear garden, mainly laid to lawn with patio area and decking area, pathway, gated side access.
GARAGE
Single garage with up and over door, power and light,
DRIVEWAY
Tarmac driveway to side, providing off street parking for 2 cars.

Mortgage calculator

Calculate Your Stamp Duty
£
Results
Stamp Duty To Pay:
Effective Rate:
Tax Band % Taxable Sum Tax

Slade Baker Way, Scholars Chase, Bristol, BS16 1YN

Want to explore Slade Baker Way, Scholars Chase, Bristol, BS16 1YN further? Explore our local area guide

Struggling to find a property? Get in touch and we'll help you find your ideal property.