Woodbine Cottage, Shortwood Hill, Shortwood, Bristol, BS16 9PF

£700,000 | SSTC

4 bedroom House Sold STC
or call 0117 956 1234
Standout Features

Property Description
Offering a semi-rural location with excellent transport links to both Bristol & Bath this superb extended detached period cottage set with a good size plot. Spacious accommodation comprising: 4 bedrooms, 3 receptions, oak kitchen, conservatory, cloakroom, bathroom & shower room. large mature garden, double garage and ample off street parking.

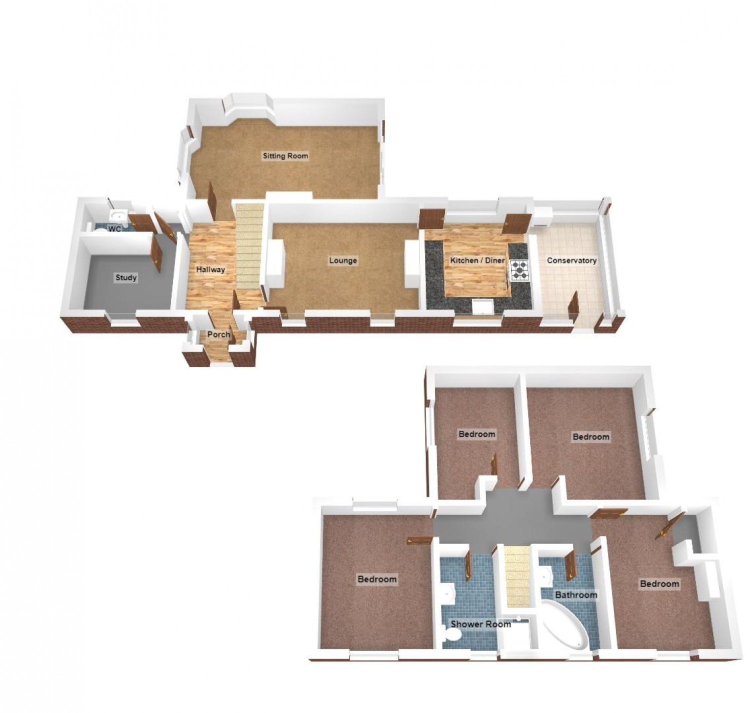
DESCRIPTION

Hunters Estate Agents, Downend are delighted to offer for sale this substantial period detached cottage located within this popular semi-rural location which is set within a sizable plot and backing on to open countryside. The property has been previously extended to produce spacious living accommodation which is ideal for a growing family. The well presented accommodation comprises in brief, to the ground floor, entrance porch, hallway, living room, lounge with wood burner, study, cloakroom, a solid oak kitchen with granite work tops and a conservatory/utility. To the first floor can be found four generous sized bedrooms, a bathroom and a shower room. Externally there are well kept large mature gardens, gated access to secure off street parking for several vehicles, a carport and a oversized double garage.
Shortwood Hill is on the edge of the Historic village of Pucklechurch, which is approximately 10.6 miles from the centre of Bristol and 11 miles from the centre of Bath via the nearby ring road (A4174). Commutable village life and beautiful countryside surrounds make this area a popular choice for those wanting access to these two major cities. The market town of Chipping Sodbury is a short drive away, as is the A46 and the beautiful National Trust Country House of Dyrham Park. The nearby village of Pucklechurch is served by local stores including the village coffee shop, post office, convenience store and several Public Houses. There is also Pucklechurch C of E infant school and a village recreation ground. The property is conveniently situated, offering easy access to Bristol, Bath and the motorway network and has direct access onto a cycle path which links up to the Bristol-Bath Cycle Path. In addition to being only a few minutes drive away from the convenient amenities of Emersons Green Retail Centre.

ENTRANCE PORCH

Dual aspect UPVC double glazed windows to side, tiled floor, door to hallway.

HALLWAY

Tiled floor, radiator, under stair storage cupboard, built in cupboard housing alarm control panel and electric meter, stairs rising to first floor, doors to lounge, living room, study and cloakroom.

CLOAKROOM

UPVC double glazed window to rear, close coupled W.C, pedestal wash hand basin, tiled walls and floor.

STUDY (3.00m x 2.67m)

UPVC double glazed window to front, radiator, solid oak floor.

LIVING ROOM (6.07m x 3.71m)

Dual aspect UPVC bow windows to rear and side, beamed ceiling, Marble feature fireplace with electric coal flame effect fire inset, TV point, solid oak floor, UPVC double glazed patio door to side leading out to patio/rear garden.

LOUNGE (4.75m x 3.68m)

Two UPVC double glazed windows to front, tiled floor, radiator, 2 wall lights, feature stone fireplace with cast iron wood burner inset, door to kitchen.

KITCHEN (4.04m x 3.25m)

Dual aspect UPVC double glazed windows to front and rear, range of solid oak wall and base units, granite work tops with matching upstands, Belfast sink with mixer tap, space for range oven, extractor fan hood, integrated fridge and freezer, LED downlighters, radiator, tiled floor, stable style door leading through to conservatory.

CONSERVATORY/UTILITY (4.42m x 3.81m)

UPVC double glazed windows to front and rear, double glazed glass roof, tiled floor, laminate work top, 1 1/2 composite sink bowl unit, oil controlled boiler, UPVC double glazed door to front.

FIRST FLOOR ACCOMMODATION:

LANDING

Oak staircase, doors to bedrooms, bathroom and shower room.

BEDROOM ONE (4.11m x 2.92m)

Dual aspect UPVC double glazed windows to front and rear, 2 radiators.

BEDROOM TWO (3.73m x 3.45m)

UPVC double glazed window to side, radiator.

BEDROOM THREE (3.73m x 2.97m (max))

UPVC double glazed window to front, radiator, built in airing cupboard housing hot water tank, oak effect laminate floor, loft hatch.

BEDROOM FOUR (3.78m x 2.57m)

UPVC double glazed window to side, radiator.

BATHROOM

Opaque UPVC double glazed window to front, corner Jacuzzi bath with tap/shower mixer attachment and electric shower system over, pedestal wash hand basin, tiled effect laminate floor, tiled walls, shaver point, ceiling eyeball spotlights, extractor fan.

SHOWER ROOM

Opaque UPVC double glazed window to front, pedestal wash hand basin, close coupled W.C, shower enclosure housing a Mira mains controlled shower system, tiled walls, oak effect laminate floor, ceiling eyeball spotlights, radiator.

OUTSIDE:

REAR GARDEN

Large mature garden laid to lawn and backing on to open fields, good size patio providing ample seating space, established plant and shrub borders, area laid to stone chippings, under cover seating area area laid to decking, ,gated access to area housing oil tank, enclosed by boundary fencing and hedgerow.

FRONT/SIDE GARDENS

Raised borders laid to stone chippings, pergola, plant and shrub borders, flagstone pathway, wood store to side of garage, enclosed by boundary fencing.

GARAGE (7.87m x 6.25m)

Large detached double garage, 2 up and over doors, power and light, door access to attached storage shed.

OFF STREET PARKING

Gated access to area laid to stone chippings proving off street parking for several vehicles, carport providing additional under cover parking space.


Additional Information
Tenure: Freehold
Council Tax Band: F

Rooms
DESCRIPTION
Hunters Estate Agents, Downend are delighted to offer for sale this substantial period detached cottage located within this popular semi-rural location which is set within a sizable plot and backing on to open countryside. The property has been previously extended to produce spacious living accommodation which is ideal for a growing family. The well presented accommodation comprises in brief, to the ground floor, entrance porch, hallway, living room, lounge with wood burner, study, cloakroom, a solid oak kitchen with granite work tops and a conservatory/utility. To the first floor can be found four generous sized bedrooms, a bathroom and a shower room. Externally there are well kept large mature gardens, gated access to secure off street parking for several vehicles, a carport and a oversized double garage.
Shortwood Hill is on the edge of the Historic village of Pucklechurch, which is approximately 10.6 miles from the centre of Bristol and 11 miles from the centre of Bath via the nearby ring road (A4174). Commutable village life and beautiful countryside surrounds make this area a popular choice for those wanting access to these two major cities. The market town of Chipping Sodbury is a short drive away, as is the A46 and the beautiful National Trust Country House of Dyrham Park. The nearby village of Pucklechurch is served by local stores including the village coffee shop, post office, convenience store and several Public Houses. There is also Pucklechurch C of E infant school and a village recreation ground. The property is conveniently situated, offering easy access to Bristol, Bath and the motorway network and has direct access onto a cycle path which links up to the Bristol-Bath Cycle Path. In addition to being only a few minutes drive away from the convenient amenities of Emersons Green Retail Centre.
ENTRANCE PORCH
Dual aspect UPVC double glazed windows to side, tiled floor, door to hallway.
HALLWAY
Tiled floor, radiator, under stair storage cupboard, built in cupboard housing alarm control panel and electric meter, stairs rising to first floor, doors to lounge, living room, study and cloakroom.
CLOAKROOM
UPVC double glazed window to rear, close coupled W.C, pedestal wash hand basin, tiled walls and floor.
STUDY
UPVC double glazed window to front, radiator, solid oak floor.
3.00m x 2.67m (9'10" x 8'9")
LIVING ROOM
Dual aspect UPVC bow windows to rear and side, beamed ceiling, Marble feature fireplace with electric coal flame effect fire inset, TV point, solid oak floor, UPVC double glazed patio door to side leading out to patio/rear garden.
6.07m x 3.71m (19'11" x 12'2")
LOUNGE
Two UPVC double glazed windows to front, tiled floor, radiator, 2 wall lights, feature stone fireplace with cast iron wood burner inset, door to kitchen.
4.75m x 3.68m (15'7" x 12'1")
KITCHEN
Dual aspect UPVC double glazed windows to front and rear, range of solid oak wall and base units, granite work tops with matching upstands, Belfast sink with mixer tap, space for range oven, extractor fan hood, integrated fridge and freezer, LED downlighters, radiator, tiled floor, stable style door leading through to conservatory.
4.04m x 3.25m (13'3" x 10'8")
CONSERVATORY/UTILITY
UPVC double glazed windows to front and rear, double glazed glass roof, tiled floor, laminate work top, 1 1/2 composite sink bowl unit, oil controlled boiler, UPVC double glazed door to front.
4.42m x 3.81m (14'6" x 12'6")
FIRST FLOOR ACCOMMODATION:

LANDING
Oak staircase, doors to bedrooms, bathroom and shower room.
BEDROOM ONE
Dual aspect UPVC double glazed windows to front and rear, 2 radiators.
4.11m x 2.92m (13'6" x 9'7")
BEDROOM TWO
UPVC double glazed window to side, radiator.
3.73m x 3.45m (12'3" x 11'4")
BEDROOM THREE
UPVC double glazed window to front, radiator, built in airing cupboard housing hot water tank, oak effect laminate floor, loft hatch.
3.73m x 2.97m (max) (12'3" x 9'9" (max))
BEDROOM FOUR
UPVC double glazed window to side, radiator.
3.78m x 2.57m (12'5" x 8'5")
BATHROOM
Opaque UPVC double glazed window to front, corner Jacuzzi bath with tap/shower mixer attachment and electric shower system over, pedestal wash hand basin, tiled effect laminate floor, tiled walls, shaver point, ceiling eyeball spotlights, extractor fan.
SHOWER ROOM
Opaque UPVC double glazed window to front, pedestal wash hand basin, close coupled W.C, shower enclosure housing a Mira mains controlled shower system, tiled walls, oak effect laminate floor, ceiling eyeball spotlights, radiator.
OUTSIDE:

REAR GARDEN
Large mature garden laid to lawn and backing on to open fields, good size patio providing ample seating space, established plant and shrub borders, area laid to stone chippings, under cover seating area area laid to decking, ,gated access to area housing oil tank, enclosed by boundary fencing and hedgerow.
FRONT/SIDE GARDENS
Raised borders laid to stone chippings, pergola, plant and shrub borders, flagstone pathway, wood store to side of garage, enclosed by boundary fencing.
GARAGE
Large detached double garage, 2 up and over doors, power and light, door access to attached storage shed.
7.87m x 6.25m (25'10" x 20'6")
OFF STREET PARKING
Gated access to area laid to stone chippings proving off street parking for several vehicles, carport providing additional under cover parking space.

Mortgage calculator

Calculate Your Stamp Duty
£
Results
Stamp Duty To Pay:
Effective Rate:
Tax Band % Taxable Sum Tax

Woodbine Cottage, Shortwood Hill, Shortwood, Bristol, BS16 9PF

Want to explore Woodbine Cottage, Shortwood Hill, Shortwood, Bristol, BS16 9PF further? Explore our local area guide

Struggling to find a property? Get in touch and we'll help you find your ideal property.