Standout Features

Property Description
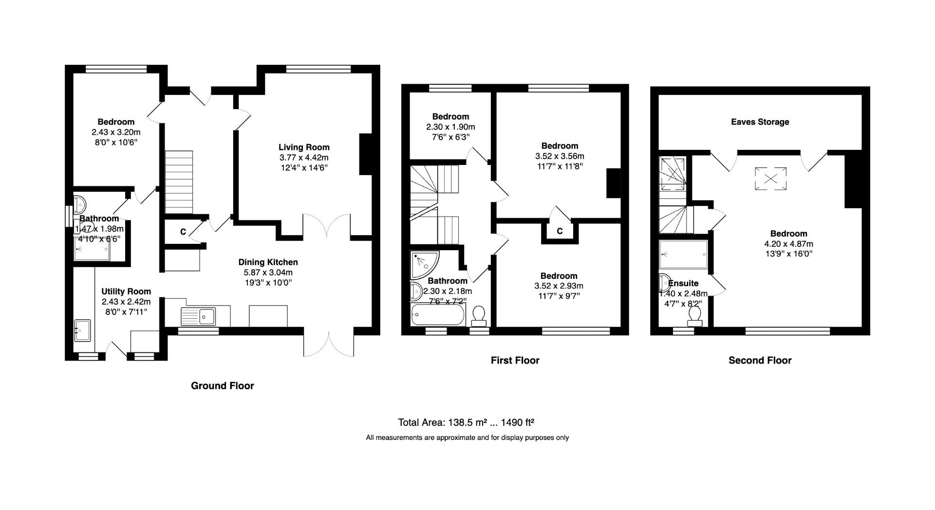
This immaculate, EXTENDED FIVE-bedroom semi-detached home on Cotefields Avenue in Farsley offers spacious, versatile family living across three floors, featuring a stunning OPEN-PLAN kitchen/diner, SOUTH-FACING garden, off-road parking, and excellent access to amenities, top schools, and transport links.

Welcome to this immaculate and EXTENDED five-bedroom semi-detached home on Cotefields Avenue, perfectly positioned in the highly sought-after area of Farsley, Pudsey. Arranged over THREE spacious floors, the property offers versatile and well-planned accommodation ideally suited to growing families.

On the ground floor, you’ll find a bright and welcoming LIVING ROOM with double doors opening through to the impressive OPEN-PLAN KITCHEN/DINER. The shaker-style kitchen provides excellent storage, wooden worktops, a range cooker, and plenty of natural light from the FRENCH DOORS leading directly out to the private SOUTH-FACING garden.

The GARDEN enjoys a high degree of PRIVACY and features both lawned and paved areas—ideal for family time, outdoor dining, and summer entertaining. There are also two useful garden sheds for storage. To the front, a BLOCK-PAVED driveway provides off-road parking for two cars.

The flexible layout includes FIVE well-proportioned bedrooms. The second floor offers a generous double bedroom with eaves storage and its own EN-SUITE. The first floor includes two further double bedrooms and a single bedroom, perfect as a home office, along with a modern FAMILY BATHROOM featuring a bath and separate shower. On the ground floor, an additional bedroom sits adjacent to a downstairs SHOWER ROOM, ideal for guests, multi-generational living or use as a study/snug.

Above the extension, there is a boarded LOFT area with light and power, offering excellent additional storage. Overall, this is a superb family home offering FLEXIBLE living space in a prime and well-connected Farsley location. Don't miss out and book a viewing today!

LOACTION – Farsley
Farsley remains one of the most desirable areas between Leeds and Bradford, combining village charm with city convenience. The vibrant high street is home to independent shops, cafés, restaurants and traditional pubs, while Sunny Bank Mills provides a thriving hub for arts, culture and local businesses.

Nearby green spaces such as Hainsworth Park and Rodley Nature Reserve offer excellent options for recreation, walking and cycling. Well-regarded schools sit within easy reach, and commuters benefit from strong transport links, with New Pudsey railway station offering direct services to Leeds in under 15 minutes, plus onward connections to Bradford and Manchester. With its welcoming community and excellent amenities, Farsley is an outstanding location for families and professionals alike.

DINING KITCHEN (5.87m x 3.04m)

LIVING ROOM (4.42m x 3.77m)

UTILITY ROOM (2.43m x 2.42m)

BEDROOM (3.20m x 2.43m)

BATHROOM (1.98m x 1.47m)

BEDROOM (3.56m x 3.52m)

BEDROOM (3.52m x 2.93m)

BEDROOM (2.30m x 1.90m)

BATHROOM (2.30m x 2.18m)

BEDROOM (4.87m x 4.20m)

EN-SUITE (2.48m x 1.40m)


Additional Information
Tenure: Freehold
Council Tax Band: B

Rooms
DINING KITCHEN

5.87m x 3.04m (19'3" x 9'11")
LIVING ROOM

4.42m x 3.77m (14'6" x 12'4")
UTILITY ROOM

2.43m x 2.42m (7'11" x 7'11")
BEDROOM

3.20m x 2.43m (10'5" x 7'11")
BATHROOM

1.98m x 1.47m (6'5" x 4'9")
BEDROOM

3.56m x 3.52m (11'8" x 11'6")
BEDROOM

3.52m x 2.93m (11'6" x 9'7")
BEDROOM

2.30m x 1.90m (7'6" x 6'2")
BATHROOM

2.30m x 2.18m (7'6" x 7'1")
BEDROOM

4.87m x 4.20m (15'11" x 13'9")
EN-SUITE

2.48m x 1.40m (8'1" x 4'7")

Mortgage calculator

Calculate Your Stamp Duty
£
Results
Stamp Duty To Pay:
Effective Rate:
Tax Band % Taxable Sum Tax

Cotefields Avenue, Farsley, Pudsey

Want to explore Cotefields Avenue, Farsley, Pudsey further? Explore our local area guide

Struggling to find a property? Get in touch and we'll help you find your ideal property.