5 bedroom House For Sale

Guide Price £890,000 | Available

5 bedroom House For Sale
or call 01765 530007
Standout Features

Property Description
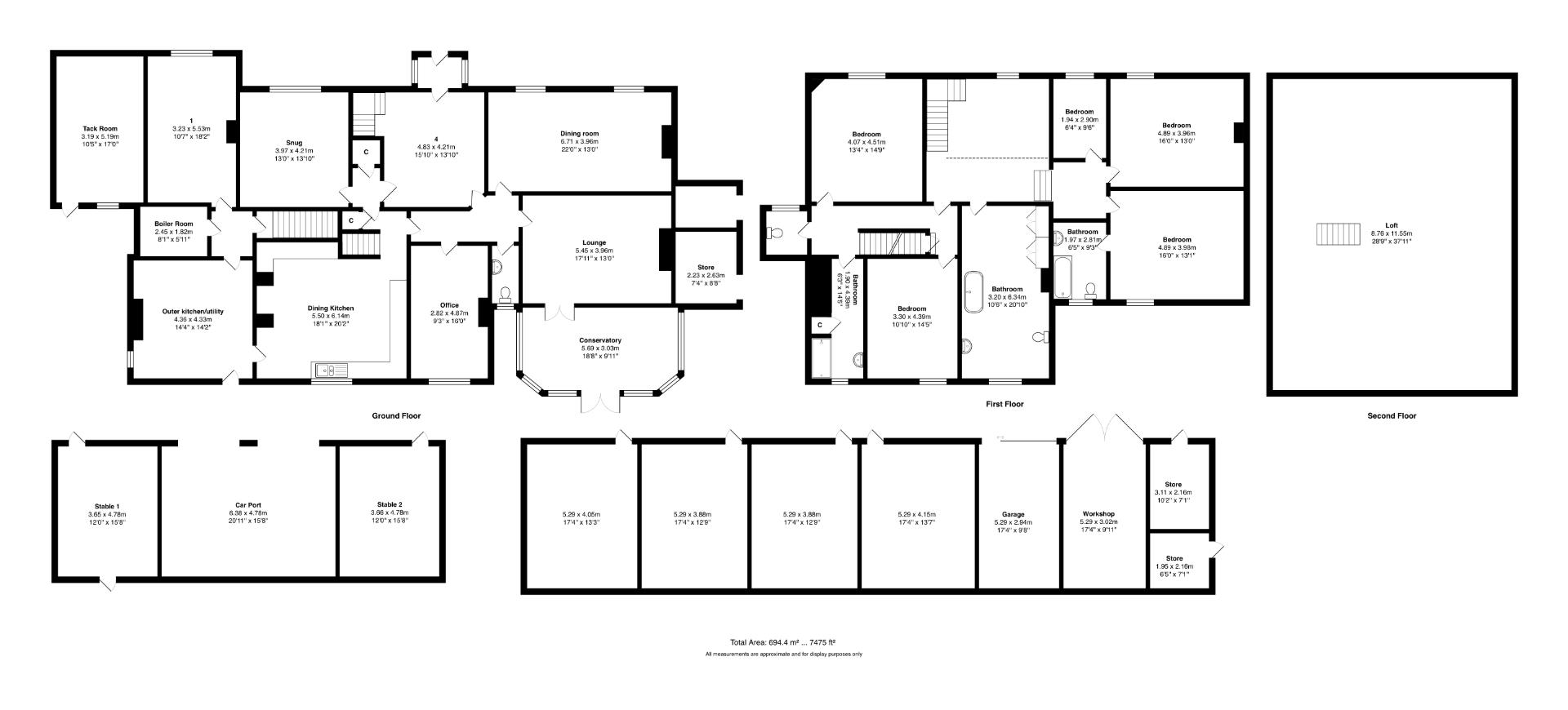
An extensive detached much loved period family home presents a remarkable opportunity for those seeking space and privacy. Boasting five generously sized bedrooms, five elegant reception rooms, all sitting within 6.7acres of paddock land. The property does have fabulous potential and requires general upgrading throughout but will create a beautiful family home.

As you enter, you are greeted by a beautiful reception hall featuring a striking curved staircase that leads to a galleried landing, adding a touch of elegance to the home. The kitchen, equipped with a traditional Aga, leads to the working part of the house, which includes a large boot room/utility area, further outer kitchen area and a basement, providing ample storage and versatility.

The expansive first floor houses five well proportioned bedrooms with two house bathrooms and an en-suite to one of the bedrooms. There is a huge un-converted loft area with stair access which offers scope for further re-development subject the permissions.

The expansive grounds extend to approximately 6.7 acres of fenced grass/paddock land offering a private oasis for outdoor activities and relaxation. For those with equestrian interests, the property is set up and ready featuring six stables making it ideal for horse lovers. There is also a garage, workshop, carport and two stores, ensuring that all your practical needs are met.

Situated on the outskirts of Bedale and Northallerton, this home enjoys a peaceful village setting while still providing easy access to the A1, perfect for those wishing to explore further afield. With its combination of space, potential, and idyllic location, this property is a rare find and is sure to attract considerable interest. Don’t miss the chance to make this exceptional family home your own.

Additional Information

Additional Information

Offer Acceptance & AML Regulations
Under the Money Laundering, Terrorist Financing & Transfer of Funds Regulations 2017, we are required to obtain proof of the source of funds for the purchase, as well as identification documents for all prospective buyers. We kindly ask buyers to assist with this process to avoid any delays in agreeing a sale.

A fee of £42 (inclusive of VAT) per named buyer is payable by the successful purchaser(s). This fee covers the money laundering checks carried out by SmartSearch, the firm that administers our ID verification. Please note that the property will not be marked as sold subject to contract until all required identification has been provided and AML checks have been satisfactorily completed.

________________________________________

Mortgage Advice
We are pleased to offer mortgage advice through our partnership with CS Mortgage Solutions. To arrange an appointment, please contact the branch and we will organise for an advisor to help you find the most suitable mortgage for your circumstances.

The initial consultation is free of charge and without obligation. A fee may be payable should you choose to proceed with their services.

________________________________________

Please Note
The extent of the property and its boundaries are subject to confirmation by inspection of the title deeds. All measurements provided in these particulars are approximate and intended for guidance only. Fixtures, fittings and appliances have not been tested, and no warranty can be given regarding their condition or functionality. Internal photographs are supplied for general information and should not be taken to imply that any specific item is included in the sale.


Additional Information
Tenure: Freehold
Council Tax Band: G

Rooms
Additional Information
Additional Information

Offer Acceptance & AML Regulations
Under the Money Laundering, Terrorist Financing & Transfer of Funds Regulations 2017, we are required to obtain proof of the source of funds for the purchase, as well as identification documents for all prospective buyers. We kindly ask buyers to assist with this process to avoid any delays in agreeing a sale.

A fee of £42 (inclusive of VAT) per named buyer is payable by the successful purchaser(s). This fee covers the money laundering checks carried out by SmartSearch, the firm that administers our ID verification. Please note that the property will not be marked as sold subject to contract until all required identification has been provided and AML checks have been satisfactorily completed.

________________________________________

Mortgage Advice
We are pleased to offer mortgage advice through our partnership with CS Mortgage Solutions. To arrange an appointment, please contact the branch and we will organise for an advisor to help you find the most suitable mortgage for your circumstances.

The initial consultation is free of charge and without obligation. A fee may be payable should you choose to proceed with their services.

________________________________________

Please Note
The extent of the property and its boundaries are subject to confirmation by inspection of the title deeds. All measurements provided in these particulars are approximate and intended for guidance only. Fixtures, fittings and appliances have not been tested, and no warranty can be given regarding their condition or functionality. Internal photographs are supplied for general information and should not be taken to imply that any specific item is included in the sale.

Mortgage calculator

Calculate Your Stamp Duty
£
Results
Stamp Duty To Pay:
Effective Rate:
Tax Band % Taxable Sum Tax

Little Fencote, Northallerton

Want to explore Little Fencote, Northallerton further? Explore our local area guide

Struggling to find a property? Get in touch and we'll help you find your ideal property.