Standout Features

Property Description
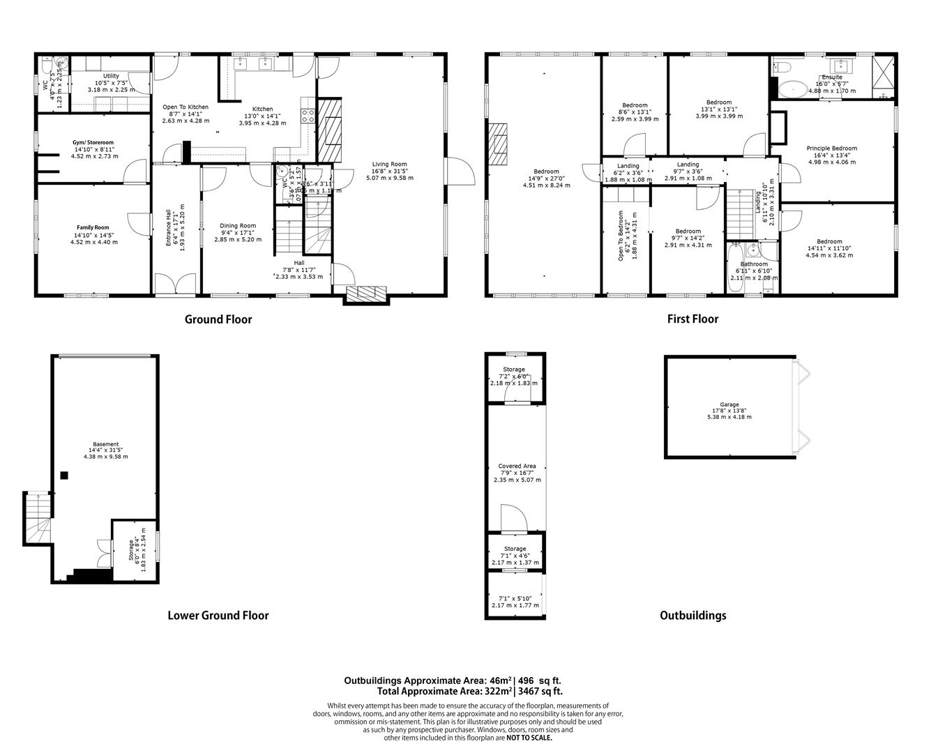
'Whittington Old House' is a magnificent 17th Century detached residence formerly a public house 'The Whittington Inn' before licences were transferred when in its former life it became three workers cottages known as 'Bath Pool Cottages'. Previously part of Enville Estate and still remains part of a conservation area; this versatile family home offers a wealth of character and charm paying homage to the propertys rich heritage. Boasting a canal-side location and calming views across adjacent rolling fields; homeowners can take full advantage of the practicalities of Kinver and Wollaston Villages both only a short distance away. This property can only be seen to appreciate the rare and wonderful opportunity that's so very rarely available and for any discerning buyers briefly comprises welcoming reception hall complete with exposed brickwork and quarry tiled floor, opulent sitting room with Inglenook fire place housing wood burning stove, historic decorative range and former front door, spacious kitchen breakfast room with the capabilities of refashioning with listed building consent and planning permission to remove the internal wall to create a even-bigger open plan kitchen diner. There's also a separate utility and WC, formal dining room, multi-functional family room with separate gym, inner lobby, guest cloakroom and useful cellar space completing the ground floors. Continuing off the gallery-style landing leads to five/six versatile bedrooms including principle bedroom with timeless ensuite with roll-top claw-foot bath and separate double shower. One of the smaller bedrooms lends itself perfectly to create a large family bathroom in favour of the existing one as well as options for flexible home working. A further hobby or bedroom offers unlimited potential to service as a grand first floor reception room or bedroom suite. The gardens and grounds are beautifully mature and thoughtfully laid-out with detached double garage and large driveway positioned opposite.

Gardens and Grounds

Situated adjacent to the lane the property is encompassed by landscaped gardens and grounds with large gravelled in-and-out driveway providing ample off road parking, useful store container, access to underground double garage with steps leading up to the property, dwarf wall, manicured and shaped lawn areas, mature shrubs, foliage, Damson and Apple fruit trees, vegetable patches, views over rolling nearby fields and canal located a stones throw from the property; raised borders, oak trees, meandering and tiered hidden pathways, climbing Wisteria, wildlife areas, pond and historic well, decorative chipping stones, outdoor terrace seating with light and tap, multi-functional open store area ideal for outdoor kitchen with log store, additional storage to both sides and front and side doors leading into the property.

Reception Hall

With wide double doors leading from the side of the property, doors to various rooms, space for dresser, feature beams and exposed brickwork, quarry tiled floor and window to dining rom.

Living Room

This fantastic sociable space ideal for entertaining is rich in character and charm with large inglenook fireplace housing wood burning stove, recessed spotlights, decorative mantle, exposed brickwork and quarry tiled hearth, historic feature range, ample space for seating, dining and grand piano, wall lights, feature beams, former front door, windows to front and side, secondary glazing and two column central heating radiators.

Kitchen Breakfast Room

Well connected to the rest of the house and offering immense potential to refashion with listed approval allowing to create a more open-plan space the kitchen is fitted with a range of matching wall and base units with worksurfaces over, two stainless steel sink and drainers, space for Rangemaster-style cooker, breakfast table and other appliances, feature beams, quarry tiled floor, stable door, further door and window to side and a central heating radiator.

Dining Room

Ideal for formal diner parties or family sit-down meals there is space for large dining table, stairs to first floor landing, wall lights, quarry tiled floor, feature beams, windows to side and central heating radiators with cover.

Family Room

A perfect place to wind down with ample seating space, wall lights, feature beams, windows to side and rear and a central heating radiator.

Gym

Accessed off the family room this multi-purpose reception space is currently set up as a gym with central heating boiler, light, power and window to rear.

Utility and WC

Providing an essential sense of practicality and adjacent to the kitchen breakfast room with matching wall and base units, worksurfaces over, belfast sink, plumbing for washing machine and space for other appliances, feature beams, window to side and a central heating radiator. Accessed via the utility and previously a wet room there is WC, wash hand basin, tiled splashback and part tiled walls, feature beams, corner vanity unit, window to rear and a central heating radiator.

Lobby, Guest Cloakroom and Cellar

Continuing with the propertys functionality the lobby connects both guest cloakroom and cellar with quarry tiled floor, wall lights, shelving and a central heating radiator. The guest cloakroom comprises WC, wash hand basin with tiled splashback, exposed pipework, corner cabinet, shelving, quarry tiled floor and a central heating radiator. The addition of a large useful cellar space ideal for storage has lighting and old coal shaft.

Landing

With a partly vaulted ceiling, wall and recessed spotlights, feature beams and skylight window.

Principal Bedroom Suite

An elegant suite worthy of its name with vaulted ceiling, feature beams, wall lights, exposed chimney breast with quarry tiled hearth, skylight window, further window to front with secondary glazing and a column central heating radiator. The luxury ensuite just off is of an excellent size with free standing, roll-top and clawfoot bath, separate shower attachment, medium-level flush WC, bowl sink set into timber open vanity unit, double walk-in shower with rainfall shower head, tiled floor and part tiled walls, wall and recessed spotlights, feature beams, window to side and two column central heating radiators.

Guest Bedroom

Having vaulted ceiling, feature beams, wall lights, slight recess, skylight window, further window to side and a central heating radiator.

Bedroom Three

Vaulted ceiling, feature beams, window with secondary glazing and a column central heating radiator.

Bedroom Four

With vaulted ceiling, feature beams, wall lights, stripped-back floorboards, raised shelf, fitted wardrobes, space for seating, skylight windows, further window to side and a central heating radiator.

Bedroom Five/ Study

With potential to be converted into a large family bathroom, vaulted ceiling, feature beams, skylight window with ladder roof access, further window to side and a central heating radiator.

Hobby/ Bedroom Six

This fantastic versatile space lends itself perfectly to a grand first floor reception room, hobby, craft room or a fabulous master bedroom with space for dressing area and en suite. Currently it comprises feature fire place complete with slate hearth, exposed brick and steel work, vaulted ceiling, stripped-back floorboards, space for crafts, home working or seating, triple aspect windows to sides and rear and four central heating radiators.

Bathroom

With vaulted ceiling, bath and shower over, fitted shower screen, WC and wash hand basin, part tiled walls, feature beams, wall lights, window to side and a central heating radiator.

Double Garage

Accessed off the lane with steps leading down from the garden, mechanical pit, light and power, useful storage space for ride on mower and plumbing.

Additional Information

The property is grade II listed and in a conservation area. The heating is oil fired, the sewerage is via a septic tank and there are solar panels.

Agents are required by law to conduct anti-money laundering checks on all those buying a property. We outsource the initial checks to a partner supplier Coadjute who will contact you once you have had an offer accepted on a property you wish to buy. The cost of these checks is £45+VAT per buyer and this is a non-refundable fee. These charges cover the cost of obtaining relevant data, any manual checks and monitoring which might be required. This fee will need to be paid and the checks completed in advance of the office issuing a memorandum of sale on the property you would like to buy.


Additional Information
Tenure: Freehold
Council Tax Band: G

Rooms
Gardens and Grounds
Situated adjacent to the lane the property is encompassed by landscaped gardens and grounds with large gravelled in-and-out driveway providing ample off road parking, useful store container, access to underground double garage with steps leading up to the property, dwarf wall, manicured and shaped lawn areas, mature shrubs, foliage, Damson and Apple fruit trees, vegetable patches, views over rolling nearby fields and canal located a stones throw from the property; raised borders, oak trees, meandering and tiered hidden pathways, climbing Wisteria, wildlife areas, pond and historic well, decorative chipping stones, outdoor terrace seating with light and tap, multi-functional open store area ideal for outdoor kitchen with log store, additional storage to both sides and front and side doors leading into the property.
Reception Hall
With wide double doors leading from the side of the property, doors to various rooms, space for dresser, feature beams and exposed brickwork, quarry tiled floor and window to dining rom.
Living Room
This fantastic sociable space ideal for entertaining is rich in character and charm with large inglenook fireplace housing wood burning stove, recessed spotlights, decorative mantle, exposed brickwork and quarry tiled hearth, historic feature range, ample space for seating, dining and grand piano, wall lights, feature beams, former front door, windows to front and side, secondary glazing and two column central heating radiators.
Kitchen Breakfast Room
Well connected to the rest of the house and offering immense potential to refashion with listed approval allowing to create a more open-plan space the kitchen is fitted with a range of matching wall and base units with worksurfaces over, two stainless steel sink and drainers, space for Rangemaster-style cooker, breakfast table and other appliances, feature beams, quarry tiled floor, stable door, further door and window to side and a central heating radiator.
Dining Room
Ideal for formal diner parties or family sit-down meals there is space for large dining table, stairs to first floor landing, wall lights, quarry tiled floor, feature beams, windows to side and central heating radiators with cover.
Family Room
A perfect place to wind down with ample seating space, wall lights, feature beams, windows to side and rear and a central heating radiator.
Gym
Accessed off the family room this multi-purpose reception space is currently set up as a gym with central heating boiler, light, power and window to rear.
Utility and WC
Providing an essential sense of practicality and adjacent to the kitchen breakfast room with matching wall and base units, worksurfaces over, belfast sink, plumbing for washing machine and space for other appliances, feature beams, window to side and a central heating radiator. Accessed via the utility and previously a wet room there is WC, wash hand basin, tiled splashback and part tiled walls, feature beams, corner vanity unit, window to rear and a central heating radiator.
Lobby, Guest Cloakroom and Cellar
Continuing with the propertys functionality the lobby connects both guest cloakroom and cellar with quarry tiled floor, wall lights, shelving and a central heating radiator. The guest cloakroom comprises WC, wash hand basin with tiled splashback, exposed pipework, corner cabinet, shelving, quarry tiled floor and a central heating radiator. The addition of a large useful cellar space ideal for storage has lighting and old coal shaft.
Landing
With a partly vaulted ceiling, wall and recessed spotlights, feature beams and skylight window.
Principal Bedroom Suite
An elegant suite worthy of its name with vaulted ceiling, feature beams, wall lights, exposed chimney breast with quarry tiled hearth, skylight window, further window to front with secondary glazing and a column central heating radiator. The luxury ensuite just off is of an excellent size with free standing, roll-top and clawfoot bath, separate shower attachment, medium-level flush WC, bowl sink set into timber open vanity unit, double walk-in shower with rainfall shower head, tiled floor and part tiled walls, wall and recessed spotlights, feature beams, window to side and two column central heating radiators.
Guest Bedroom
Having vaulted ceiling, feature beams, wall lights, slight recess, skylight window, further window to side and a central heating radiator.
Bedroom Three
Vaulted ceiling, feature beams, window with secondary glazing and a column central heating radiator.
Bedroom Four
With vaulted ceiling, feature beams, wall lights, stripped-back floorboards, raised shelf, fitted wardrobes, space for seating, skylight windows, further window to side and a central heating radiator.
Bedroom Five/ Study
With potential to be converted into a large family bathroom, vaulted ceiling, feature beams, skylight window with ladder roof access, further window to side and a central heating radiator.
Hobby/ Bedroom Six
This fantastic versatile space lends itself perfectly to a grand first floor reception room, hobby, craft room or a fabulous master bedroom with space for dressing area and en suite. Currently it comprises feature fire place complete with slate hearth, exposed brick and steel work, vaulted ceiling, stripped-back floorboards, space for crafts, home working or seating, triple aspect windows to sides and rear and four central heating radiators.
Bathroom
With vaulted ceiling, bath and shower over, fitted shower screen, WC and wash hand basin, part tiled walls, feature beams, wall lights, window to side and a central heating radiator.
Double Garage
Accessed off the lane with steps leading down from the garden, mechanical pit, light and power, useful storage space for ride on mower and plumbing.
Additional Information
The property is grade II listed and in a conservation area. The heating is oil fired, the sewerage is via a septic tank and there are solar panels.

Mortgage calculator

Calculate Your Stamp Duty
£
Results
Stamp Duty To Pay:
Effective Rate:
Tax Band % Taxable Sum Tax

Whittington Old House, Horsebridge Lane, Kinver, DY7 6NX

Want to explore Whittington Old House, Horsebridge Lane, Kinver, DY7 6NX further? Explore our local area guide

Struggling to find a property? Get in touch and we'll help you find your ideal property.