2 bedroom Flat For Sale

Offers in excess of £550,000 | Available

2 bedroom Flat For Sale
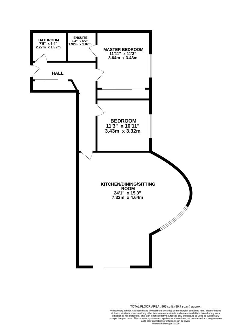
Total Size: 965 SQ FT
or call 01303 261557
Standout Features

Property Description
This exceptional modern apartment, located on Cannongate Road, Hythe, offers a superb blend of contemporary design and coastal living, with the added benefit of stunning sea views.

Constructed in 2020 and extending to approximately 1,044 sq ft, the property is beautifully presented throughout. The spacious open plan reception room provides a light-filled and inviting environment, ideal for both everyday living and entertaining, with large windows allowing you to fully appreciate the outlook.

The fully equipped kitchen offers a wealth of wall and base units with integrated Neff oven & combination microwave, Neff full height fridge & freezer, Neff dishwasher, Neff washing machine & dryer, wine fridge, wine rack with cupboard above, quartz worktop, coordinating island unit incorporating deep pan drawers and with quartz worktop inset with Bora induction hob and incorporating integrated extraction unit.

The apartment offers two generously sized bedrooms, both designed with comfort in mind, along with two bathrooms, including a well-appointed en suite, ensuring practicality for both residents and guests.

Private terrace paved in a contemporary style, enjoying a southerly aspect and the ideal spot in which to relax, dine alfresco, soak up the sun and enjoy the views of the sea. Electric wind sensitive awning. The terrace continues to the side of the apartment. In addition, there are well cared for communal gardens, allocated parking and vistors parking.

The location in Hythe is particularly appealing, as it combines the beauty of coastal living with easy access to local amenities. Residents can enjoy the nearby shops, cafes, and recreational areas, all while being part of a friendly community.

This apartment is ideally suited to those seeking a modern lifestyle within an attractive coastal setting. Whether purchasing or renting, it offers an excellent opportunity to secure a well-presented and stylish home.

Hythe is a charming and historic coastal town on the south-east Kent coast, offering an appealing blend of seaside living, period character, and modern convenience. Known for its picturesque seafront, attractive promenade, and vibrant high street, the town provides an excellent range of independent shops, cafés, restaurants, and everyday amenities.

The area is rich in history and character, with landmarks such as the Royal Military Canal, and St Leonard’s Church. The nearby beach offers long stretches of shingle and coastal walks, while the surrounding countryside and Romney Marsh provide beautiful open landscapes ideal for walking, cycling, and outdoor pursuits.

Hythe is particularly popular with families and commuters alike, benefiting from well-regarded local schools and convenient transport links. The nearby town of Folkestone offers high-speed rail services to London St Pancras, while the M20 provides easy access to Ashford, Canterbury, and the wider motorway network. The Channel Tunnel terminal at Cheriton is also close by, making continental travel straightforward.

Combining a relaxed coastal atmosphere with strong transport connections and a welcoming community, Hythe is a highly desirable location for those seeking a quality lifestyle by the sea.


Additional Information
Tenure: Leasehold
Lease Years Remaining: 992
Service Charge: £2,351 per year
Council Tax Band: D

Utilities
Broadband:
mobile
Electricity:
Mains Supply
Sewerage:
Mains Supply
Water:
Heating:
Gas Central

Mortgage calculator

Calculate Your Stamp Duty
£
Results
Stamp Duty To Pay:
Effective Rate:
Tax Band % Taxable Sum Tax

Cannongate Road, Hythe

Want to explore Cannongate Road, Hythe further? Explore our local area guide

Struggling to find a property? Get in touch and we'll help you find your ideal property.