Standout Features
- Chance to Buy Your Own Building Plot
- Option for Build Contract with Developer
- Exclusive Private Development
- Lakeside Setting
- Short Walk to Village Amenities
- Close to Colne & Burney Town Centres
- Underfloor Heating Throughout Downstairs
- Solar Panels & Electric Car Charger
Property Description
Hunters Bingley are proud to bring to the market a rare opportunity to buy a building plot to build your own stunning dormer bungalow. Accessed through a private driveway, this exclusive development is situated in an idyllic lakeside setting, located between Foulridge Reservoir and Lake Burwain.
These executive new homes are only a short walk from the village amenities, including a bistro pub, cafe bar, Italian restaurant as well as multiple takeaways. Colne and Burnley are only a short drive or regular bus journey, which offer a wider range of shopping and entertainment options and also onward train journeys to Blackburn, Preston and beyond. The historic Leeds and Liverpool Canal is just a short stroll away and you are right on the doorstep of the Yorkshire Dales National Park and Forest of Bowland Area of Outstanding Natural Beauty.
This range of amenities ensures that you can enjoy the peace and quiet of countryside village life whilst also enjoying the conveniences of urban living.
Planning Permission has been granted for natural coursed stone walls with cut stone quoins to the corners and around all windows and doors - this house will look right at home in its setting. It will also include underfloor heating downstairs, a brand new efficient boiler, solar panels and an electric car charger - it will be very efficient and economical to run.
The Planning Reference at Pendle Borough Council is 25/0420/FUL - the Planning Portal shows all approved plans.
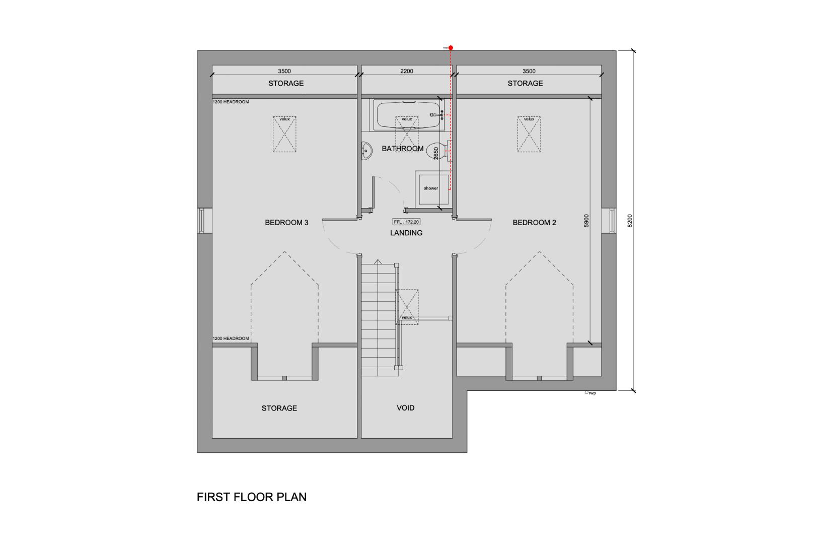
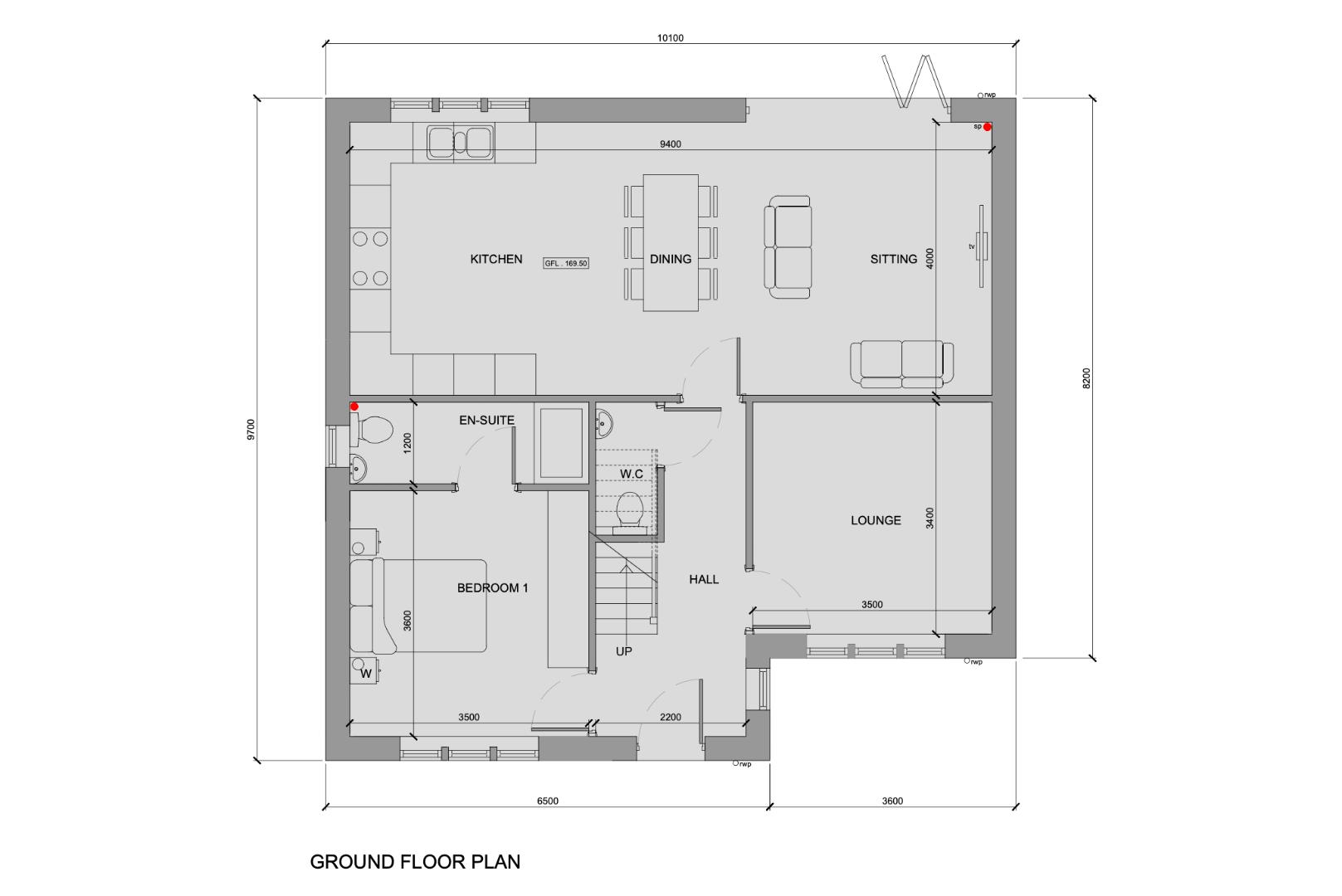
This Dormer Bungalow features a Feature Double-Height Entrance Hallway, Open Plan Kitchen / Dining / Sitting room as well as a separate Living Room, WC and Downstairs Master Bedroom with En-Suite Shower Room. Upstairs are 2 further double-bedrooms and a spacious House Bathroom with separate bath and shower.
There is also an option for a Build Contract with the developer.
Get in touch with us now for more information.
These executive new homes are only a short walk from the village amenities, including a bistro pub, cafe bar, Italian restaurant as well as multiple takeaways. Colne and Burnley are only a short drive or regular bus journey, which offer a wider range of shopping and entertainment options and also onward train journeys to Blackburn, Preston and beyond. The historic Leeds and Liverpool Canal is just a short stroll away and you are right on the doorstep of the Yorkshire Dales National Park and Forest of Bowland Area of Outstanding Natural Beauty.
This range of amenities ensures that you can enjoy the peace and quiet of countryside village life whilst also enjoying the conveniences of urban living.
Planning Permission has been granted for natural coursed stone walls with cut stone quoins to the corners and around all windows and doors - this house will look right at home in its setting. It will also include underfloor heating downstairs, a brand new efficient boiler, solar panels and an electric car charger - it will be very efficient and economical to run.
The Planning Reference at Pendle Borough Council is 25/0420/FUL - the Planning Portal shows all approved plans.
This Dormer Bungalow features a Feature Double-Height Entrance Hallway, Open Plan Kitchen / Dining / Sitting room as well as a separate Living Room, WC and Downstairs Master Bedroom with En-Suite Shower Room. Upstairs are 2 further double-bedrooms and a spacious House Bathroom with separate bath and shower.
There is also an option for a Build Contract with the developer.
Get in touch with us now for more information.
Floorplan & Images
Please note that the floorplans and images may show similar house types for illustration.
All plans and specifications are subject to change where necessary.
EPC
The EPC is currently an estimated value based on the house design and will be confirmed following completion.
Council Tax
New build properties are assessed for Council Tax following completion - for more information please contact North Yorkshire Council on 0300 131 2131.
Declaration
A director at Hunters Bingley has a personal interest in Lakeside Gardens, Foulridge.
Additional Information
| Tenure: | Freehold |
|---|
Rooms
Floorplan & Images
Please note that the floorplans and images may show similar house types for illustration.All plans and specifications are subject to change where necessary.
EPC
The EPC is currently an estimated value based on the house design and will be confirmed following completion.Council Tax
New build properties are assessed for Council Tax following completion - for more information please contact North Yorkshire Council on 0300 131 2131.Declaration
A director at Hunters Bingley has a personal interest in Lakeside Gardens, Foulridge.Utilities
Broadband:
Fibre to Premises
Electricity:
Mains Supply
Sewerage:
Private Supply
Heating:
Gas Central
Mortgage calculator
Calculate Your Stamp Duty
Results
Stamp Duty To Pay:
Effective Rate:
| Tax Band | % | Taxable Sum | Tax |
|---|
Lakeside Gardens, Foulridge, Colne
Want to explore Lakeside Gardens, Foulridge, Colne further? Explore our local area guide
Struggling to find a property? Get in touch and we'll help you find your ideal property.